Fot. Dean Bradley | Arch. Dan Gayfer Design

Rezydencja inspirowanaamerykańskimi ranczami

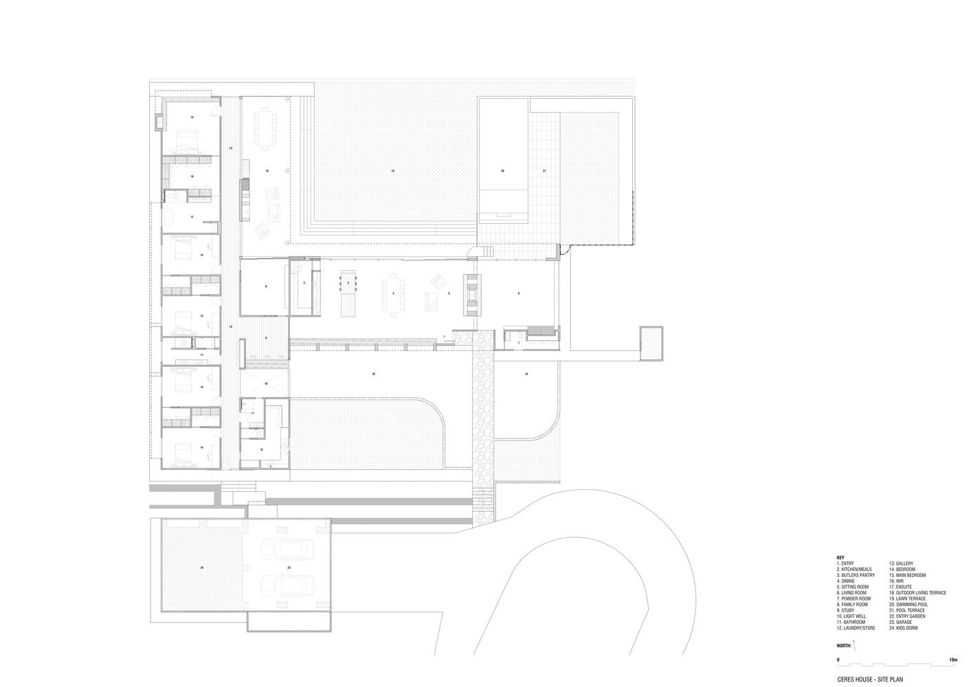
Ceres House to na chwilę obecną największy projekt firmy Dan Gayfer Design, który został ukończony. Dom stoi wśród wzgórz Ceres w niewielkiej, wiejskiej osadzie w Australii. Został zbudowany od podstaw, a jego projekt obejmował nie tylko wnętrza, ale też bezpośrednie przestrzenie zewnętrzne.Inspiracją dla tego projektu była architektura znana z amerykańskich rancz, z dużymi przeszkleniami, dwuspadowymi liniami dachu oraz rozległą przestrzenią parteru.

Fot. Dean Bradley | Arch. Dan Gayfer Design

Architekci zadbali o to, by budynek otwierał się na otoczenie i piękne widoki, pamiętając jednak o stworzeniu również osłoniętych przestrzeni zewnętrznych, na których można się schronić przed silnym wiatrem, który w tym rejonie występuje dość często. Widoki były najważniejszą częścią całego projektu i jego ogólnej estetyki, stając się nieodłączną częścią wnętrza i codziennego życia mieszkańców.