Fot. Archetyp
  • Strona internetowa

    Archetyp
  • Social media

    FBIG
  • Lokalizacja

    Białystok

Kupprojekt

Cena zakupu

Cena
projektu

5500 zł

Dane powierzchniowe

Powierzchnia
zabudowy

152,07 m²

Powierzchnia
użytkowa

158,87 m²

Kąt
nachylenia

35°

Specyfikacja materiałowa

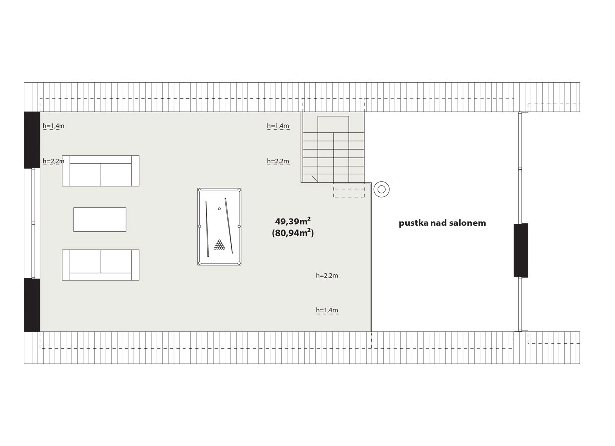
  • powierzchnia użytkowa: 109,48 m2 + antresola (49,39 m2)
  • wysokość w kalenicy: 7,42m
  • technologia murowana,
  • pustaki ceramiczne,
  • ławy fundamentowe,
  • strop żelbetowy monolityczny,
  • ogrzewanie pompa ciepła (opcja: gaz, aby uniknąć komina wrzut spalin przez ścianę),
  • wentylacja mechaniczna z odzyskiem ciepła (rekuperacja),
  • dach kryty blachą na rąbek,
  • stolarka okienna 3-szybowa.

Oprojekcie

Prezentujemy Państwu gotowy projekt nowoczesnej stodoły o imieniu HANA 3. Jest ona bardzo efektowna jak na tak optymalnie skrojoną kubaturę. Przebojem tego wygodnego domu jest przestrzeń antresoli, która daje możliwość stworzenia drugiego salonu, pracowni, pokoju do pielęgnowania swojego hobby, a nawet do wygospodarowania dodatkowych miejsc do spania dla gości.

Goście z pewnością zachwycą się przestronnym wnętrzem salonu otwartego, aż do samego dachu. Z kolei ogrzewanie podłogowe zaprojektowane w standardzie zapewni odpowiednią komfort cieplny już przy samej podłodze. Korzystając z pięknej pogody można rozsunąć szerokie drzwi balkonowe dodatkowo „włączając” powierzchnię tarasu do przestrzeni wypoczynkowej. Ten gotowy projekt domu powstał jako odpowiedź na oczekiwania inwestorów ceniących rozwiązania nowoczesne i efektowne. Jak również realne do zrealizowania w rozsądnym budżecie. Dla zainteresowanych tym, aby ich piękne maszyny miały dach nad głową posiadamy też wersje powiększone o garaż – HANA 2HANA 4HANA 5.