Fot. MyHome.eco

Kupprojekt

Cena zakupu

Cena
projektu

7300 zł

Dane powierzchniowe

Powierzchnia
zabudowy

171,042 m²

Powierzchnia
użytkowa

179,602 m²

Kąt
nachylenia

45°

Specyfikacja materiałowa

  • technologia murowana,
  • bloczki silikatowe,
  • ławy fundamentowe,
  • ogrzewanie gazowe podłogowe (opcja: pompa ciepła) wentylacja mechaniczna w standardzie,
  • dach kryty blachą na rąbek.

Oprojekcie

HOME 8, Pracowni MyHome.eco to wyjątkowy dom energooszczędny, zwraca na siebie uwagę klasyczną formą nowoczesnej STODOŁY, mieszczącej w sobie aż 180m2 powierzchni użytkowej. Idealna propozycja dla rodziny 2+3.

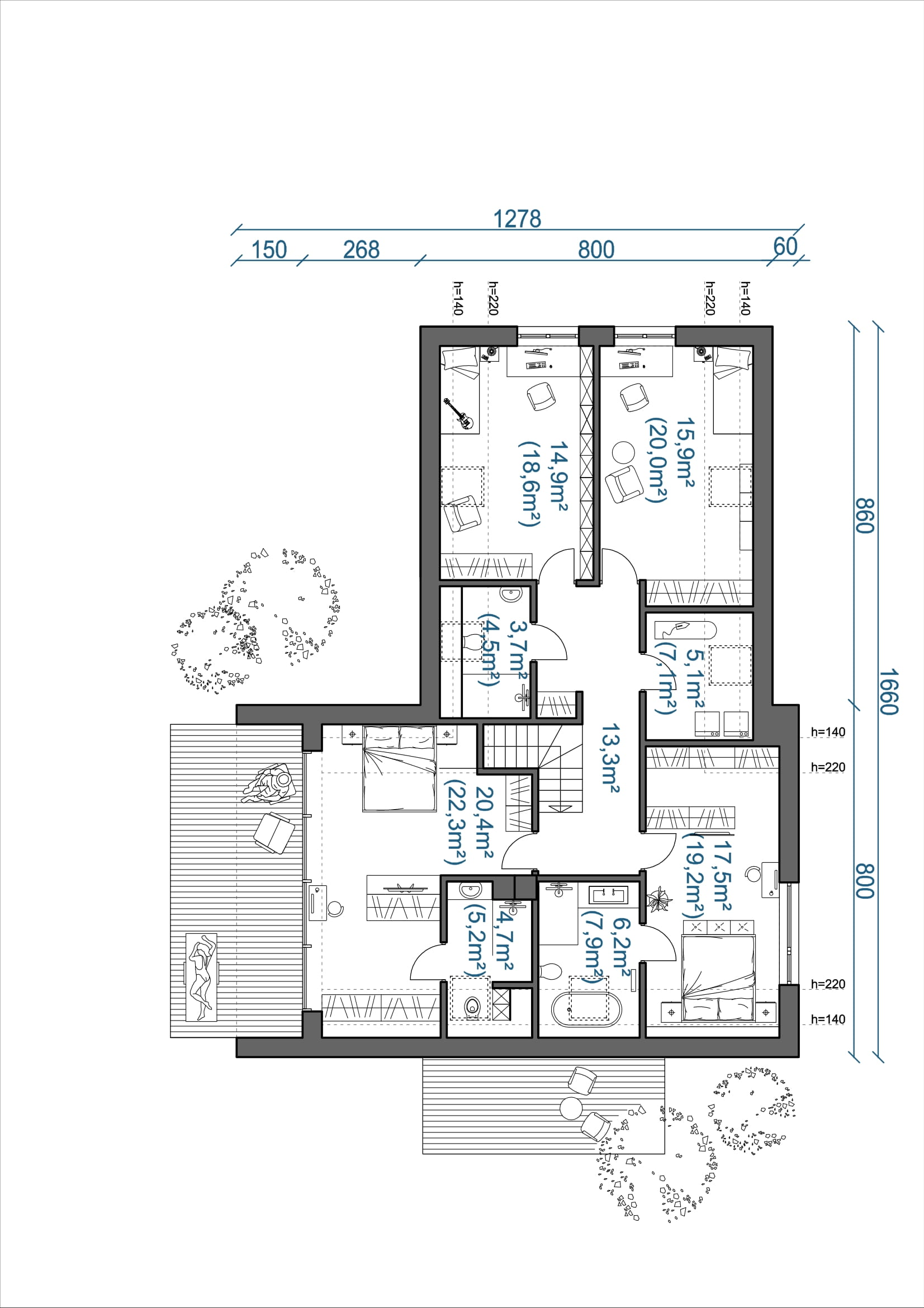
Przestronna strefa dzienna wraz z dwustanowiskowym garażem, połączone zostały przestrzenią wejściową, w której znajduje się również garderoba na odzież wierzchnią, co znacznie podnosi komfort użytkowania. „Sercem” przestrzeni dziennej jest dwustronny kominek, którego palenisko podziwiać można zarówno z jadalni jak i salonu. Część dzienna otwiera się na ogród pięknym, horyzontalnym przeszkleniem, przechodząc w podcień, który jest przedłużeniem salonu. Wyjście z salonu jest rozwiązane przy pomocy bezprogowego okna przesuwnego typu HST, by zapewnić bezpieczeństwo i wygodę użytkowników. Na poddaszu została zlokalizowana strefa nocna z czterema sypialniami, łazienkami i pralnią. Dwie sypialnie mają prywatną łazienkę oraz garderobę, co sprzyja zachowaniu prywatności i komfortowi użytkowania. Może również posłużyć jako część dla seniora lub home office, czyli biuro domowe.

Projekt jest niezwykle uniwersalny, w zależności od potrzeb istnieje możliwość wyboru spośród 8 wariantów projektów HOME, które różnią się ilością sypialni, wielkością garażu czy też dodatkowych przestrzeni t.j. garderoba/wiatrołap. Dom jednorodzinny mimo dużej ilości przeszkleń jest energooszczędny, co pozytywnie wpływa na przyszłe koszty użytkowania budynku. Na profilu Instragram pracowni znajdziecie relacje z budowy tego domu.