Fot. Z500

Kupprojekt

Cena zakupu

Cena
projektu

4470 zł

Dane powierzchniowe

Powierzchnia
zabudowy

90,62 m²

Powierzchnia
użytkowa

106,89 m²

Kąt
nachylenia

35°

Specyfikacja materiałowa

  • technologia murowana
  • strop - gęstożebrowy
  • pokrycie dachu: dachówka / blachodachówka / blacha / gont
  • Instalacja grzewcza: pompa ciepła powietrzna, ogrzewanie podłogowe
  • Rodzaj wentylacji : mechaniczna (rekuperacja)

Oprojekcie

Prosta bryła, czytelne proporcje i duże przeszklenia, które otwierają wnętrze na ogród.

Z584 to projekt nowoczesnej stodoły, w której architektura opiera się na konsekwencji — od formy po detal. Dwuspadowy dach bez okapów podkreśla minimalistyczny charakter, a duże przeszklenia budują relację z otoczeniem i naturalnie doświetlają wnętrze.

Układ funkcjonalny został zaprojektowany w sposób intuicyjny — wyraźny podział na strefę dzienną i prywatną zapewnia komfort użytkowania na co dzień. Na parterze znajduje się otwarta przestrzeń salonu z jadalnią i kuchnią, z bezpośrednim wyjściem na taras, a także dodatkowy pokój, który może pełnić funkcję sypialni lub gabinetu. Uzupełnieniem tej kondygnacji jest łazienka oraz część techniczna.

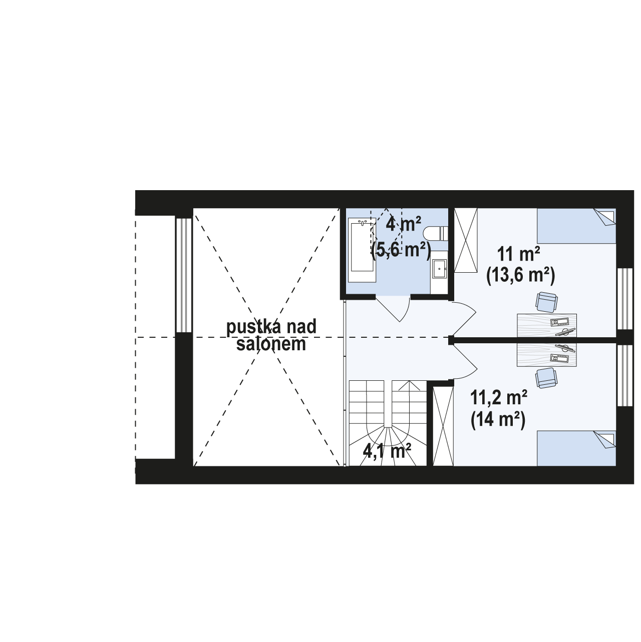
Poddasze to bardziej prywatna strefa domu — zaplanowano tu dwie wygodne sypialnie oraz dodatkową łazienkę, co pozwala na elastyczne dopasowanie przestrzeni do potrzeb domowników.

To dom, który dobrze odnajdzie się zarówno na działkach podmiejskich, jak i w bardziej naturalnym krajobrazie — szczególnie dla osób szukających prostej, funkcjonalnej architektury w nowoczesnym wydaniu.