For. Tomáš Souček | Arch. OV-A

Klimatyczny dom wzabudowaniach wiejskich

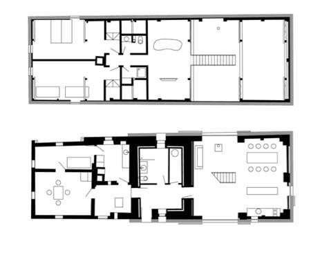
170-letnia stodoła o wyjątkowym, historycznym charakterze pierwotnie składała się z trzech połączonych części. Z przodu znajdowała się drewniana część mieszkalna z pomieszczeniem głównym, wejściem i kuchnią. Dalej mieściła się kamienna obora dla krów z wysokim sufitem, a ostatnim elementem była ceglana stodoła ze wzmocnionymi podporami cienkimi ścianami.

For. Tomáš Souček | Arch. OV-A

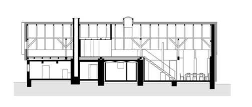
Właściciel zwrócił się do pracowni architektonicznej OV-A z prośbą o kompleksową przebudowę i adaptację budynków, tak by dawna część mieszkalna pełniła teraz funkcję pokoju gościnnego, a dawne przestrzenie gospodarcze stały się sercem nowego domu. Architekci starannie zachowali oryginalny charakter wiejskiego siedliska, dbając o proporcje i harmonię pomiędzy nowymi elementami a zabytkową strukturą. Stara część mieszkalna została odrestaurowana, a obora, stodoła i strych przekształcone w nowoczesne przestrzenie mieszkalne, zachowując atmosferę tradycyjnej farmy. Klimat wnętrza podkreśla otwarty dach i zachowane duże wrota po obu stronach, które otwierają dom na ogród. Dzięki przeszklonym otwarciom, widok z wnętrza zmienia się wraz z porą dnia i roku, tworząc wrażenie żywego obrazu.

For. Tomáš Souček | Arch. OV-A

Oryginalne drewniane belki dachu i bielone ściany łączą przeszłość z nowoczesnością. Nowe drzwi połączyły część gościnną z przebudowaną oborą i stodołą, a okno w ścianie wschodniej zamyka widok i wpuszcza dodatkowe światło. Prosta klatka schodowa nie narusza konstrukcji dachu, prowadząc na piętro, gdzie znalazły się dwie sypialnie dostępne z galerii.

For. Tomáš Souček | Arch. OV-A

Nowy salon został ocieplony od zewnątrz wełną mineralną, przykrytą elewacją z desek. Renowacja obejmowała również odświeżenie elewacji wapiennej oraz montaż lekkiego pokrycia dachowego, które nie obciąża zabytkowej konstrukcji. Efekt to komfortowy dom łączący wiejski urok, historyczną architekturę i współczesne standardy mieszkalne.