Arch. Davey McEathron Architecture

Elegancja Tudorów w połączeniuz nowoczesnym designem

Nowa konstrukcja w Travis Heights – 811 Mariposa Residence – to wyjątkowa luksusowa rezydencja, która łączy klasyczny styl Tudorów z nowoczesnymi elementami architektury. Projekt ten, stworzony przez pracownię Davey McEathron Architecture, wprowadza odrodzenie stylu Tudorów, dodając mu świeżości i nowoczesnego charakteru.

Arch. Davey McEathron Architecture

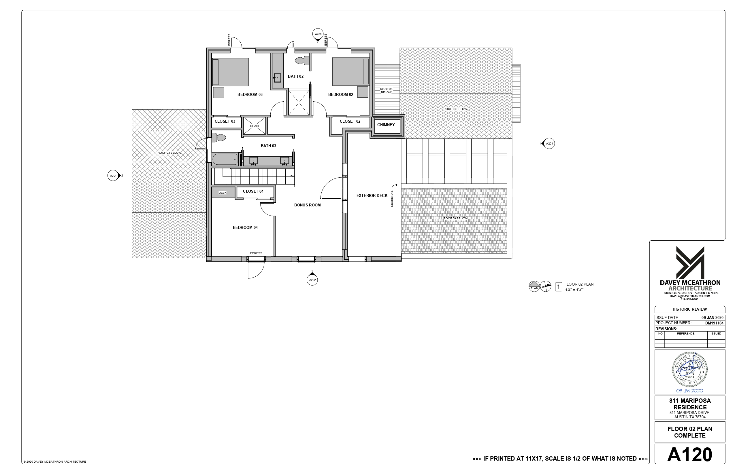
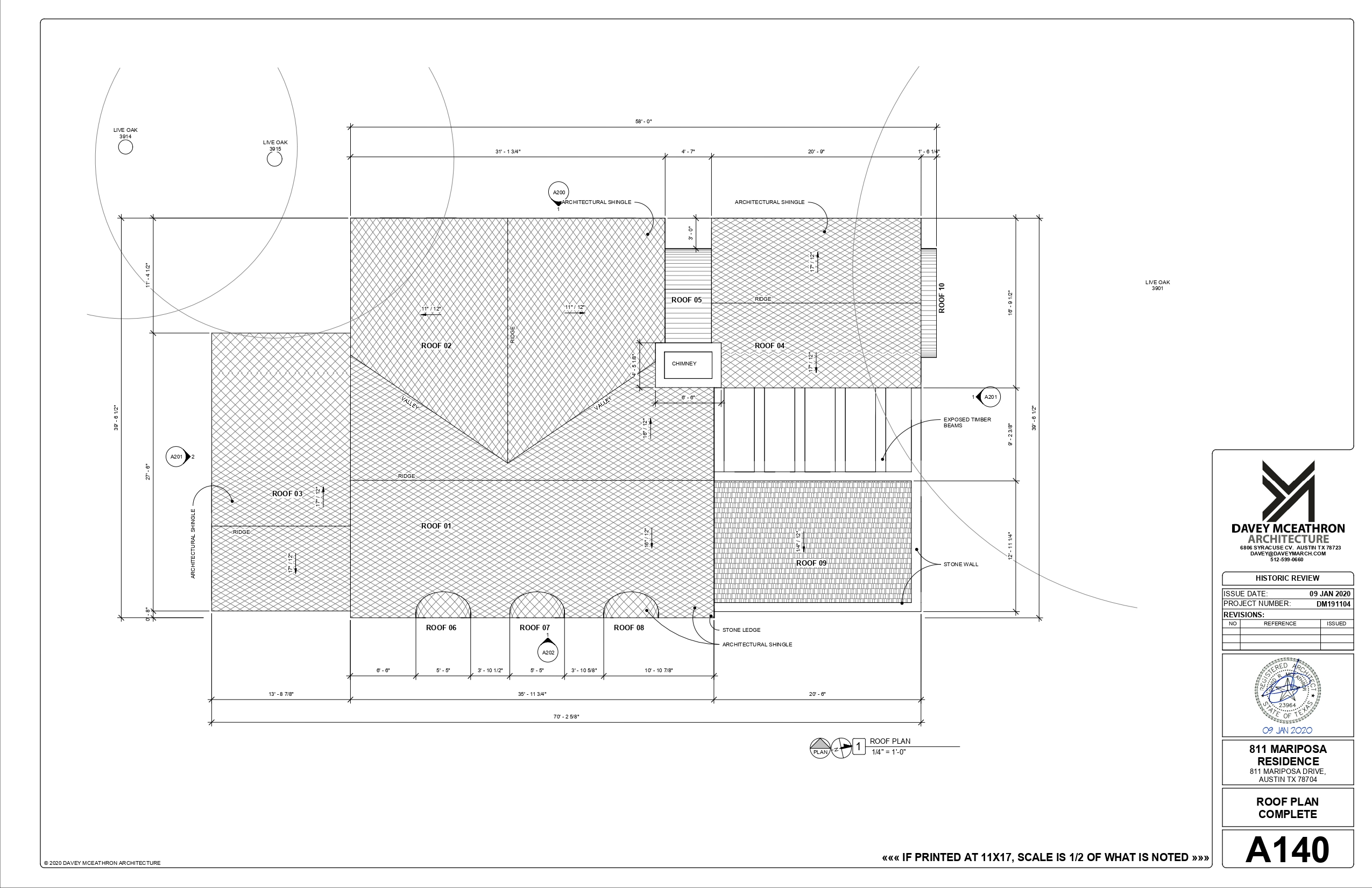
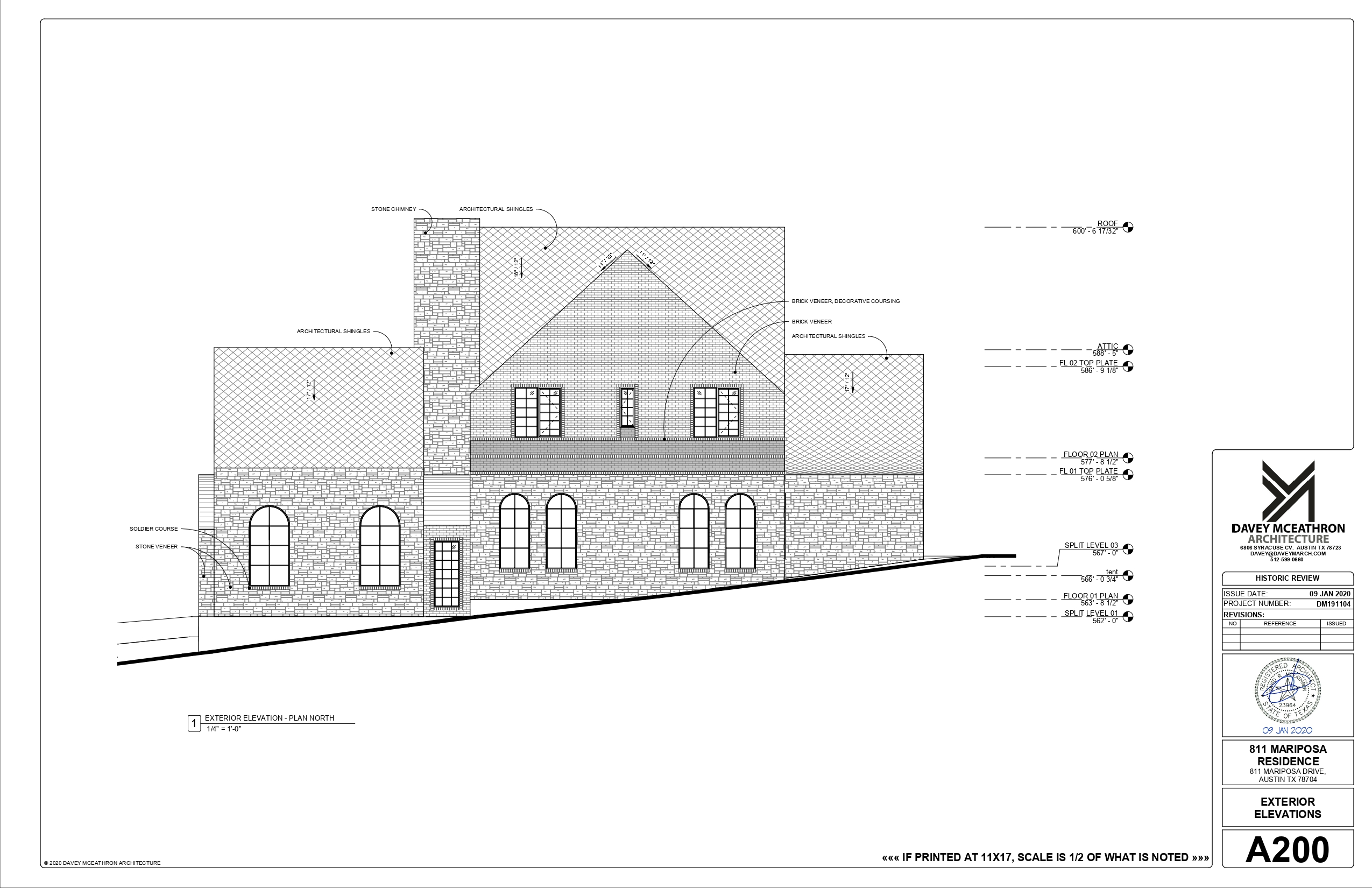
Dom charakteryzuje się eleganckimi łukowymi oknami, przestronnymi drzwiami oraz strzelistymi sufitami z odsłoniętymi belkami stropowymi, co nadaje mu wyjątkowy, luksusowy charakter. Wnętrza zostały wzbogacone o panele ścienne i przestronny balkon, które dodają domu elegancji i przestronności. Każdy detal projektu został zaprojektowany z myślą o najwyższej jakości i estetyce, co sprawia, że przestrzeń łączy tradycyjny urok z nowoczesną funkcjonalnością.

Arch. Davey McEathron Architecture

Kuchnia szefa kuchni to prawdziwe arcydzieło – wyposażona w piękne szafki, urządzenia z górnymi szufladami, dużą wyspę kuchenną oraz wyjątkowe oświetlenie, tworzy doskonałe miejsce do gotowania i spędzania czasu z rodziną i przyjaciółmi. Kuchnia otwiera się na spektakularny, pełen naturalnego światła salon, zapewniający przestronność i komfort.

Arch. Davey McEathron Architecture

Główny apartament na pierwszym piętrze zachwyca efektownym sufitem, ogromną garderobą, luksusową wanną z kabiną prysznicową oraz oszałamiającymi kafelkami, które dodają łazience elegancji i ciepła. Bogate kolory drewna i kamienia, drzwi kieszeniowe, świetliki oraz duża prywatność sprawiają, że ten dom jest idealnym miejscem na odpoczynek i relaks.