Arch. EXiT architetti associati

Letni dom inspirowanylokalną tradycją

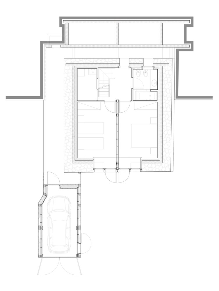
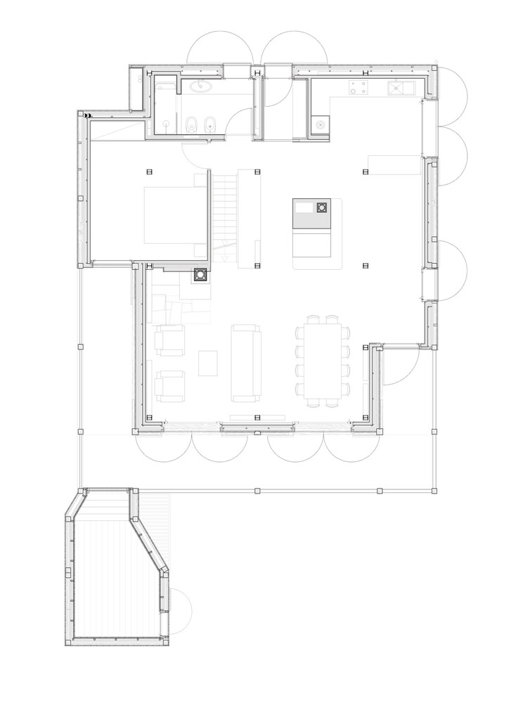
W sercu włoskich Dolomitów, w miejscowości Selva di Cadore, powstała niezwykła transformacja tradycyjnej alpejskiej stodoły w nowoczesny, energooszczędny dom letniskowy. Projekt autorstwa EXiT architetti associati to reinterpretacja regionalnej architektury górskiej z zachowaniem szacunku do lokalnej historii, rzemiosła i materiałów. W regionie Cadore, wpisanym na Listę Światowego Dziedzictwa UNESCO, historyczne alpejskie stodoły były budowane z drewna i kamienia – partery służyły jako stajnie, a wyższe kondygnacje jako przestrzeń na siano. Projekt alpejska stodoła czerpie z tej tradycji, ale przekształca ją w funkcjonalną i nowoczesną stodołę, idealną do życia blisko natury.

Arch. EXiT architetti associati

Prace rozpoczęto od demontażu oryginalnych elementów konstrukcyjnych, które następnie starannie oczyszczono i odnowiono. Część starego drewna zastąpiono nowym, impregnowanym materiałem, zachowując jednolitą kolorystykę i rytm konstrukcji. Usunięto zbędne aneksy, przywracając pierwotną, klarowną bryłę budynku. Nowa czarna stalowa konstrukcja, widoczna we wnętrzu, została zaprojektowana w zgodzie z modułową geometrią oryginalnej stodoły. Stalowe belki częściowo obłożono drewnem, co wprowadza nowoczesny kontrast i szlachetność materiałową.

Arch. EXiT architetti associati

Alpejska stodoła to samowystarczalny energetycznie dom górski, zasilany instalacją fotowoltaiczną zintegrowaną z modrzewiowym dachem. Ogrzewanie zapewnia elektryczny system podłogowy, co pozwala na zerową emisję CO₂. Wnętrza zaprojektowano z dbałością o naturalne światło i czytelną paletę materiałów: modrzew, jodła, kamień Dolomia, czarna stal i biały surowy tynk. Każde pomieszczenie to przemyślana kompozycja tych elementów – tworząca spójną, zrównoważoną przestrzeń, gdzie natura przenika się z nowoczesnością.