Arch. KADERSTUDIO

Elastyczna architektura dlaprzyszłościowej zabudowy jednorodzinnej

Funkcjonowanie w terenie, w którym celem jest stworzenie przestrzeni pod zabudowę jednorodzinną, wymaga zrównoważonego podejścia. Nowoczesna stodoła musi równocześnie zapewniać wysoką jakość przestrzeni dla mieszkańców, zachowując przy tym wiejski charakter otoczenia. Kluczem do sukcesu jest uznanie wartości niezabudowanej przestrzeni jako istotnej części krajobrazu i utrzymanie jej naturalnego wyglądu.

Arch. KADERSTUDIO

Percepcja pola uprawnego za domem została zrealizowana poprzez podział działki na funkcjonalne pasy o różnych szerokościach, które umożliwiają umiejscowienie zabudowy na odpowiednich szerokościach. Zmiana przepisów dotyczących parcelacji pozwala na minimalizowanie wpływu elewacji wzdłuż ulicy, jednocześnie zachowując otwartą przestrzeń wokół domu, co przyczynia się do zachowania wiejskiego charakteru obszaru.

Arch. KADERSTUDIO

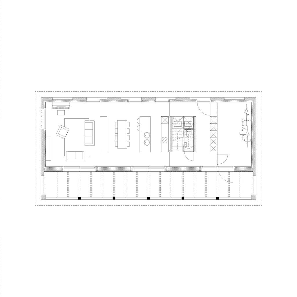
Dom składa się z dwóch niezależnych elementów konstrukcyjnych. Zewnętrzna konstrukcja to ściana o podwójnej wysokości z odzyskanych cegieł oraz sześć betonowych kolumn, które podtrzymują dwuspadowy dach. Wewnętrzna konstrukcja to drewniany szkielet, który stanowi rzeczywistą przestrzeń mieszkalną. Dzięki różnym szerokościom obu elementów, powstała obszerna weranda, która tworzy przestrzeń pomiędzy wnętrzem a zewnętrzem. Weranda ta może zostać zamknięta, tworząc ogród zimowy, co zapewnia dodatkową elastyczność w użytkowaniu przestrzeni.

Arch. KADERSTUDIO

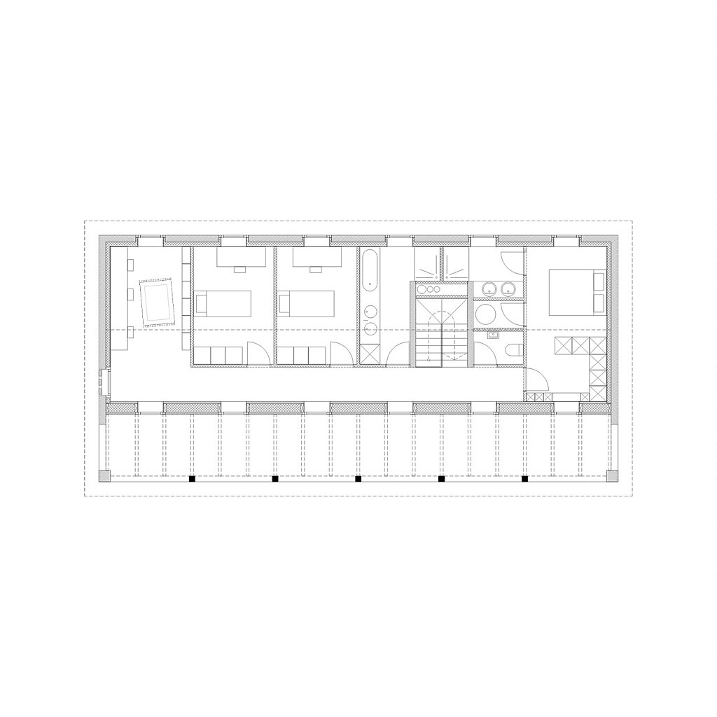
Zachowanie niezależności struktur wewnętrznych i zewnętrznych sprawia, że dom charakteryzuje się długoterminową adaptowalnością. Dzięki temu plan domu pozwala na rozszerzanie, kurczenie się, a nawet na zmianę funkcji budynku, np. powrót do funkcji rolniczych w przyszłości.