Fot. Tamas Bujnovszky | Arch. RAPA

Naturalne materiaływ nowoczesnym wydaniu

Wspornikowa forma z strzechą definiuje dom wakacyjny zaprojektowany przez studio architektoniczne RAPA na brzegu jeziora Balaton na Węgrzech.

RAPA wykorzystało materiały pozyskane lokalnie na Węgrzech, aby stworzyć trzypiętrowy dom, który został zamówiony przez rodzinę, która chciała mieć kameralną i przytulną letnią rezydencję.

Fot. Tamas Bujnovszky | Arch. RAPA

Projekt reinterpretuje lokalne style budowlane, w tym wiejskie domy z dachem ze strzechy, kamienne domy z płaskim dachem z lat 60. i kompaktowe domki letnie, jednocześnie oprawiając widoki na pobliskie jezioro.

„Jezioro Balaton zajmuje szczególne miejsce w sercach Węgrów, często nazywane jest Morzem Węgierskim” –mówi założyciel studia Ádám Reisz. „Projekt samego budynku dynamicznie i estetycznie odpowiada oszałamiającym widokom na jezioro Balaton, przekształcając je w wizualnie imponujące oświadczenie architektoniczne”.

Fot. Tamas Bujnovszky | Arch. RAPA

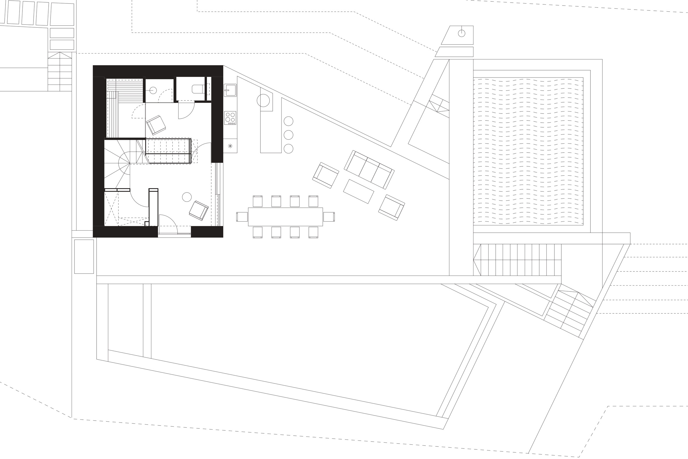
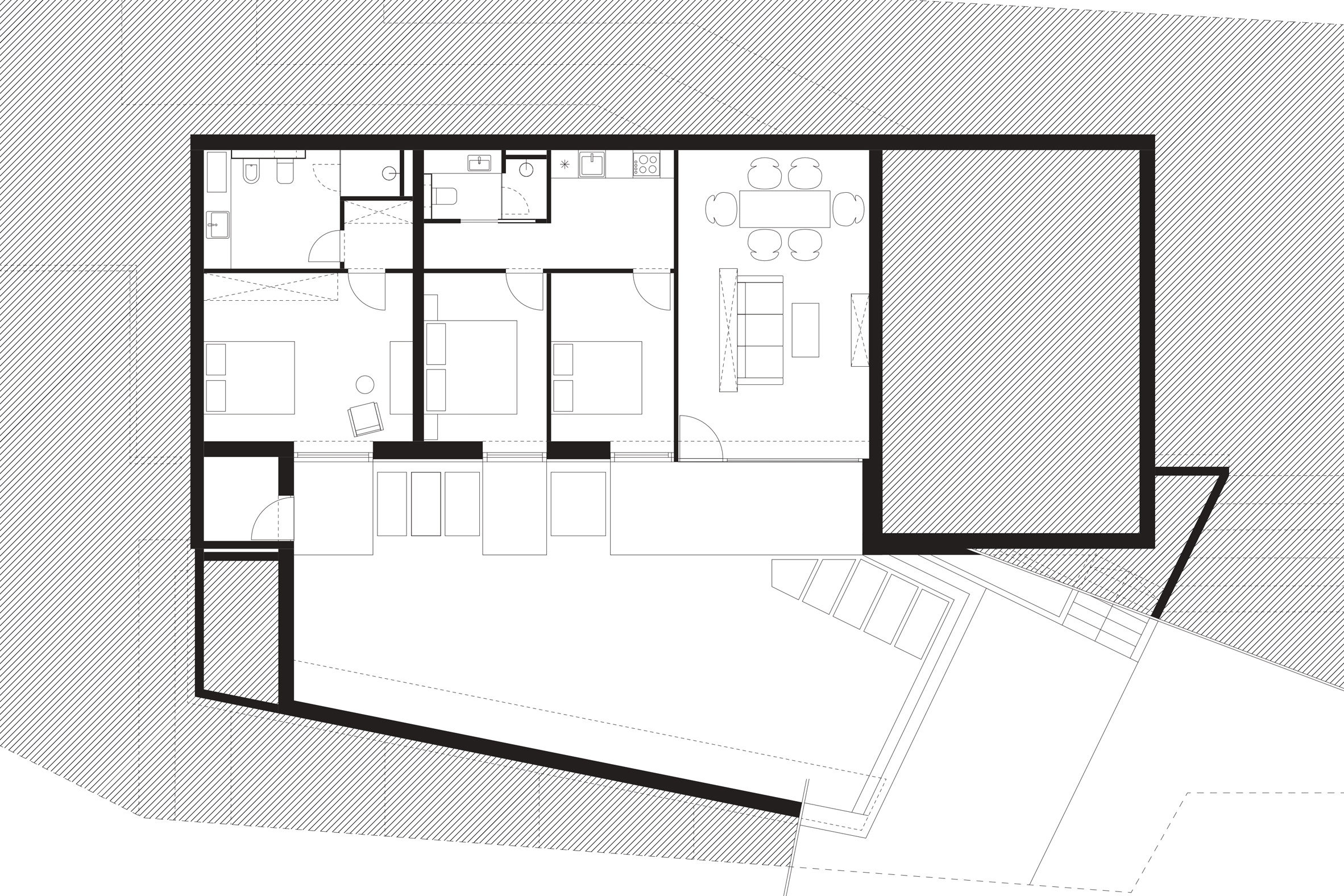
Warstwowa konstrukcja domu została wkomponowana w zbocze wzgórza. Dolna kondygnacja nawiązuje do lokalnej architektury z płaskim dachem z lat 60. XX wieku i jest obłożona kamieniem wydobywanym lokalnie w Tihany.

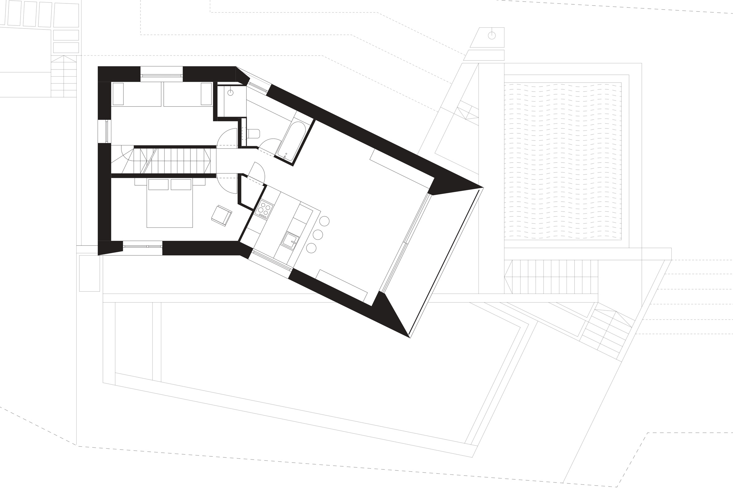
Górna kondygnacja jest grą słów nawiązującą do tradycyjnych budynków w stylu wiejskim, które można znaleźć na północnym brzegu jeziora Balaton, które zazwyczaj mają strzechy wykonane z trzciny zbieranej z brzegów jeziora. Trzcina pokrywa wszystkie powierzchnie górnej kondygnacji, w tym spód wspornika, celebrując wielowiekową tradycję stosowania jej jako materiału budowlanego w tym regionie.

Kompaktowa betonowa kondygnacja środkowa ma saunę i zaplecze kąpielowe. Łączy się z przestronnym tarasem zewnętrznym, ukrytym pod okapem piętra powyżej, i z basenem za nim. "Środkowy poziom został zaprojektowany tak, aby stworzyć przytulną przestrzeń wewnętrzną, która płynnie przechodzi w otoczenie zewnętrzne” — wyjaśnia Reisz. „Ma na celu uchwycenie istoty tych małych domów wakacyjnych na południowym brzegu”.