Fot. Shengliang Su | Arch. Benzhe Design

Renowacja magazynuw Chinach

BANCANG to unikalny projekt zlokalizowany w parku EKA-Tianwu w Szanghaju, który pierwotnie pełnił funkcję magazynu w latach 60. XX wieku. Renowacja tego obiektu, zaprojektowana na zlecenie właściciela, miała na celu przekształcenie magazynu w przestrzeń komercyjną, jednocześnie zachowując elementy tradycji i dostosowując budynek do nowoczesnych potrzeb. Projekt renowacji parku jest pionierski i ma na celu odzwierciedlenie przyszłości tego miejsca, zarówno pod względem funkcji, jak i designu.

Fot. Shengliang Su | Arch. Benzhe Design

BANCANG zachowuje pierwotną formę budynku, upraszczając jednocześnie jego wygląd. Oryginalną południową ścianę usunięto, a na jej miejsce wprowadzono szklaną metalową kratę, która otworzyła przestrzeń wewnętrzną, pozwalając na lepsze połączenie z otoczeniem. Wschodnia fasada budynku, zwrócona w stronę otwartego basenu krajobrazowego, stanowi główny element wizualny, który nadaje budynkowi lekkości i nowoczesny charakter. Lukarnę o długości 16 metrów odchylono od głównej elewacji, co zaburza równowagę budynku, wprowadzając nowoczesny element w tradycyjnej formie.

Fot. Shengliang Su | Arch. Benzhe Design

Zmiany wprowadzone w oknach i drzwiach to kolejny krok w kierunku modernizacji. Oryginalne okna na parterze zostały zastąpione czteroblokowymi drzwiami kratowymi, które można otwierać na obie strony, zacierając granice między wnętrzem a zewnętrzem. Prawą stronę głównej elewacji pokryto karbonizowanym drewnem, w którym ukryto drzwi i okna, nadając budynkowi naturalny, ale nowoczesny wygląd, z charakterystycznym akcentem ekologicznym.

Fot. Shengliang Su | Arch. Benzhe Design

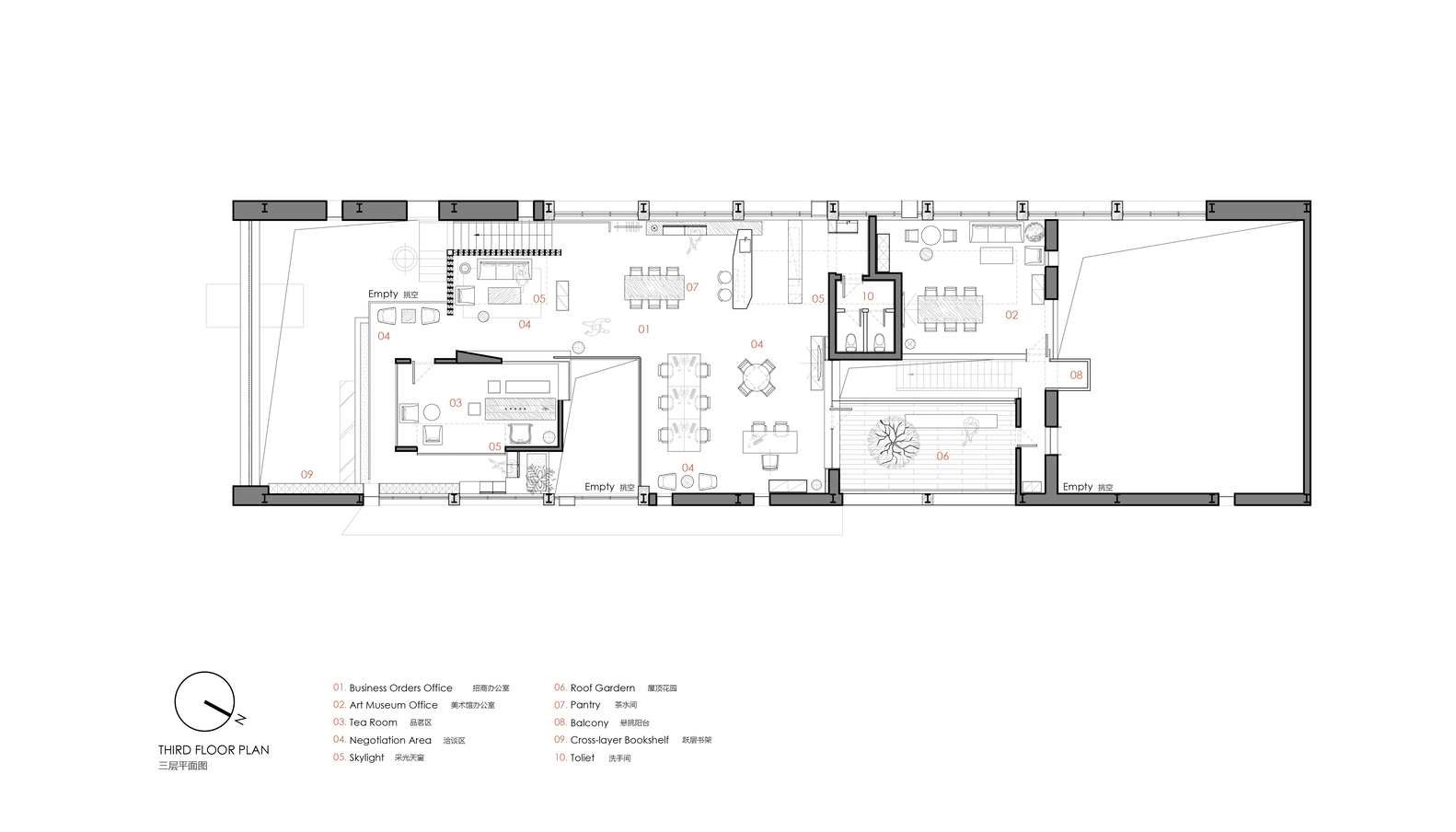
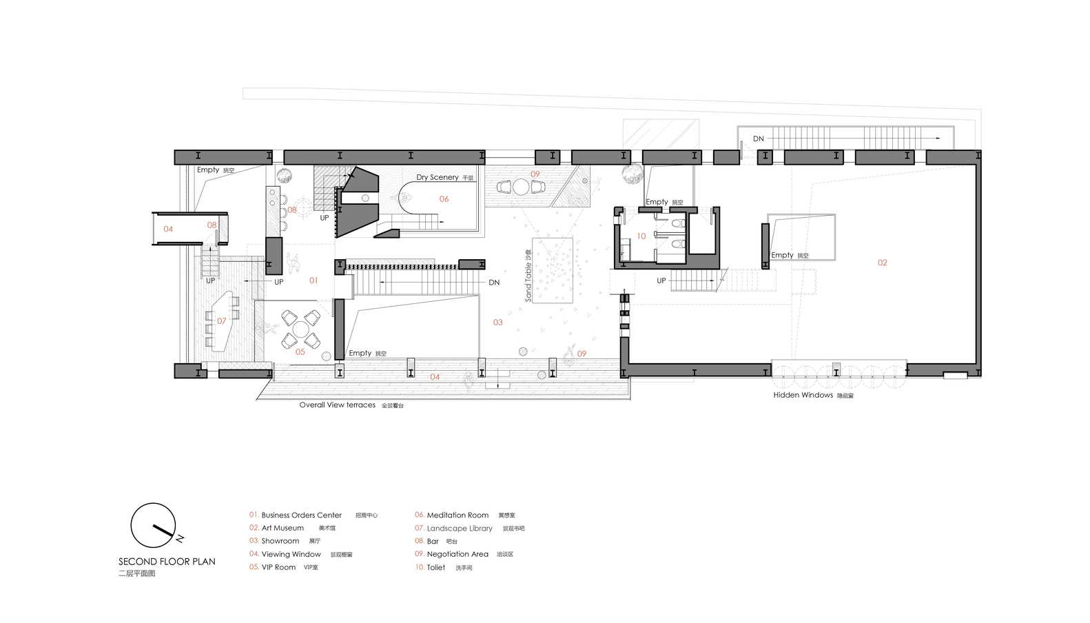
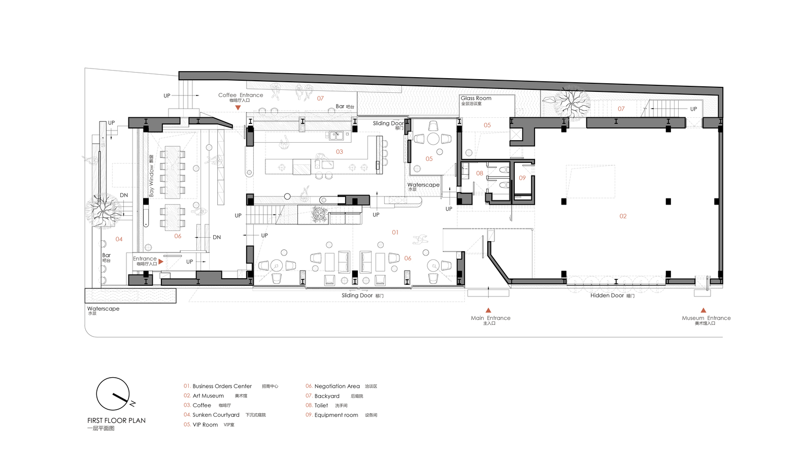
Parter budynku po renowacji obejmuje kawiarnię, salę recepcyjną i przestrzeń biznesową, a projekt ukierunkowany jest na otwartą przestrzeń i komunikację. Dzięki temu użytkownicy mogą swobodnie poruszać się w obrębie budynku, co wspiera dialog i interakcję. Drugie piętro zostało zaprojektowane jako strefa relaksu, z małą biblioteką oraz strefą do medytacji, które oferują przestrzeń do odpoczynku i wyciszenia.

Fot. Shengliang Su | Arch. Benzhe Design

BANCANG, łącząc tradycyjny magazyn z nowoczesnymi rozwiązaniami, przypomina nowoczesną stodołę, w której harmonia między przeszłością a przyszłością staje się kluczowym elementem jego wyjątkowego charakteru.