Fot. Philipp Kreidl | Arch. CP architektur

Harmonijne połączeniehistorii i współczesności

W urokliwej gminie Jois nad Jeziorem Nezyderskim, w austriackim Burgenlandzie, zespół CP-architektur tchnął nowe życie w zabytkowy dom wiejski i dawną stodołę, przekształcając je w nowoczesną, energooszczędną przestrzeń mieszkalną. Projekt Bauernhaus M1 to przykład architektury, która łączy szacunek do tradycji z nowoczesnym designem i funkcjonalnością – zrealizowany z użyciem koncepcji „domu w domu” oraz idei nowoczesnej stodoły.

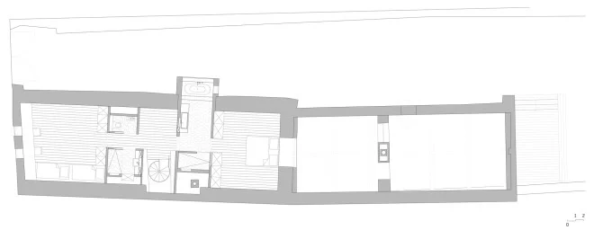
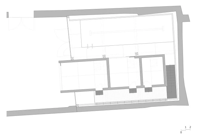
Zewnętrzne mury z kamienia łupanego, otaczające całą działkę, nie tylko stanowią ochronę prywatności, ale także wpisują się w lokalne dziedzictwo architektoniczne. Główny, dwuspadowy budynek mieszkalny, wraz z dawną stodołą, zachował swoją oryginalną formę, a współczesne elementy wprowadzono subtelnie i z wyczuciem.

Fot. Philipp Kreidl | Arch. CP architektur

Główna część mieszkalna została zrewitalizowana z dbałością o detale. Dwie nowe lukarny dachowe, w tym jedna o wyrazistej bryle pokrytej cementową płytą włóknistą, ożywiają elewację, nie naruszając jednocześnie harmonii z historyczną zabudową. Nowoczesne drewniane okna z wąskimi ramami wkomponowano w ściany z białym tynkiem, pozwalając zachować nieregularności oryginalnych struktur.

Salon i kuchnię przesunięto na tył domu – od strony ogrodu – tworząc przestrzeń otwartą, jasną i funkcjonalną. Odsłonięta więźba dachowa, spiralne schody w miejscu dawnego komina kuchennego oraz kontrastujące dębowe i stare drewniane elementy sprawiają, że wnętrze emanuje naturalnym ciepłem i przytulnością. Każdy poziom różni się wysokością, a pokoje łączy system stopni i półpięter, dopasowany do naturalnego spadku terenu.

Fot. Philipp Kreidl | Arch. CP architektur

Dawna stodoła to dziś wzorcowa nowoczesna stodoła mieszkalna, pełniąca funkcję strefy rekreacyjnej. Zachowano oryginalną więźbę dachową i kamienne ściany, całkowicie otwierając przestrzeń wnętrza. Wprowadzono konstrukcję „dom w domu” – minimalistyczny moduł w konstrukcji szkieletowej, wykończony drewnem modrzewiowym i sosną Oregon.

Wewnątrz znajduje się basen, strefa relaksu i dodatkowy pokój. Dzięki zastosowaniu przesuwanych okiennic i wielkich bram, przestrzeń można niemal całkowicie otworzyć na ogród. Przezroczyste dachówki z pleksiglasu, rozmieszczone nieregularnie na dachu, wpuszczają światło dzienne, tworząc magiczne refleksy na wodzie. Całość wnętrza inspirowana jest minimalizmem w stylu japońskim – z matami i naturalnymi materiałami.