Fot. Camilla Lindqvist | Arch. Monica Förster

Nowoczesna stodoław archipelagu sztokholmskim

Projektantka Monica Förster stworzyła Berghem – dom letniskowy, który harmonijnie wtapia się w skalisty krajobraz archipelagu sztokholmskiego. To jej pierwsze przedsięwzięcie architektoniczne, zrealizowane na wyspie Torö, niedaleko Sztokholmu.​

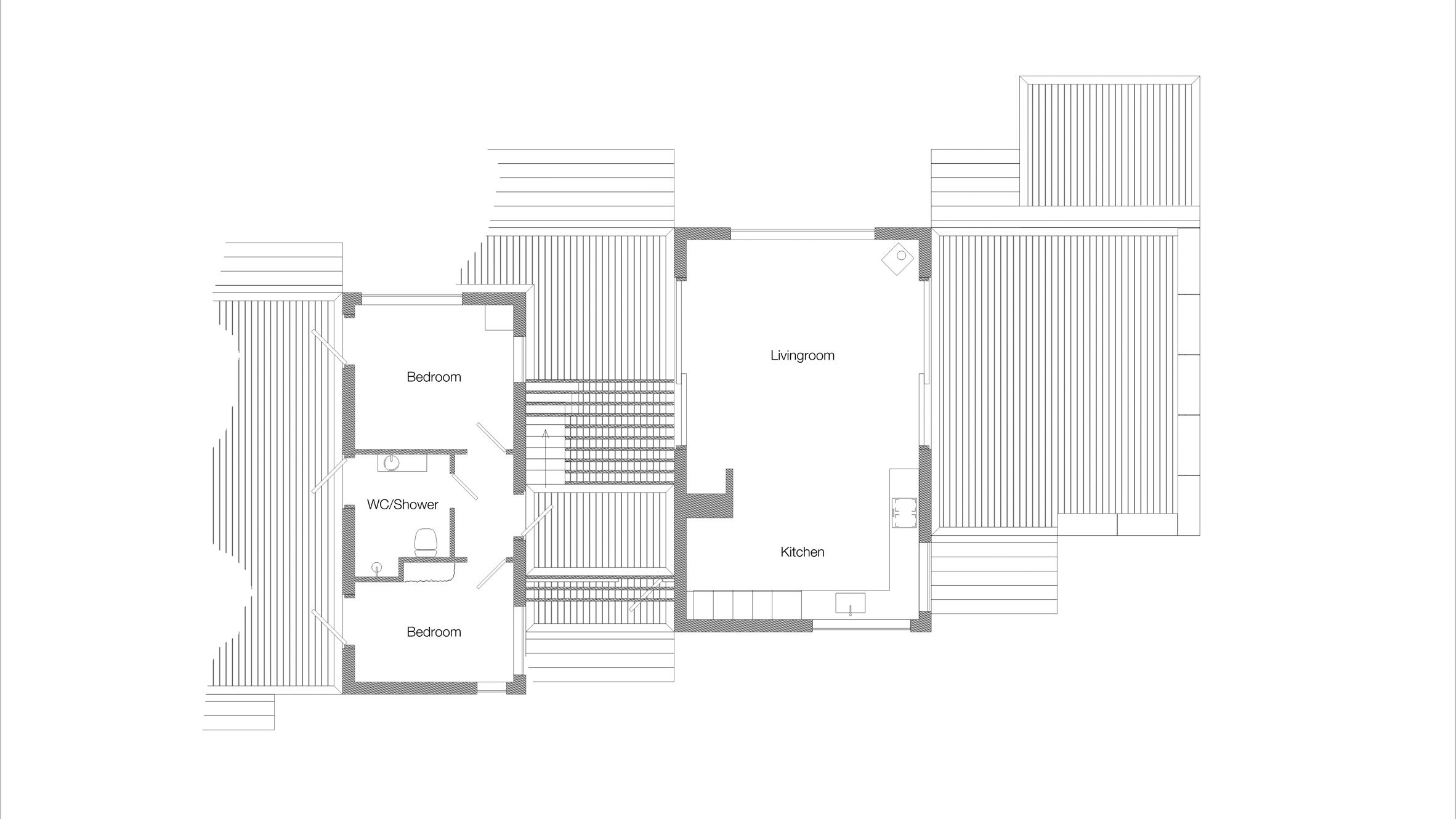
Berghem składa się z dwóch budynków, z których jeden wykorzystuje istniejącą wcześniej konstrukcję domu na działce. Decyzja o adaptacji istniejącej struktury, pierwotnie pomalowanej na tradycyjny czerwony kolor Falu, wynikała z trudności w transporcie materiałów na działkę położoną na wzgórzu, z dala od drogi.​

Fot. Camilla Lindqvist | Arch. Monica Förster

"Krajobraz jest surowy, z skalistym terenem, powyginanymi sosnami i paprociami, które definiują ten obszar" – powiedziała Förster. "Przypomina mi to naturę Laponii, gdzie dorastałam. Działka składa się głównie z skalistego wzgórza, położonego zaledwie 15 metrów od wody."​

Aby dom harmonizował z otoczeniem, Förster zastosowała na elewacji drewno Organowood – materiał nasycony krzemionką, który z czasem nabiera jasnoszarego odcienia. "Wybraliśmy tę technikę, ponieważ chcieliśmy, aby dom sprawiał wrażenie, jakby był częścią góry" – wyjaśniła projektantka.​

Dom o powierzchni 85 metrów kwadratowych podzielony jest na różne sekcje, z jednym budynkiem usytuowanym znacznie niżej niż drugi. "Dekonstruowany dom w Berghem podzielony jest na trzy sekcje, co pozwala mu wznosić się wraz ze zboczem wzgórza i oferować 380-stopniowy widok na archipelag sztokholmski" – powiedziała Förster.​

Niższy z dwóch budynków wykorzystuje strukturę istniejącego domu i mieści dwie sypialnie oraz łazienkę, podczas gdy nowo wybudowany budynek mieści salon i kuchnię. Umieszczając nowy budynek powyżej istniejącego, Förster zapewniła ochronę przed wiatrem oraz stworzyła osłoniętą przestrzeń między nimi, zacienioną pergolą, która stała się ulubionym miejscem spotkań rodziny. "To bardzo wietrzne miejsce, dość narażone na działanie żywiołów, więc dobrze jest mieć różne przestrzenie do przemieszczania się" – dodała Förster.​

Fot. Camilla Lindqvist | Arch. Monica Förster

Wnętrza Berghem utrzymane są w neutralnej kolorystyce, z białymi ścianami i drewnianymi podłogami. Kuchnia wyposażona jest w drewniane szafki i kredensy, kontrastujące z szarym kamiennym blatem i okładziną ścienną.​

Dla Förster projektowanie domu było okazją do eksploracji nowych sposobów wykorzystania swojej wiedzy projektowej."Zawsze byłam zainteresowana przekraczaniem granic i uczeniem się nowych rzeczy" – powiedziała. "Projektowanie domu to w pewnym sensie coś zupełnie nowego pod względem konstrukcji i, na przykład, rozmiaru – jednocześnie chodzi o kształt, przestrzeń, materiały i fakturę, nad którymi pracuję od 30 lat."​

Projekt Berghem pozwolił Förster na stworzenie kompleksowej wizji życia blisko natury, uwzględniając detale, materiały, faktury oraz szerszy kontekst zrównoważonego rozwoju. "W zależności od miejsca budowy domu i wyzwań związanych z lokalizacją, naturalne stało się ponowne wykorzystanie i recykling materiałów z starego domu, które pasowały do mojej wizji" – dodała.​

Projektantka planuje kontynuować pracę w dziedzinie architektury. "Naprawdę podobał mi się ten projekt i teraz mam kilka innych w przygotowaniu" – podsumowała Förster.​