Fot. Luis Ayala | Arch. Kinneymorrow Architecture

Nowy domna farmie w Massachusetts

Amerykańskie studio Kinneymorrow Architecture ukończyło budowę domu z dwuspadowym dachem, położonego na farmie w zachodnim Massachusetts. Projekt został stworzony tak, aby harmonijnie współgrać z istniejącymi budynkami gospodarczymi. Dom powstał dla czteroosobowej rodziny, która straciła poprzednią rezydencję w pożarze. Rodzina wybrała pobliską farmę jako nowe miejsce na odbudowę swojego życia.

Fot. Luis Ayala | Arch. Kinneymorrow Architecture

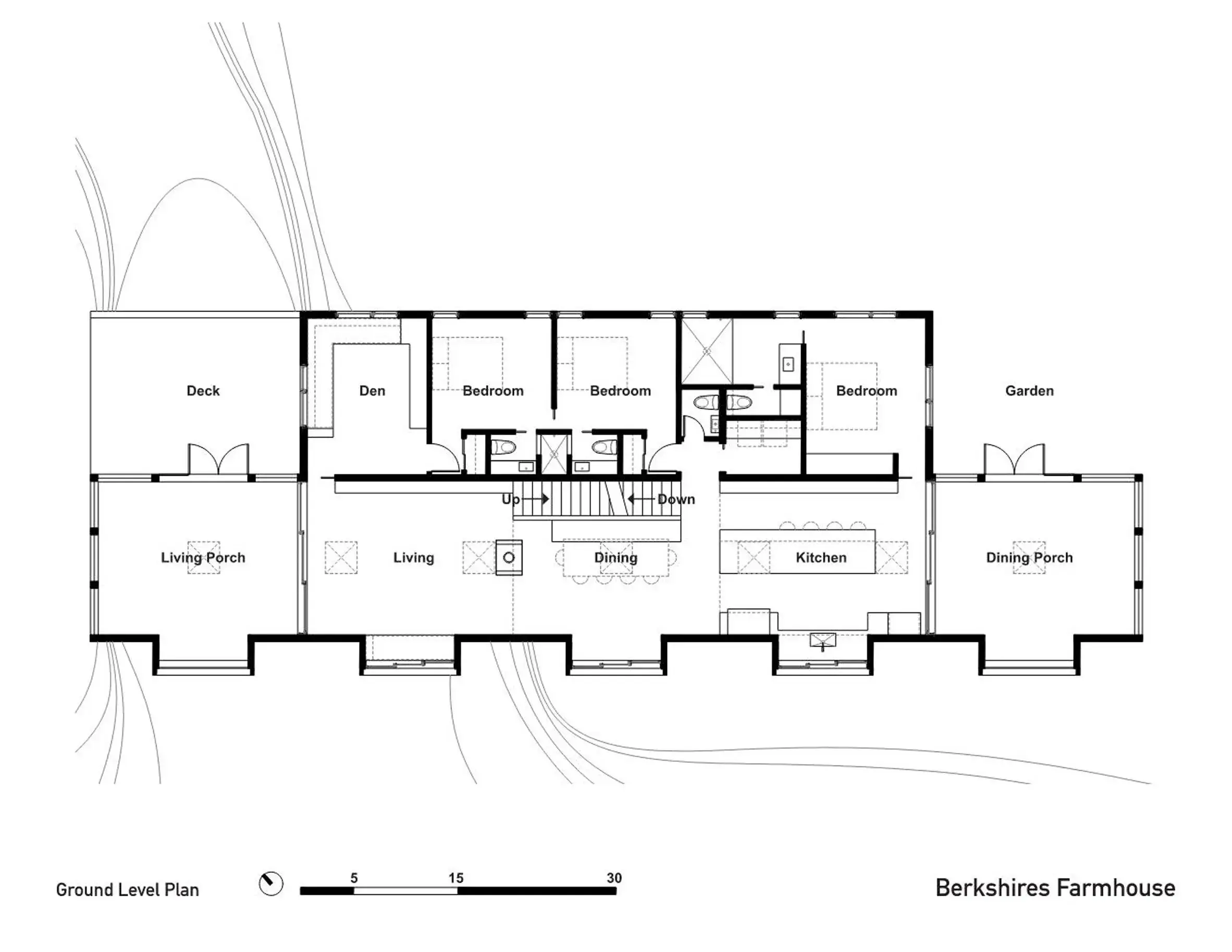
Nowy dom usytuowano na wzgórzu, skąd rozciąga się panoramiczny widok na okoliczny krajobraz, zmieniający się wraz z porami roku. Zespół architektów zaprojektował prostokątną konstrukcję o powierzchni 233 m², zwieńczoną dwuspadowym dachem. Elewacja domu została wykonana z materiałów inspirowanych bogatą w żelazo glebą oraz lokalnymi budynkami rolniczymi. „Główną inspiracją były istniejące, patynowane budynki gospodarcze w okolicy” – wyjaśnia zespół architektów. Materiały wybrano z myślą, że z czasem, bez dodatkowych powłok, nabiorą szlachetności.

Fot. Luis Ayala | Arch. Kinneymorrow Architecture

Dom podzielono wzdłuż, tworząc przestrzenie prywatne z trzema sypialniami i gabinetem, usytuowane w tylnej części budynku, z widokiem na las i poranne wschodnie światło. Przestrzenie wspólne, w tym salon, zaprojektowano w otwartym układzie po przeciwnej stronie, z widokiem na południowy zachód. Salon otoczono osłoniętymi werandami, a pięć wykuszowych okien umożliwia podziwianie farmy i okolicznej przyrody. Wnętrza wykończono cykutą i łupkiem, pozyskanymi z lokalnego kamieniołomu.

Fot. Luis Ayala | Arch. Kinneymorrow Architecture

Choć proces projektowania i budowy był dla rodziny emocjonalnie trudny, okazał się również uzdrawiający, pozwalając im przetrawić stratę poprzedniego domu.