Fot. MICHEL BONVIN | Arch. Collectif Encore

Dom artystycznyz prestiżową nagrodą architektoniczną

Na szwedzkiej wyspie Gotlandia powstał wyjątkowy dom z betonu, zaprojektowany przez francuską pracownię Collectif Encore dla artystki Birgitty Burling i jej męża Staffana. Ta nowoczesna stodoła, przypominająca naturalny głaz wpisany w surowy krajobraz wyspy, zdobyła prestiżową nagrodę Kaspera Salina – po raz pierwszy przyznaną prywatnej rezydencji. Projekt oparto na idei domu bez granic, który elastycznie dostosowuje się do zmieniających się potrzeb mieszkańców i pór roku. Zimą wykorzystywana jako energooszczędna przestrzeń mieszkalna z jedną sypialnią, latem rozciąga się do ponad 2800 m², uwzględniając ogród, plenerowe studio i strefy artystyczne.

Fot. MICHEL BONVIN | Arch. Collectif Encore

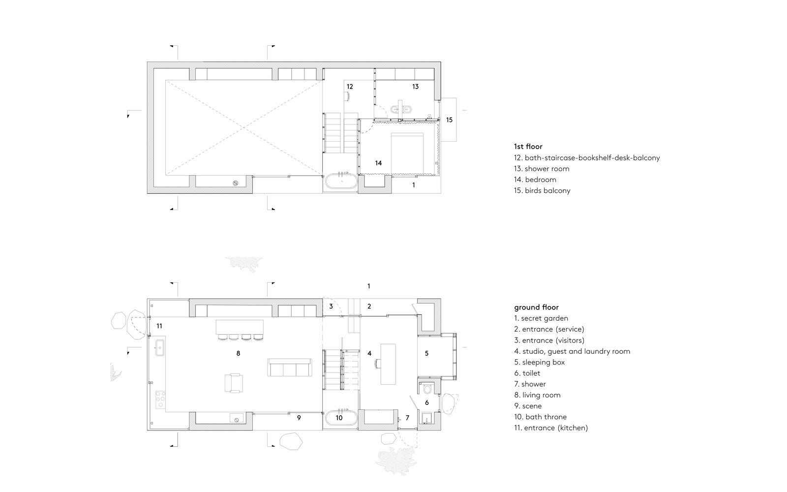
Wielofunkcyjność i minimalizm to fundamenty koncepcji Hamry – betonowej stodoły wykonanej z izolujących bloków LECA, otynkowanej na jasnoszary kolor. Wnętrza wykończono tymi samymi materiałami co elewację, a ściany pełnią tu wiele funkcji – kryją w sobie regały, meble i przestrzenie robocze, co umożliwia oszczędność miejsca i pełną adaptacyjność. Pomieszczenia łączą się bezpośrednio z ogrodem, a cały dom wyposażono w aż sześć wejść. Dzięki dużym przeszkleniom i naturalnej wentylacji przestrzeń zyskuje na lekkości, mimo „ciężkiego” charakteru konstrukcji. Część dzienna łączy się płynnie z otoczeniem, a kuchnia może funkcjonować zarówno wewnątrz, jak i na zewnątrz.

Fot. MICHEL BONVIN | Arch. Collectif Encore

Dom artystów na Gotlandii to ekologiczna rezydencja zasilana energią geotermalną i osadzona w kontekście lokalnej przyrody. Fundamenty i podłoga z betonu lanego, drzewa tworzące mikroklimat oraz naturalna cyrkulacja powietrza podkreślają zrównoważony charakter projektu. Przestrzeń zaprojektowano jako laboratorium twórczości – miejsce pracy, wypoczynku i wydarzeń artystycznych. Collectif Encore stworzyło nie tylko dom, ale także eksperymentalne pudełko architektoniczne, które redefiniuje pojęcie współczesnego mieszkania. Ta nowoczesna stodoła to manifest wolności, funkcjonalności i głębokiego zakorzenienia w naturze.