Fot. David Lauer | Arch. Renée del Gaudio Architecture

Nowoczesna reinterpretacjatradycyjnej chaty

W języku angielskim “cabin” może oznaczać prosty domek lub schronienie zrobione z drewna i ulokowane w dzikim, odległym zakątku leśnym. Krótko możemy przetłumaczyć to słowo jako „chatę” i dla każdego z nas może ono oznaczać coś nieco innego. Dla niektórych to miejsce rodzinne, dla innych – miejsce odpoczynku po długim dniu spędzonym na łonie przyrody. Tak naprawdę wyraz „cabin” – „chata” zawsze opowiada swą własną historię, w oparciu o doświadczenia mieszkających tam ludzi. Projekt o nazwie „Big Cabin | Little Cabin” miał być uosobieniem charakteru i wyobrażeń na temat tradycyjnej chaty i miał pomóc tworzyć historię współczesnej rodziny, przybierając nowoczesną postać.

Fot. David Lauer | Arch. Renée del Gaudio Architecture

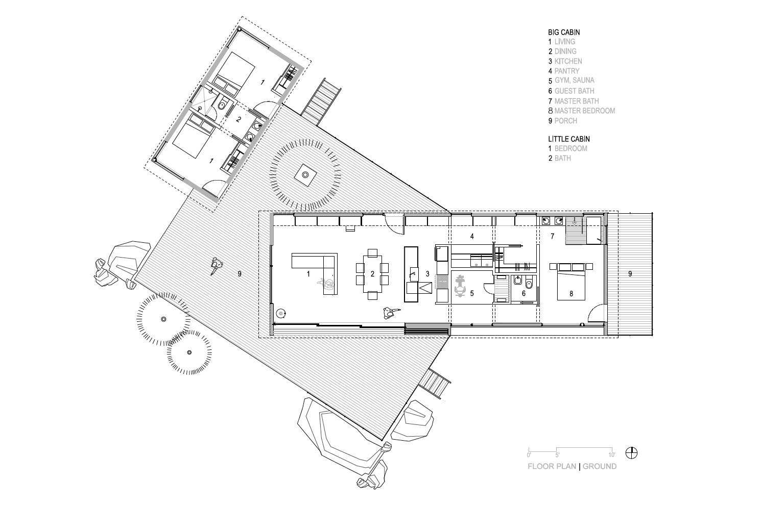
Firma Renée del Gaudio Architecture zaprojektowała dwie chaty. Nowoczesna chata stanęła na wysokim klifie ciesząc się zachwycającymi widokami na pasmo górskie Sangre de Cristo i rzekę South Platte River w stanie Kolorado. Od północy nieruchomość otacza gęsty las jodeł i sosen, tworząc wrażenie prywatności i bezpieczeństwa.

Fot. David Lauer | Arch. Renée del Gaudio Architecture

Dwuspadowe dachy dwóch domków oraz rustykalne materiały nawiązują do wczesnej architektury regionu. Cedrowa elewacja jest barwiona na ciemno, by dopasować budynki do otaczających je drzew. Duże przeszklenia otwierają wnętrza na zapierające dech w piersiach widoki. Wykończenia wewnętrzne ze sklejki na ścianach i sufitach sprawiają, że pomieszczenia nabierają rustykalnego, stonowanego charakteru.

Fot. David Lauer | Arch. Renée del Gaudio Architecture

Prosta, otwarta organizacja wnętrza wpuszcza do środka naturalne światło i powietrze, które przenika przez cały dom. Energooszczędne urządzenia oraz oświetlenie LED ograniczają do minimum zużycie prądu. Odpowiednia izolacja, podwójne i potrójne okna oraz specjalne szyby wraz z żaluzjami pozwalają zachować chłód w lecie i ciepło w zimie. Domek wyposażono w wydajny bojler, ogrzewanie podłogowe oraz piecyk opalany drewnem. Chata ma też odpowiednią ilość paneli fotowoltaicznych, które zapewniają mieszkańcom 100% elektryczności.