Arch. TXMA
  • Architekt

    TXMA
  • Lokalizacja

    Polska

Zrównoważone życie,praca i permakultura w jednym

Pandemia z 2020 roku zapoczątkowała głębokie przemiany społeczne i technologiczne, które na nowo definiują codzienne nawyki oraz sposób organizacji życia. Wymusiła globalną transformację naszych modeli funkcjonowania – pracy, rodziny i domowego życia – jednocześnie przyspieszając rozwój rozwiązań wdrażanych w czasie kwarantanny. Prezentowany projekt domu antycypował te zmiany, proponując nowy kierunek myślenia o zamieszkiwaniu i adaptując przestrzeń do aktualnych, dynamicznie zmieniających się potrzeb współczesnego użytkownika.

Arch. TXMA

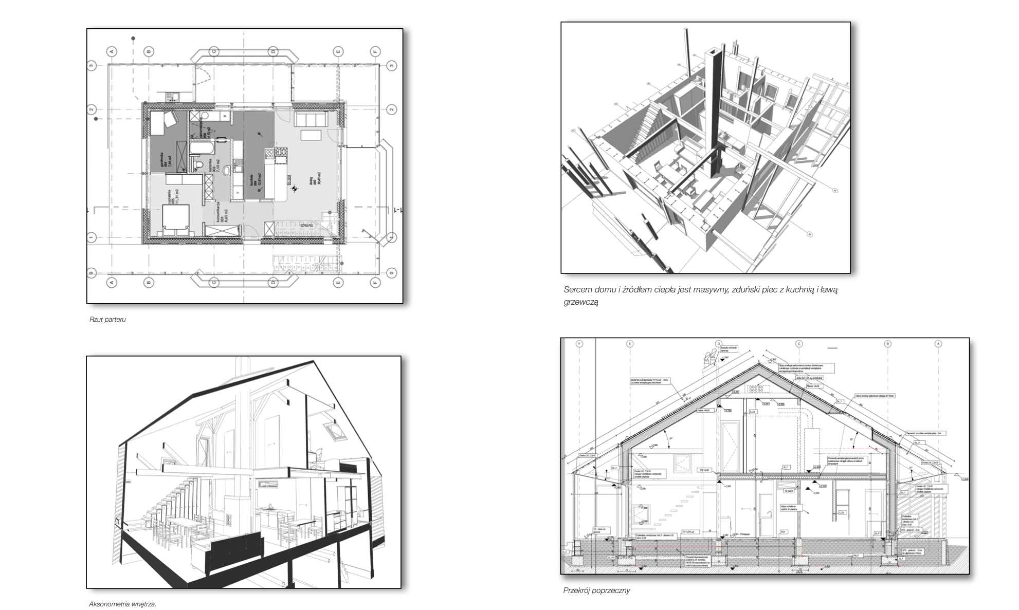
Dom nie pełni już jedynie funkcji noclegowej – staje się miejscem pełnej egzystencji: pracy zdalnej, odpoczynku, rozwoju osobistego oraz działań związanych z własnym gospodarstwem. W ograniczonym budżecie i przy dużym udziale pracy inwestora powstało centrum życia codziennego, które stało się zarazem początkiem permakulturowego ogrodu spożywczego rozrastającego się wokół budynku. Tego typu podejście, nawiązujące do idei nowoczesna stodoła, łączy w sobie funkcjonalność, samowystarczalność i głęboką integrację z naturą.

Arch. TXMA

Forma budynku oraz podwójna fasada wynikają z funkcjonalnych potrzeb, zorientowania względem wędrówki słońca oraz harmonijnego wpisania domu w przestrzeń ogrodu. Szeroki okap i otaczające dom tarasy tworzą strefę buforową – przejście pomiędzy domem a ogrodem, pomiędzy kulturą a naturą. Przestrzenie te działają jako letnia kuchnia, warsztat, magazyn ogrodowy czy zimowy ogród. Całość została wykonana z naturalnych, niskoprzetworzonych i recyklingowanych materiałów, takich jak prasowana słoma, niewypalana cegła gliniana, celuloza, glina bita czy drewno, co podkreśla ekologiczny charakter projektu i jego zgodność z ideą zrównoważonego budownictwa.