Arch. INDY ARCHITECTES

Energooszczędny projektinspirowany tradycją i naturą

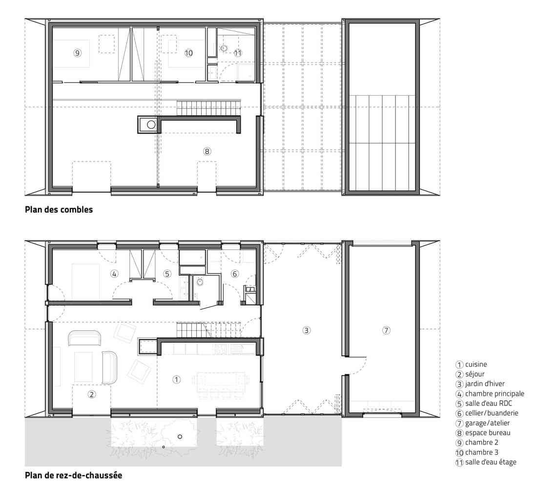
W bretońskiej gminie Crach powstał wyjątkowy bioklimatyczny dom zaprojektowany przez pracownię INDY ARCHITECTES. Projekt „Longère” to przykład zrównoważonego budownictwa, które harmonijnie łączy nowoczesność z lokalną tradycją. Dom o powierzchni 164 m² został stworzony jako energooszczędne miejsce do życia – idealne dla pary ceniącej komfort, naturalne światło i częste spotkania z bliskimi. Dzięki wydłużonemu planowi budynku, wnętrza są pełne słońca, a ogród zimowy działa jak naturalna, pasywna ochrona termiczna.

Arch. INDY ARCHITECTES

Projektanci zadbali o maksymalne wykorzystanie zasobów naturalnych, ograniczenie emisji CO₂ oraz optymalizację zużycia energii. Kluczowym materiałem elewacyjnym jest naturalny łupek, który w połączeniu z wysoką jakością izolacji skutecznie chroni dom przed wilgotnym, oceanicznym klimatem Bretanii. W projekcie zastosowano materiały zrównoważone o bardzo dobrych parametrach izolacyjnych – zarówno w ścianach, jak i przeszkleniach, co gwarantuje niski koszt eksploatacji i komfort cieplny przez cały rok.

Arch. INDY ARCHITECTES

Inspiracją dla architektów były tradycyjne domy jednorodzinne Bretanii, jednak materiały i technologie zyskały nową, współczesną formę. Projekt „Longère” to przykład, jak połączyć efektywność energetyczną, estetykę i ekologiczny styl życia. Ten typ myślenia idealnie wpisuje się również w koncepcję architektury typu nowoczesna stodoła, choć w tym przypadku dom zdecydowanie wykracza poza typowe schematy – tworząc przestrzeń funkcjonalną, przyjazną środowisku i gotową na przyszłość.