Fot. Alessandro Magi Galluzzi | Arch. Simone Subissati

Minimalistyczna przestrzeńinspirowana tradycją

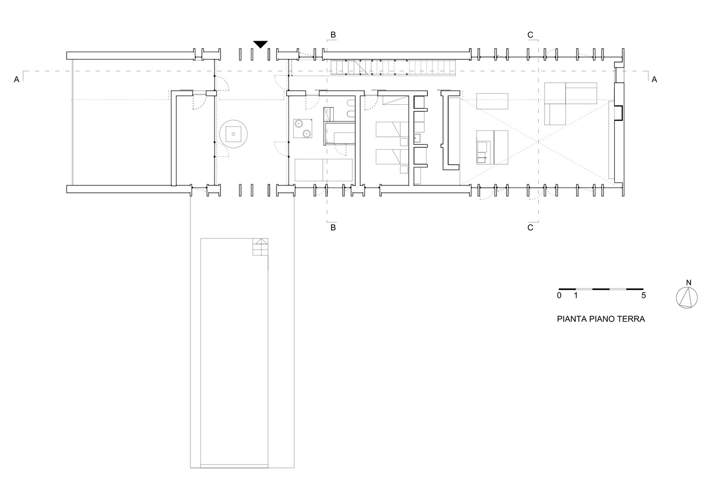
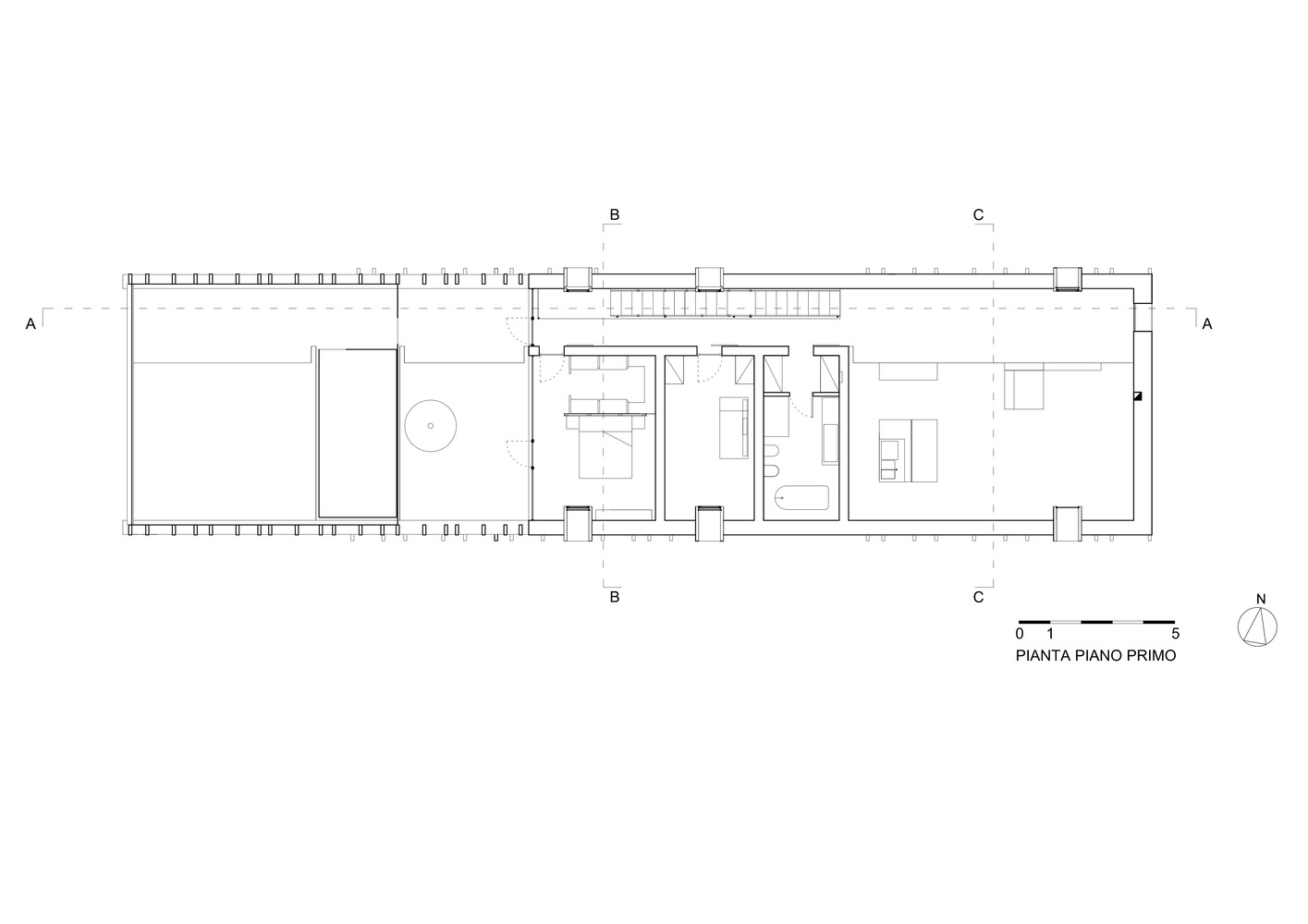
Border Crossing House to projekt domu, który redefiniuje granice między wnętrzem a zewnętrzem. Jego kompaktowa, wydłużona forma symbolizuje próg – przestrzeń do przekraczania, życia i obserwacji otaczającego krajobrazu. Architektura inspirowana wiejskimi domami regionu Le Marche łączy nowoczesność, funkcjonalność i świadome podejście do natury.

Fot. Alessandro Magi Galluzzi | Arch. Simone Subissati

Parter przypomina pocięty blok pokryty żelazem z antykorozyjną powłoką – jego rytmiczny podział widać zarówno na zewnątrz, jak i wewnątrz. Z kolei piętro zostało zaprojektowane jako bardziej intymna strefa, hybrydowo łącząca przestrzenie prywatne z widokiem na otoczenie. Duże przeszklenia, patio i panoramiczne okno pozwalają krajobrazowi przenikać do wnętrza.

Fot. Alessandro Magi Galluzzi | Arch. Simone Subissati

Dom, zlokalizowany na granicy miasta i natury, nie posiada ogrodzenia ani klasycznych tarasów – celowo otwiera się na pola i łąki. Architekci postawili na minimalizm i prostotę. Wnętrza są jasne, modułowe i zaprojektowane z myślą o funkcjonalnym, zrównoważonym stylu życia.

Fot. Alessandro Magi Galluzzi | Arch. Simone Subissati

Zastosowano naturalne materiały – drewno jesionowe i sosnowe, cement, kwarc. Budynek nie ma klimatyzacji – dobrze ocieplona konstrukcja i efekt komina zapewniają komfort przez cały rok. To więcej niż nowoczesna stodoła – to nowa forma życia w zgodzie z naturą, bez barier i z poszanowaniem dla otoczenia.