Arch. VESP Architects

Renowacja i rozbudowagruzińskiego domu

Projekt Bottor Cottage zakładał kompleksowy remont i rozbudowę gruzińskiej posiadłości położonej w malowniczym lesie południowego Dartmoor, na działce o powierzchni 1,62 ha. Chata, która wcześniej była nieestetycznie rozbudowywana, popadła w całkowitą ruinę. Klienci pracowni VESP Architects kupili nieruchomość na aukcji i zlecili architektom zadanie przywrócenia tej wyjątkowej nieruchomości do życia.

Arch. VESP Architects

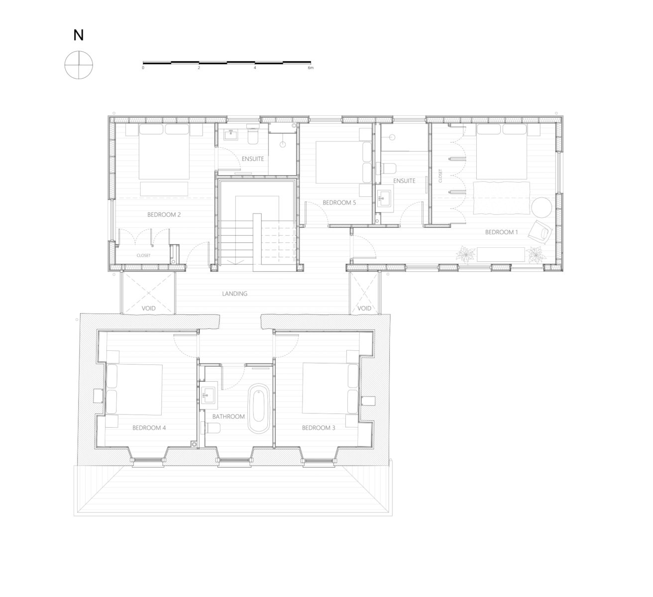
Pierwszą decyzją architektów było usunięcie źle zaprojektowanych dobudówek z tyłu budynku, co pozwoliło na przywrócenie domu odpowiednich proporcji i umożliwiło mu „oddychanie”. Drugą decyzją było zaprojektowanie nowej, współczesnej dobudowy, która naśladuje proporcje pierwotnego domu. Nowa część posiadłości została ustawiona na tyłach budynku, połączona lekkim przeszklonym łącznikiem, który zapewnia płynne połączenie między tradycyjną częścią domu a nowoczesną rozbudową.

Arch. VESP Architects

W ramach renowacji odrestaurowano formalne pomieszczenia, odsłaniając piękne belki dachowe, co przywróciło domowi jego dawny urok. Nowa rozbudowa wprowadziła nowoczesne, otwarte przestrzenie, które charakteryzują się dużą ilością przeszklenia, zapewniając doskonałe doświetlenie wnętrz. Dobudowa została pokryta modrzewiem syberyjskim firmy Brunel, ma dach ze stali malowanej proszkowo i wykorzystuje wysokowydajne przeszklenie, które dodatkowo podkreśla współczesny charakter budynku.

Arch. VESP Architects

Doskonałe wyczucie stylu właściciela nadało charakteru każdemu pomieszczeniu. Wnętrza zostały wzbogacone o płytki porcelanowe z kamienia mandaryńskiego, które okazały się wielkim sukcesem, dodając elegancji i wyjątkowego charakteru przestrzeni. Ogrody oraz otaczający krajobraz leśny, które doskonale łączą georgiański dom z naturą, zostały zaprojektowane przez Alice Blount, tworząc harmonijną przestrzeń na świeżym powietrzu.