Fot. Nicolas da Silva Lucas | Arch. Bauclub

Industrialny dom zwidokiem na naturę

BRDN to wyjątkowy dom rodzinny w Brukseli, przeprojektowany przez Bauclub w 2021 roku w industrialnym stylu. Projekt przekształcił przestrzeń, łącząc estetykę nowoczesnej stodoły z funkcjonalnością i harmonią z otoczeniem, wzmacniając relację domu z ogrodem i naturą.

Fot. Nicolas da Silva Lucas | Arch. Bauclub

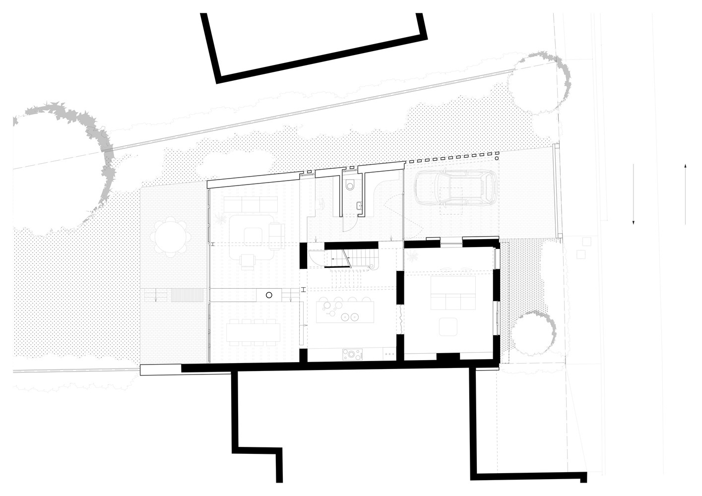
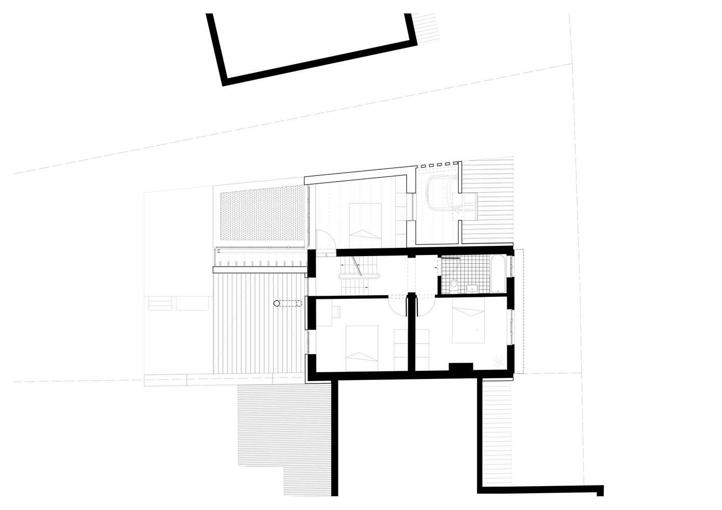
Przebudowa wprowadziła płynny podział od wspólnych przestrzeni do prywatnych. Zmieniono wejście, dodając wielofunkcyjną przestrzeń jako obszar przejściowy. Centralnym punktem domu stała się kuchnia, która łączy wszystkie części domu, od nowoczesnego salonu po zmodernizowane sypialnie i łazienki. Dobudówka zawiera nową sypialnię, a poddasze dla rodziców oferuje widok na park przyrodniczy Kauwberg przez świetlik, tworząc wyjątkową atmosferę.

Fot. Nicolas da Silva Lucas | Arch. Bauclub

Projekt zachowuje oryginalną tożsamość budynku, jednocześnie wprowadzając nowoczesne rozwiązania energetyczne i funkcjonalne. Industrialne akcenty, takie jak odsłonięte elementy konstrukcyjne i surowe materiały, podkreślają charakter domu, nadając mu unikalny styl inspirowany estetyką nowoczesnej stodoły.