Fot. Casey Dunn | Arch. Side Angle Side

Dom z dwuspadowym dachemi minimalistycznym wyrazem

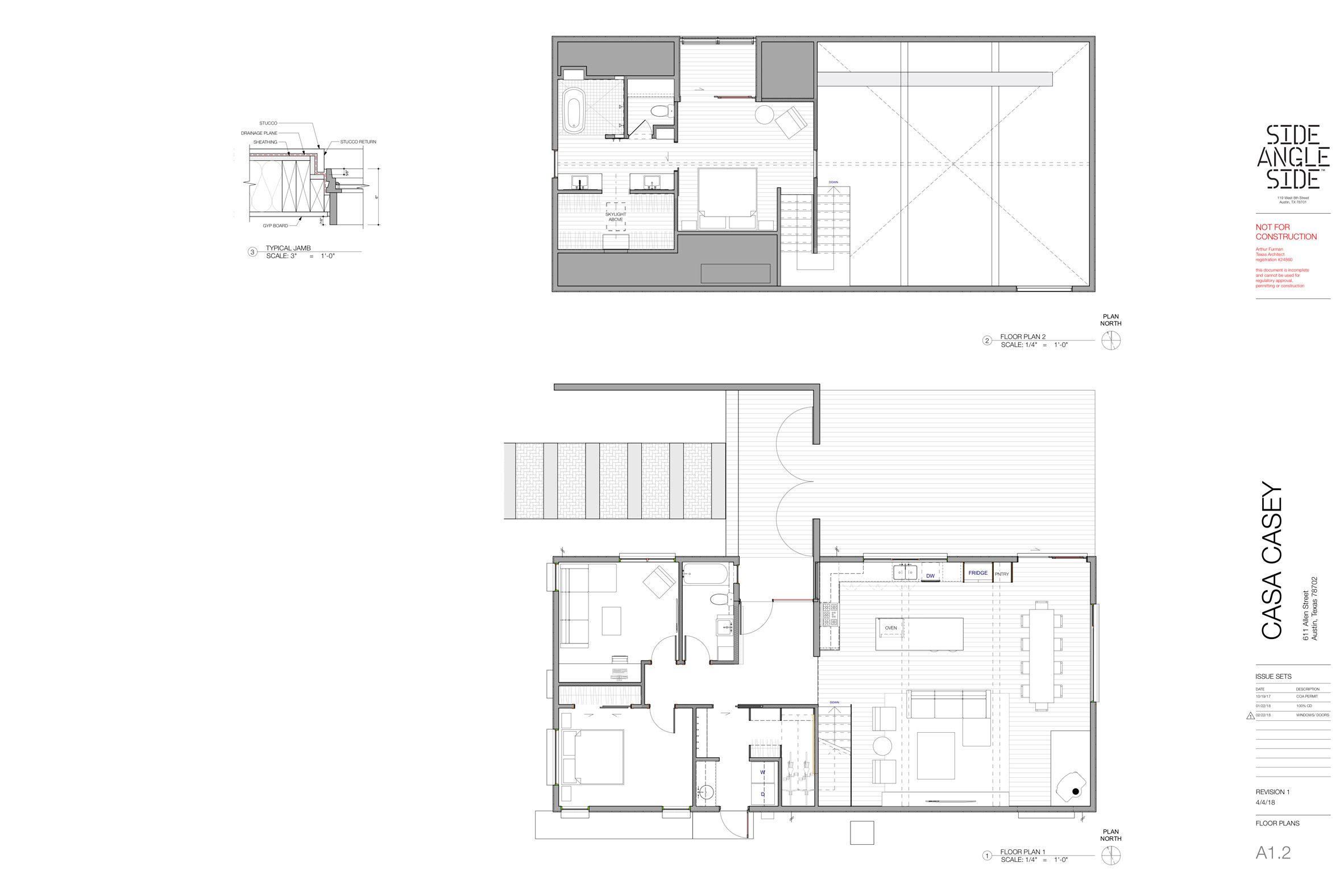
Casa Casey to doskonały przykład nowoczesnej stodoly zaprojektowanej przez amerykańską pracownię Side Angle Side. Charakteryzuje się minimalistycznym stylem oraz wyrazistą sylwetką. Z dwuspadowym dachem, pokrytym blachą na rąbek stojący, budynek jest przestronnym, dwupiętrowym domem o powierzchni użytkowej 177 metrów kwadratowych. Początkowo planowany jako mniejszy, Casa Casey został rozbudowany w trakcie realizacji projektu, kiedy jego właściciel, znany fotograf architektury Casey Dunn, ożenił się. Potrzebował większej przestrzeni, aby stworzyć komfortowe miejsce do życia dla swojej rodziny.

Fot. Casey Dunn | Arch. Side Angle Side

Dom miał być prosty i ascetyczny, inspirowany budynkami, które Dunn fotografował w Teksasie i Maine. Minimalistyczna architektura wynika z prostoty formy, której zadaniem było stworzenie przestrzeni idealnej do codziennego życia, w której domownicy czują się komfortowo i swobodnie. Zewnętrzna bryła jest prosta, wzniesiona na planie prostokąta, z konstrukcją szkieletową wypełnioną gliną. Elewację pokryto szarym, polerowanym stiukiem, który idealnie komponuje się z naturalnym otoczeniem.

Fot. Casey Dunn | Arch. Side Angle Side

Casa Casey to projekt, który łączy funkcjonalność z estetyką. Ograniczone przeszklone powierzchnie zapewniają kontrolę nad temperaturą w budynku, szczególnie w gorące dni. We wnętrzach znajduje się przestronna, dwupoziomowa strefa dzienna, obejmująca kuchnię i jadalnię. Drewniana belka z odzysku, biegnąca przez całe pomieszczenie, nadaje przestrzeni unikalny charakter. Piec opalany drewnem w rogu pomieszczenia stanowi centralny punkt i kontrastuje z jaśniejszymi elementami wystroju.

Fot. Casey Dunn | Arch. Side Angle Side

Wnętrza Casa Casey utrzymane są w naturalnych, neutralnych kolorach i ziemistych tonach. Podłogi w całym domu wykonano z desek sosnowych z odzysku, co podkreśla ekologiczny charakter domu. Prosta, ale funkcjonalna przestrzeń sprawia, że Casa Casey to przykład doskonale zaprojektowanego domu, który harmonijnie łączy estetykę nowoczesnej stodoly z wygodą i praktycznością codziennego życia.