Fot. Matias Riveros | Arch. Viento Norte
  • Architekt

    Viento Norte
  • Fotograf

    Matias Riveros
  • Lokalizacja

    Las Quemas, Chile

Połączenie piękna naturyze współczesnym komfortem

Casa Cumbre to projekt mieszkalny, który reinterpretuję życie na wsi, łącząc naturalne piękno z nowoczesnym komfortem. Zlokalizowana w Las Quemas, niedaleko Puerto Varas, Casa Cumbre to przykład nowoczesnej stodoły, która łączy w sobie tradycję i współczesne rozwiązania architektoniczne, oferując elastyczną przestrzeń dostosowaną do różnych typów użytkowania.

Fot. Matias Riveros | Arch. Viento Norte

Położona na malowniczej pastwiskowej łące, Casa Cumbre została zaprojektowana z myślą o widokach na pasmo górskie Andów i okoliczny ogród. Przestronność wnętrza podkreśla przezroczysta oś biegnąca przez budynek od wschodu na zachód, zapewniając optymalną ekspozycję słoneczną. Zintegrowane przestrzenie salonu, jadalni i kuchni o podwójnej wysokości dają poczucie otwartości i przestronności, umożliwiając naturalne oświetlenie o różnych porach dnia. Mały pokój na piętrze dodatkowo wzmacnia to wrażenie.

Fot. Matias Riveros | Arch. Viento Norte

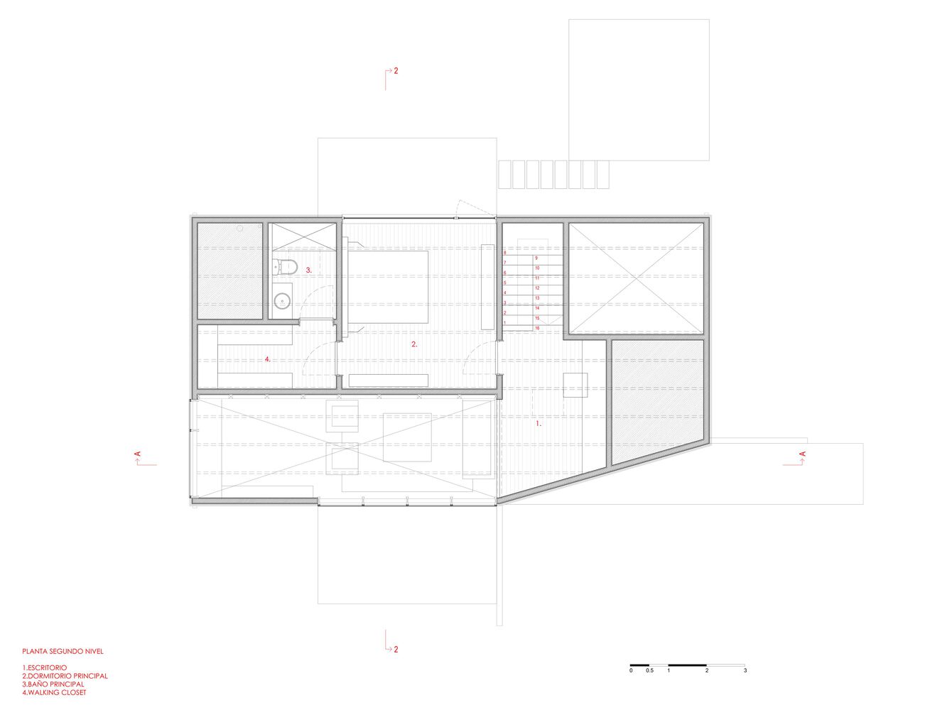
Wschodnią część domu zajmuje ogród zimowy, który stanowi przestrzeń przejściową między wnętrzem a zewnętrzem. Jest to miejsce osłonięte przed deszczem, ale otwarte na słońce, które zimą pomaga naturalnie ogrzać dom. Ta część Casa Cumbre stanowi przedłużenie wnętrza, wprowadzając naturalne elementy otaczającej przyrody do codziennego życia. Parter Casa Cumbre obejmuje główne przestrzenie wspólne oraz sypialnię dla gości z łazienką. Na piętrze znajduje się główna sypialnia z łazienką i garderobą, a także mały pokój. Kalenica domu, czyli najwyższy punkt dachu, jest zgodna z układem piętra, co nadaje budowli harmonijny, wyważony wygląd.

Fot. Matias Riveros | Arch. Viento Norte

Projekt Casa Cumbre wykorzystuje system mieszanej konstrukcji, łącząc stalową ramę z tradycyjną drewnianą konstrukcją. Czarna cynkowana powierzchnia zewnętrzna w połączeniu z drewnianymi detalami nadaje domu nowoczesny, ale ciepły charakter. Drewno, jako materiał zrównoważony i przyjazny dla środowiska, jest kluczowym elementem w konstrukcji, zarówno w podłogach, jak i ścianach, co zmniejsza ślad węglowy projektu. Drewno to materiał odnawialny i biodegradowalny, idealny do zrównoważonego budownictwa. Dzięki temu Casa Cumbre nie tylko pasuje do swojego otoczenia, ale również promuje odpowiedzialne korzystanie z zasobów naturalnych i harmonię z naturą.