Fot. Javier Bravo | Arch. gurea arquitectura cooperativa

Bioklimatycznyprojekt domu

Dom jednorodzinny zaprojektowany z wykorzystaniem strategii bioklimatycznych, łączący nowoczesną architekturę z naturalnym krajobrazem, stanowi doskonały przykład nowoczesnej stodoły. Zbudowany w warsztacie przy użyciu innowacyjnego systemu drewna klejonego i precyzyjnie wykończony na miejscu przez właścicieli, ten dom wpisuje się w nowoczesny styl życia na wsi, zachowując pełną harmonię z otaczającą przyrodą. Położony na granicy wioski Navajeda i naturalnego krajobrazu, oferuje panoramiczne widoki na góry, malowniczo okalane przez kręty strumień.

Fot. Javier Bravo | Arch. gurea arquitectura cooperativa

Projekt łączy abstrakcyjną strukturę z minimalistycznym podejściem, gdzie prosta bryła i nowoczesny styl stanowią kontrast do złożonego układu przestrzennego wewnątrz. Fasada domu została zaprojektowana z naturalnych materiałów, takich jak korek i drewno, które harmonijnie wpasowują się w krajobraz, a zastosowanie drewna laminowanego w konstrukcji pozwala na precyzyjny montaż prefabrykowanych elementów. Dach z blachy falistej, inspirowany zmiennym klimatem Kantabrii, dopełnia całość.

Fot. Javier Bravo | Arch. gurea arquitectura cooperativa

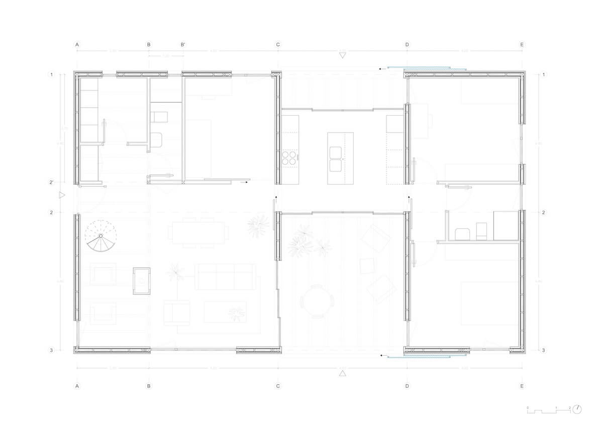
Wnętrze domu wyróżnia się nowoczesnym rozkładem przestrzennym, gdzie galeria pełni funkcję szklarni przez większą część roku, rozprowadzając naturalne ciepło do obu części domu. Kuchnia, jako centralny punkt, łączy przestrzenie i kształtuje plan piętra w kształcie litery „H”. Projektowane z myślą o bioklimatyczności, dom charakteryzuje się minimalnym zużyciem energii, wykorzystując ulepszoną izolację oraz podłogowe ogrzewanie aerotermalne.

Fot. Javier Bravo | Arch. gurea arquitectura cooperativa

Zastosowanie uprzemysłowionych systemów budowlanych pozwoliło na znaczną redukcję czasu budowy, śladu węglowego oraz zapotrzebowania na energię. Konstrukcję z laminowanych ram drewnianych wykonano w warsztacie, a elementy zostały przetransportowane na miejsce, gdzie zmontowano je w zaledwie tydzień. Drobne prace wykończeniowe i detale zostały wykonane przez właścicieli. Dzięki tym innowacyjnym rozwiązaniom, ten dom osiąga niemal zerowe zużycie energii, a jego konstrukcja doskonale wpisuje się w ideę sustainability i nowoczesnej architektury wiejskiej. To przykład domu bioklimatycznego, który łączy estetykę, funkcjonalność i ekologiczne podejście do budownictwa.