Fot. Leonardo Finotti | Arch. Architectare

Dom zaprojektowanyna spokojną starość

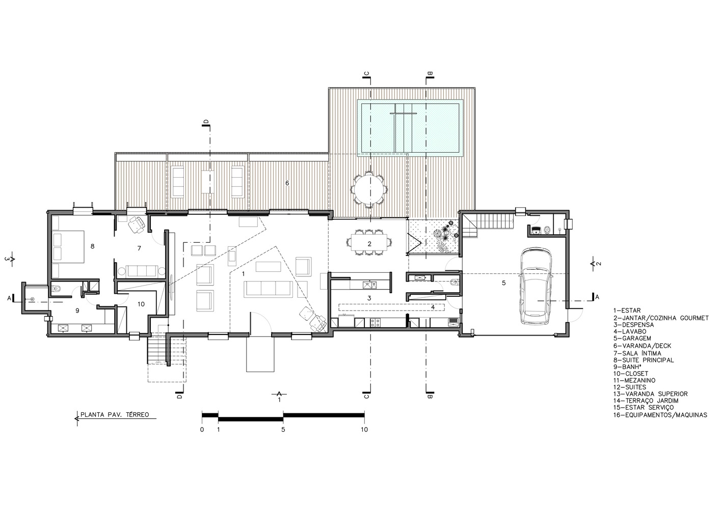
Casa de Pedra to wyjątkowy dom wakacyjny zaprojektowany z myślą o starszej parze, która pragnęła nowego miejsca do życia – spokojnego, funkcjonalnego i bezpiecznego. Projekt powstał na bazie doświadczeń wyniesionych z ich poprzedniego domu i został ukształtowany wokół potrzeby komfortu, prywatności i kontaktu z naturą.

Fot. Leonardo Finotti | Arch. Architectare

Dom przywodzi na myśl nowoczesną stodołę – minimalistyczną, ale solidną, wykonaną z kamienia i osadzoną na lekkiej platformie, co sprawia, że bryła wydaje się unosić nad zboczem terenu. Od strony frontowej zaprojektowano duży taras z basenem, który pełni funkcję zarówno wypoczynkową, jak i wizualnego przedłużenia wnętrz, podkreślając charakter domu mimo jego zamkniętej formy.

Fot. Leonardo Finotti | Arch. Architectare

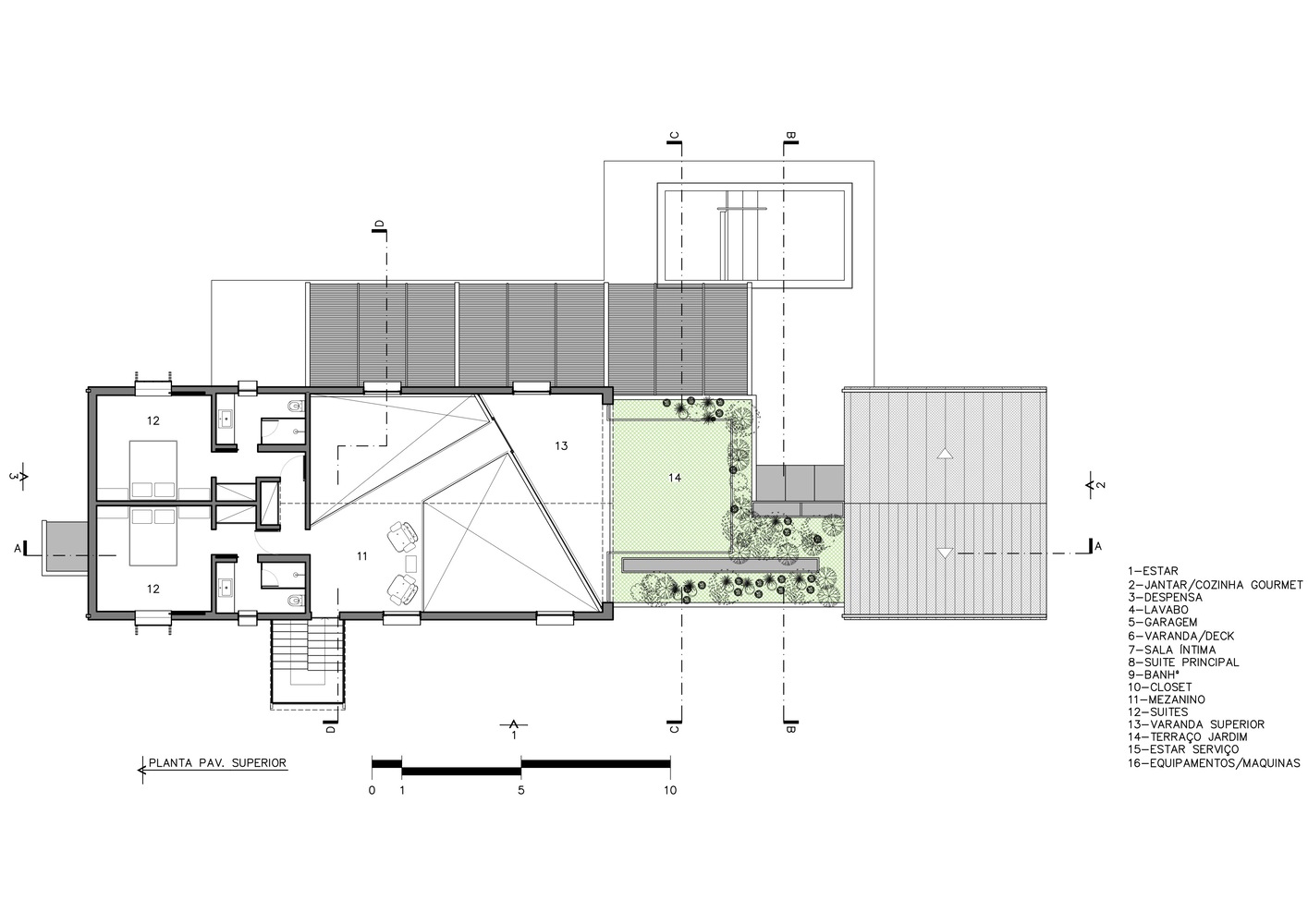
Jednym z kluczowych założeń było stworzenie przestrzeni, którą można łatwo zabezpieczyć – zamykając drzwi, pozostawić wszystko bezpieczne w środku. Na parterze znajduje się główna część mieszkalna, w tym apartament właścicieli i strefa dzienna, natomiast pokoje gościnne ulokowano na piętrze, co zapewnia niezależność i przyszłościową dostępność.

Fot. Leonardo Finotti | Arch. Architectare

Architektura inspirowana jest prowansalskimi domami z kamienia, jednak wnętrze zyskuje nowoczesny rys dzięki dynamicznej antresoli, która równoważy wysokość sufitu i prowadzi na szklany balkon, wpuszczający do wnętrza naturalne światło. Casa de Pedra to przykład, jak można połączyć tradycyjne materiały z nowoczesną funkcjonalnością – tworząc współczesny dom na zboczu, pełen światła, powietrza i intymności. To prawdziwa nowoczesna stodoła z duszą.