Fot. Chris Sepúlveda | Arch. M3 Arquitectos
  • Architekt

    M3 Arquitectos
  • Fotograf

    Chris Sepúlveda
  • Lokalizacja

    Villarrica, Chile

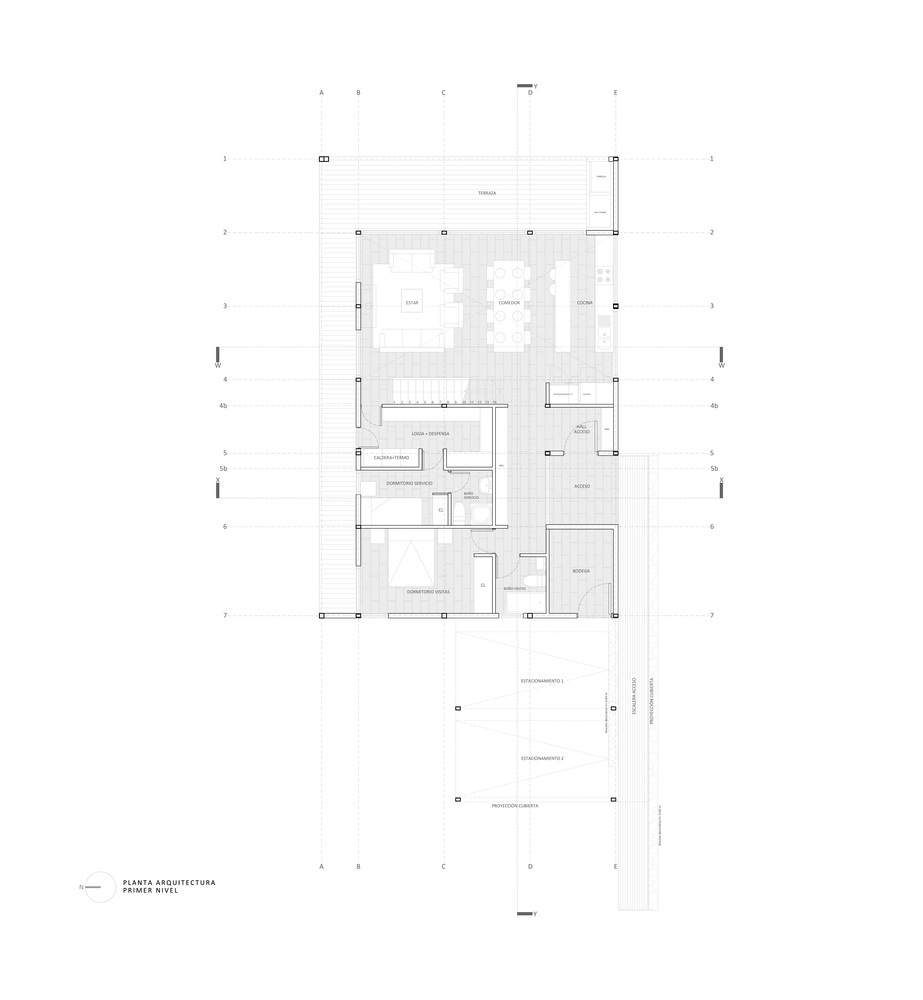
Minimalistycznaharmonia z naturą

Casa La Puntilla to dom położony w Villarrica w regionie Araucanía w południowym Chile. Zaprojektowano go jako zwartą bryłę na dwóch poziomach, aby zmniejszyć powierzchnię gruntu i zachować w jak największym stopniu rodzimą roślinność tego miejsca. Dom odpowiada typowej typologii szop, która charakteryzuje południowe Chile. Przestrzenie pośrednie powstają w wyniku ustawienia płyt montażowych na różnych ścianach. Jest to przydatne w przypadku wiatru, zimowych deszczów i silnego letniego słońca. Do bryły dołączono jeden dodatkowy element: wydłużony dach, który sięga prostopadle do szopy i służy jako galeria, parking lub, w zależności od potrzeb, zadaszone patio.

Fot. Chris Sepúlveda | Arch. M3 Arquitectos

Konstrukcyjnie składa się z 6 stalowych ram, co moduluje wewnętrzne wykorzystanie przestrzeni. Zewnętrznie pokryty jest od strony południowej elewacją ciągłą, nieprzezroczystą, neutralną i łatwą w utrzymaniu metalową osłoną, która miesza się z cieniem drzew. Elewację północną i zachodnią pokryto płytkami modrzewiowymi, które z biegiem czasu będą się zmieniać. Wewnątrz białe drewno ołowiane podkreśla usłojenie i intensyfikuje efekt naturalnego oświetlenia.