Fot. Ricardo Oliveira Alves | Arch. Enter Arquitectura

Dom w wiejskim krajobraziez duszą natury

Casa na Ferraria to projekt, który udanie łączy architekturę wiejską z nowoczesnością. Zlokalizowany wśród pól uprawnych i lasów, budynek był pierwotnie magazynem rolniczym. Dzięki subtelnej transformacji stał się nowoczesną stodołą – domem rodzinnym wpisanym w naturalny krajobraz.

Fot. Ricardo Oliveira Alves | Arch. Enter Arquitectura

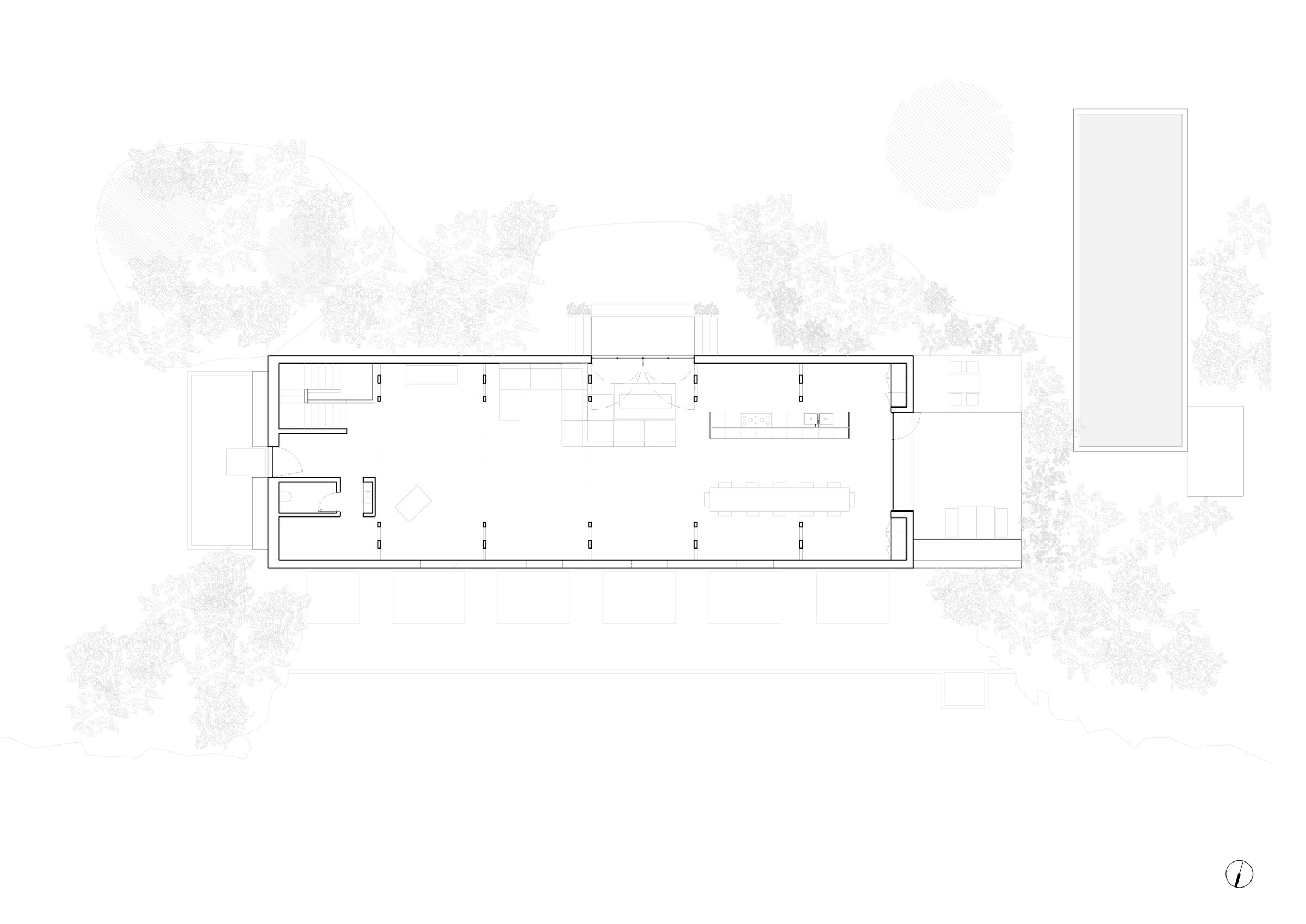
Architekci zachowali tradycyjny kształt stodoły, dostosowując wnętrze do współczesnych potrzeb. Podniesienie terenu umożliwiło lepsze połączenie piętra z otoczeniem, zapewniając większą prywatność w strefie sypialnianej oraz otwarcie części dziennej na taras i widok na pola.

Fot. Ricardo Oliveira Alves | Arch. Enter Arquitectura

Dominujące drewno i widoczna klasyczna więźba dachowa podkreślają rustykalny charakter wnętrz, jednocześnie oferując nowoczesny komfort. Projekt wykorzystuje ekologiczne rozwiązania, takie jak izolacja z korka i panele fotowoltaiczne, dyskretnie wkomponowane w krajobraz.

Fot. Ricardo Oliveira Alves | Arch. Enter Arquitectura

Casa na Ferraria to przykład, jak można z szacunkiem przekształcić dawny budynek gospodarczy w funkcjonalny, energooszczędny dom, który harmonizuje z otoczeniem i lokalnym dziedzictwem.