Arch. Felipe Valdivia
  • Architekt

    Felipe Valdivia
  • Lokalizacja

    La Ensenada, Chile

Minimalizmw praktyce

Typologia „Tiny House” od kilku lat cieszy się coraz większą popularnością na całym świecie. Zjawisko to, utożsamiane z ideą minimalizmu, przyciąga miłośników prostego życia, którzy świadomie decydują się na mniejszą przestrzeń, ograniczenie liczby przedmiotów i bliski kontakt z naturą. W odpowiedzi na ten trend, grupa badawczo-projektowa postanowiła przeprowadzić eksperyment – zamieszkać na jakiś czas w niewielkim domu o nazwie Casa Pequeña, by w praktyce przetestować życie w mikroskali. Co istotne, ta koncepcja wpisuje się w szersze ramy projektowania przyjaznego środowisku, gdzie jednym z punktów odniesienia może być również nowoczesna stodoła – dom jednocześnie funkcjonalny, prosty i estetycznie osadzony w lokalnym krajobrazie. 

Arch. Felipe Valdivia

Casa Pequeña – test życia w mikroskali

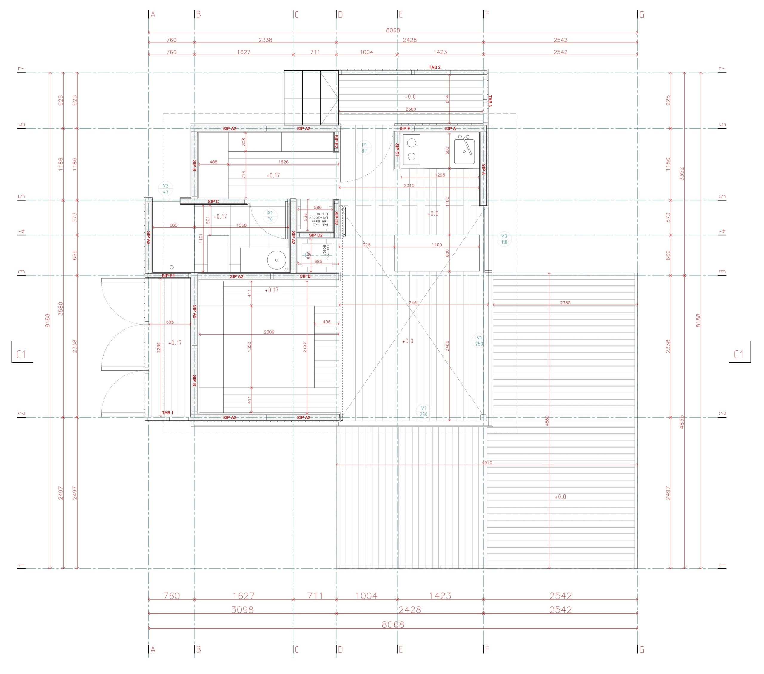
Zamieszkanie w Casa Pequeña rozpoczęło się na początku stycznia, w samym sercu regionu Los Lagos. Letni sezon w tej części świata to czas intensywnych zjawisk pogodowych, nieprzewidywalnych zmian temperatury i wzmożonego ruchu turystycznego. Dom o powierzchni zaledwie 4,8 x 4,8 metra był nie tylko wyzwaniem, ale i szansą na nową jakość życia. Pomimo niewielkich gabarytów, w środku znalazło się miejsce na podstawowe meble, niezbędne sprzęty i przestrzeń wspólną.

W szczytowym momencie w Casa Pequeña gościło aż dwanaście osób. Strych pełnił funkcję prywatnej sypialni oraz idealnego miejsca na drzemki, podczas gdy centralna część domu łączyła kuchnię, salon i główną sypialnię w jednej ciągłej przestrzeni. W ciepłe dni, gdy przesuwne drzwi otwierały się całkowicie, zewnętrzny taras podwajał powierzchnię użytkową, pozwalając w pełni cieszyć się otoczeniem natury.

Codzienne życie w duchu kompromisu

Życie na tak ograniczonej przestrzeni to coś więcej niż modny trend – to świadomy wybór i niewidzialna umowa między mieszkańcami. Wymaga wzajemnego szacunku, organizacji i codziennej dyscypliny. Każdy ruch – od odstawienia naczyń po schowanie schodów na strych – ma znaczenie. Wieczorami, ostatnia osoba na nogach musi pamiętać o ciszy i zachowaniu harmonii.

Z czasem, kiedy dni stają się krótsze, a dom opuszczają ostatni goście, życie w Casa Pequeña zaczyna nabierać rytmu. Porządek staje się stabilny, a przestrzeń – choć niewielka – przestaje być ograniczeniem. Dom zaczyna symbolizować coś więcej niż tylko fizyczne miejsce – staje się metaforą rezygnacji z nadmiaru, a jednocześnie świadomego wyboru jakości i uważności. 

 
Arch. Felipe Valdivia

Nowoczesna stodoła w skali mikro

Casa Pequeña, mimo że niewielka, wpisuje się w filozofię, którą reprezentuje nowoczesna stodoła – prostota formy, naturalne materiały, funkcjonalność i szacunek dla otoczenia. To przykład, że nawet w mikroskali można stworzyć przestrzeń przyjazną, komfortową i w pełni odpowiadającą na współczesne potrzeby mieszkańców.