Fot. Cristóbal Valdés | Arch. EstudioValdés + Cruz

Dom idealny dla rodzinyz widokiem na ocean

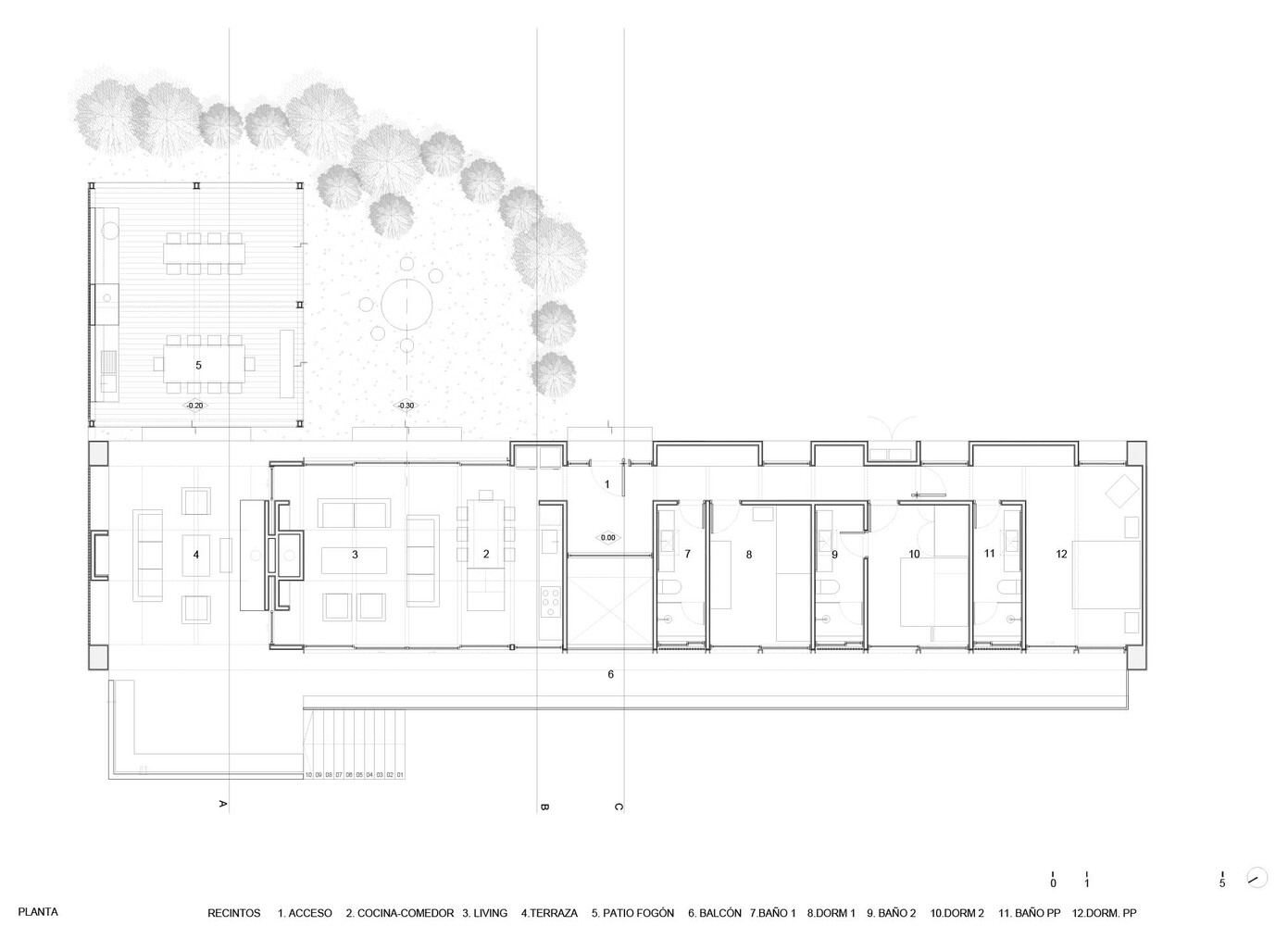
Casa Puertecillo, położona w chilijskim Puertecillo, to przykład inteligentnej architektury wakacyjnej, łączącej minimalizm, funkcjonalność i bliskość natury. Ten rodzinny dom letniskowy został zaprojektowany z myślą o pięcioosobowej rodzinie oraz ich gościach. Głównym wyzwaniem było zapewnienie komfortu wszystkim użytkownikom przy ograniczonej powierzchni prywatnej, jednocześnie maksymalizując przestrzeń wspólną. Efektem jest nowoczesna, wydłużona bryła w stylu nowoczesnej stodoły, zorientowana na widok na Ocean Spokojny.

Fot. Cristóbal Valdés | Arch. EstudioValdés + Cruz

Dom ma formę wydłużonego trójkątnego graniastosłupa, podzielonego na trzy części: środkowy moduł wejściowy, przeszkloną strefę wspólną oraz zamkniętą strefę prywatną. Część wspólna – salon, jadalnia i kuchnia – została otwarta na otoczenie za pomocą przeszkleń po obu stronach, co zapewnia spektakularne widoki na morze i integrację z tarasami oraz ogrodem. Strefa sypialna, ulokowana w części nieprzezroczystej, została zaprojektowana z myślą o prywatności i izolacji akustycznej. Trzypoziomowe łóżka piętrowe w pokojach dziecięcych pozwalają na maksymalne wykorzystanie przestrzeni, natomiast sypialnia główna znajduje się w najbardziej oddalonym, najcichszym punkcie domu.

Fot. Cristóbal Valdés | Arch. EstudioValdés + Cruz

Cała konstrukcja osadzona jest na palach, aby unieść ją ponad koronami drzew i zapewnić niezakłócony widok na ocean. Naturalne materiały odgrywają kluczową rolę – elewacja z ciemnych desek sosnowych wtapia dom w otoczenie, podczas gdy jasne drewno lenga rozjaśnia wnętrze. Eukaliptusowe kratownice pełnią funkcje estetyczne i praktyczne: osłaniają tarasy, łazienki i dachowy świetlik, a także chronią przed wiatrem. Tarasy stanowią serce życia w Casa Puertecillo. Główny taras – zadaszony, z kominkiem i przeszkloną ścianą – to przedłużenie wnętrza, które można użytkować przez cały rok. Taras frontowy oferuje najlepszy widok na morze, natomiast tylny ogród z grillem i piecem to miejsce spotkań chronione od wiatru.

Fot. Cristóbal Valdés | Arch. EstudioValdés + Cruz

Architektoniczna przejrzystość i ciągłość wizualna sprawiają, że granica między wnętrzem a otoczeniem praktycznie zanika. Dzięki temu kuchnia, jadalnia i salon dają wrażenie przebywania na zewnątrz, mimo że znajdują się w pełni funkcjonalnej i osłoniętej przestrzeni.