Fot. Andy Haslam | Arch. Snook Architects

Nowoczesna stodoła w sercu Yorkshirez historią sięgającą XVIII wieku

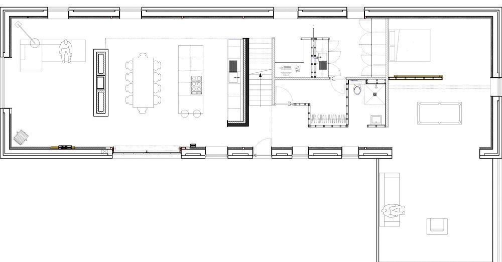
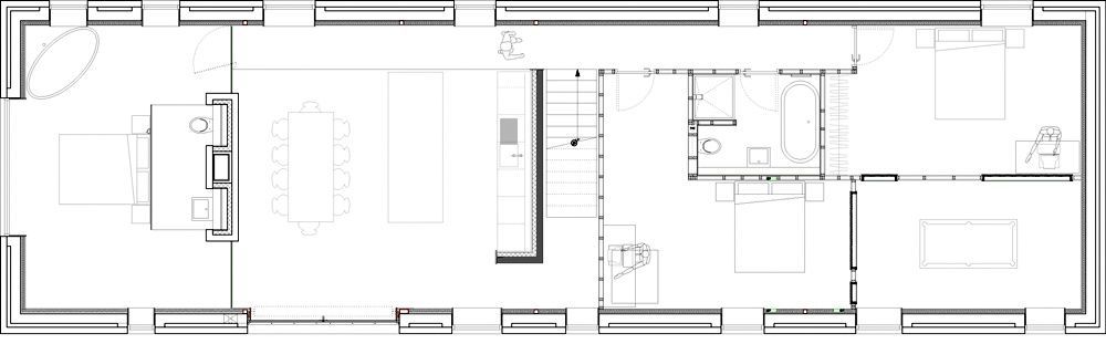
Cat Hill Barn to wyjątkowy przykład, jak przekształcić zrujnowany budynek z XVIII wieku w nowoczesną stodołę. Położona na malowniczych wzgórzach Yorkshire w Wielkiej Brytanii, ta stara stodoła pierwotnie pełniła funkcję magazynu rolniczego. Przez dekady budynek niszczał, aż groził zawaleniem. Na szczęście nowi właściciele, państwo Wills, postanowili tchnąć w niego nowe życie i stworzyć unikalny dom dla swojej rodziny.

Fot. Andy Haslam | Arch. Snook Architects

Po zakupie stodoły, państwo Wills szukali architekta, który podzieli ich wizję otwartej przestrzeni, przypominającej ducha starej stodoły. Pierwszy projekt podzielił wnętrze na standardowe kondygnacje, co pozbawiło budynek unikalnego charakteru. Rozczarowani właściciele znaleźli pracownię Snook Architects, która idealnie zrozumiała ich potrzeby. Dzięki tej współpracy udało się stworzyć projekt nowoczesnej stodoły o przestronnych i funkcjonalnych wnętrzach.

Stan techniczny Cat Hill Barn okazał się ogromnym wyzwaniem. Dach i kratownica były w tak złym stanie, że groziły zawaleniem. Architekci zaprojektowali nową, niezależną stalową konstrukcję, która stała się solidnym fundamentem dla nowej drewnianej kratownicy. Kolejną przeszkodą był opór lokalnych władz planistycznych, które odrzucały kolejne wnioski o pozwolenie. Dopiero po 16 miesiącach walki udało się uzyskać zgodę na realizację projektu.

Fot. Andy Haslam | Arch. Snook Architects

Realizację projektu opóźnił kryzys finansowy. Właściciele musieli sprzedać dotychczasowy dom i uzyskać kredyt na przebudowę stodoły. Dzięki ich determinacji w 2011 roku budowa ruszyła ponownie, a już rok później rodzina Wills mogła zamieszkać w swojej nowoczesnej stodole.

Cat Hill Barn to symbol wytrwałości i pasji do architektury łączącej tradycję z nowoczesnością. Odnowiona stodoła zachowała ducha XVIII wieku, jednocześnie oferując przestronne, funkcjonalne i nowoczesne wnętrza. To inspirujący przykład, jak zrujnowany budynek można przekształcić w wyjątkowy dom.