Fot. Maxime Brouillet | Arch. Ravi Handa Architect, AAmp Studio

Dom inspirowanylokalną tradycją

Ell House to współczesny dom wakacyjny zaprojektowany przez pracownie Ravi Handa Architect i AAmp Studio. Położony w Wellington, w regionie Prince Edward County nad jeziorem Ontario, budynek czerpie inspiracje z lokalnych stodół oraz tradycyjnych rozbudów gospodarstw wiejskich. Prosta forma, dach dwuspadowy i układ w kształcie litery „L” sprawiają, że architektura subtelnie wpisuje się w krajobraz, jednocześnie zapewniając nowoczesny komfort użytkowania.

Fot. Maxime Brouillet | Arch. Ravi Handa Architect, AAmp Studio

Bryła i materiały

Elewację domu obłożono deskami z cedru opalanego ręcznie w technice Yakisugi, znanej z tradycji japońskiej. Ten sposób obróbki drewna nadaje mu charakterystyczny, ciemny odcień, a jednocześnie zwiększa jego odporność na ogień, wodę oraz szkodniki. Dzięki monochromatycznej czerni fasada wyraźnie kontrastuje z naturalnym otoczeniem, tworząc mocny, graficzny akcent w krajobrazie.

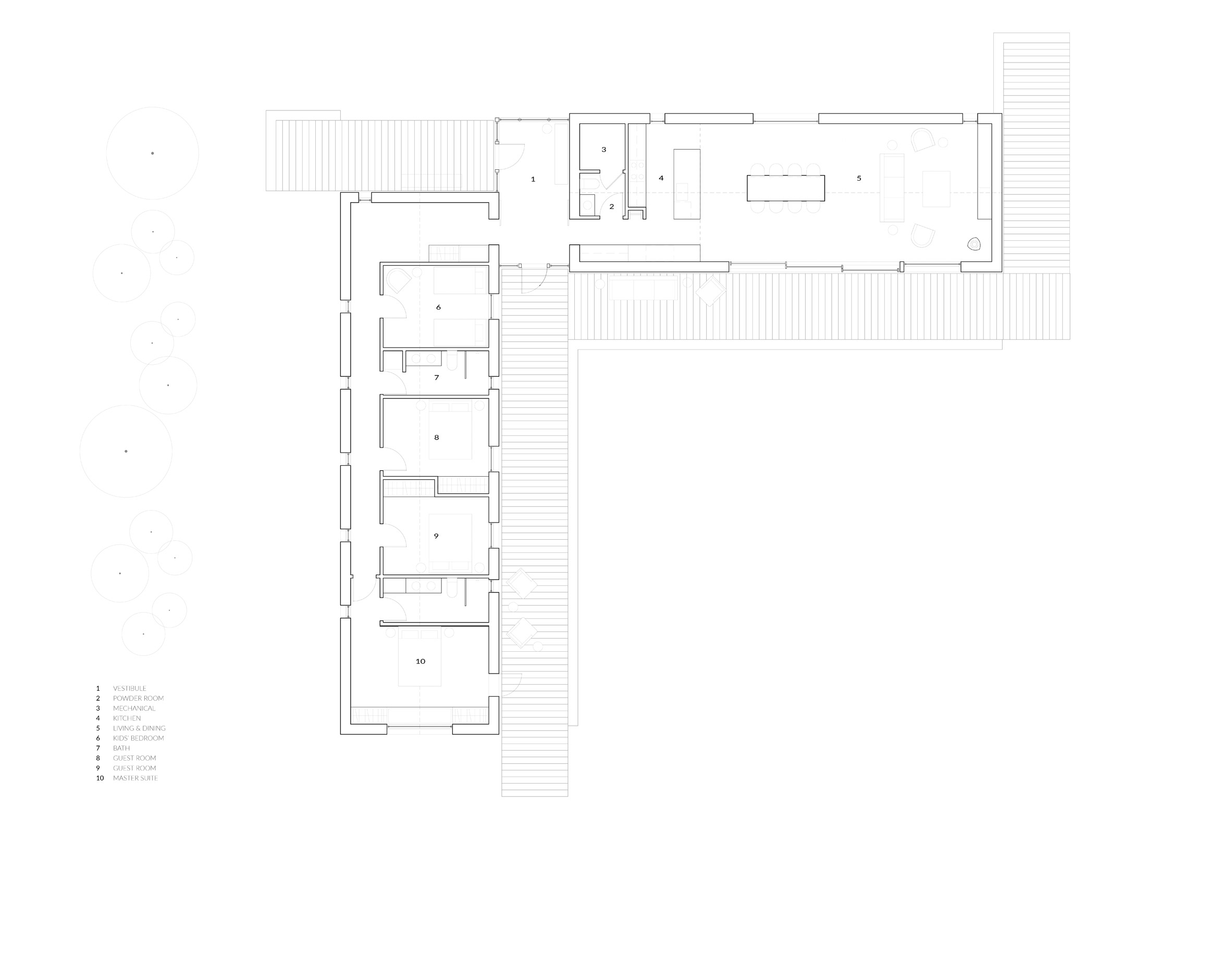
Układ w kształcie litery L

Dom składa się z dwóch skrzydeł połączonych przeszklonym, jasnym łącznikiem. Rozwiązanie to przypomina tradycyjne dobudówki charakterystyczne dla wiejskich domostw Kanady, a jednocześnie odpowiada na lokalne warunki klimatyczne. Jedno skrzydło osłania drugie przed południowo-zachodnimi wiatrami, tworząc spokojną przestrzeń mieszkalną oraz kameralny dziedziniec z tarasem otwierającym się na jezioro.

Fot. Maxime Brouillet | Arch. Ravi Handa Architect, AAmp Studio

Przestrzeń prywatna i wspólna

W jednym skrzydle zaplanowano strefę prywatną – dwie sypialnie z łazienkami. Drugie skrzydło przeznaczono na część wspólną: otwartą kuchnię połączoną z jadalnią i salonem. Przestrzenie te płynnie łączą się z tarasami i ogrodem dzięki dużym przeszkleniom i drzwiom przesuwnym, które zapewniają naturalną wentylację i piękne widoki na jezioro.

Kontrast wnętrza i elewacji

W przeciwieństwie do ciemnej, drewnianej fasady, wnętrza Ell House utrzymano w jasnej, naturalnej kolorystyce. Pojawiają się tu białe meble w zabudowie, sufity z bielonej sosny oraz detale z jasnego dębu, co nadaje przestrzeniom lekkości i ciepła. Dzięki dużym przeszkleniom wnętrza wypełnia światło dzienne, a każdy pokój ma bezpośrednie połączenie z krajobrazem.

Fot. Maxime Brouillet | Arch. Ravi Handa Architect, AAmp Studio

Nowoczesny dom w wiejskim pejzażu

Ell House to przykład architektury, która umiejętnie łączy tradycję i nowoczesność. Czerpiąc z lokalnych wzorców i stosując naturalne materiały, Ravi Handa Architect i AAmp Studio stworzyli dom, który nie tylko odpowiada na warunki klimatyczne i topograficzne, ale także zapewnia mieszkańcom wyjątkową bliskość natury i poczucie azylu nad jeziorem Ontario.