Fot. Yoon Junhwan | Arch. Soltozibin Architects

Architektoniczne wyzwaniew Gwangju

Klient jest byłym wykładowcem medycyny sądowej w dziedzinie stomatologii na pobliskim uniwersytecie w metropolii Gwangju. Przed przejściem na emeryturę klient chciał zbudować dom w pobliżu uniwersytetu.

Fot. Yoon Junhwan | Arch. Soltozibin Architects

Budowa domu w Gwangju po przejściu na emeryturę, daleko od Seulu, gdzie mieszka rodzina klienta, jest nietypowym wyborem. „Natura i książka” to kluczowe cele nowego domu klienta. Miejsce znajduje się u podnóża góry Mudeungsan i od dawna jest w umyśle klienta. Posiadanie 23 tysięcy książek było kolejnym powodem, dla którego klient chciał mieć nową rezydencję.

Fot. Yoon Junhwan | Arch. Soltozibin Architects

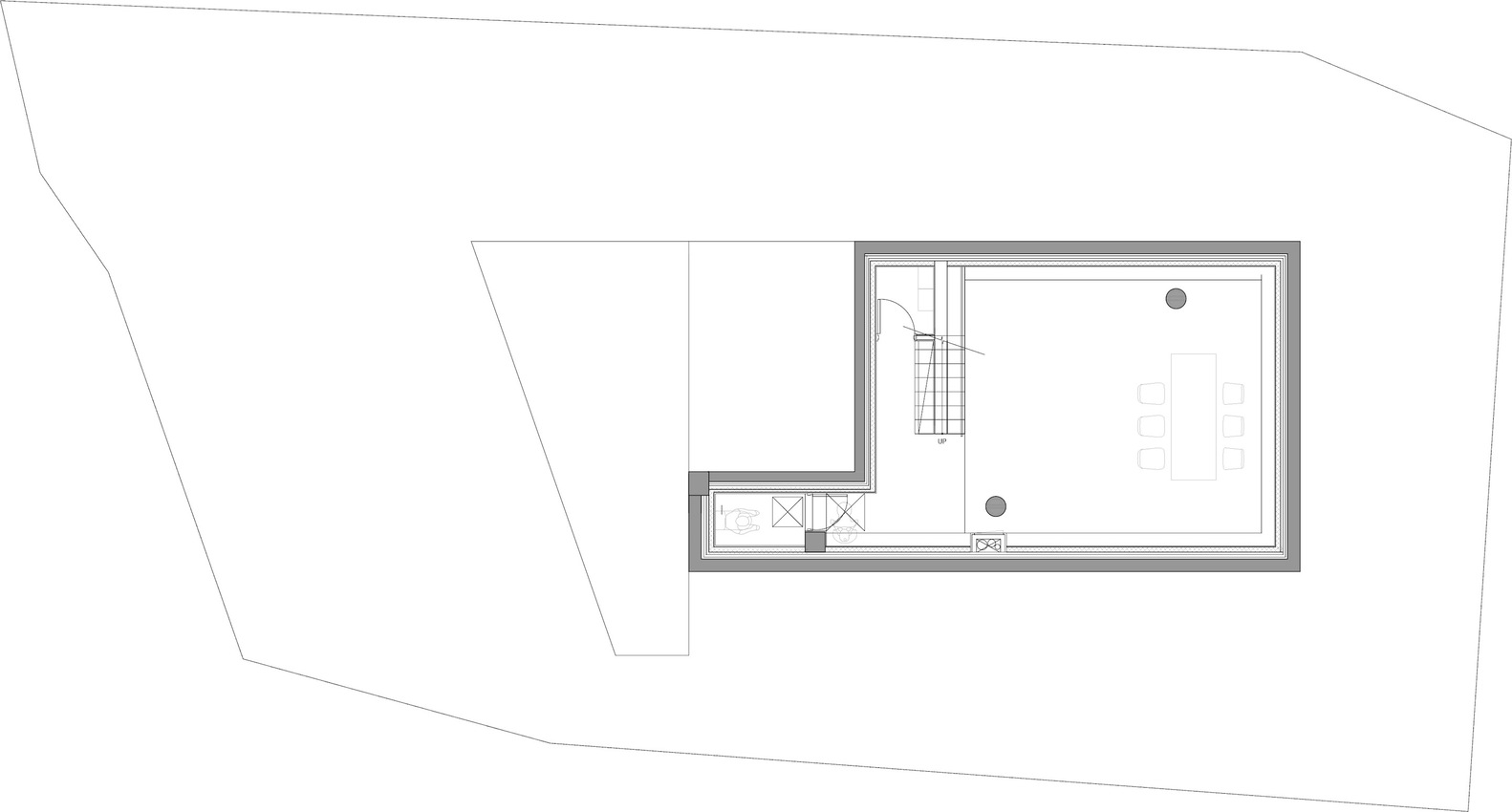
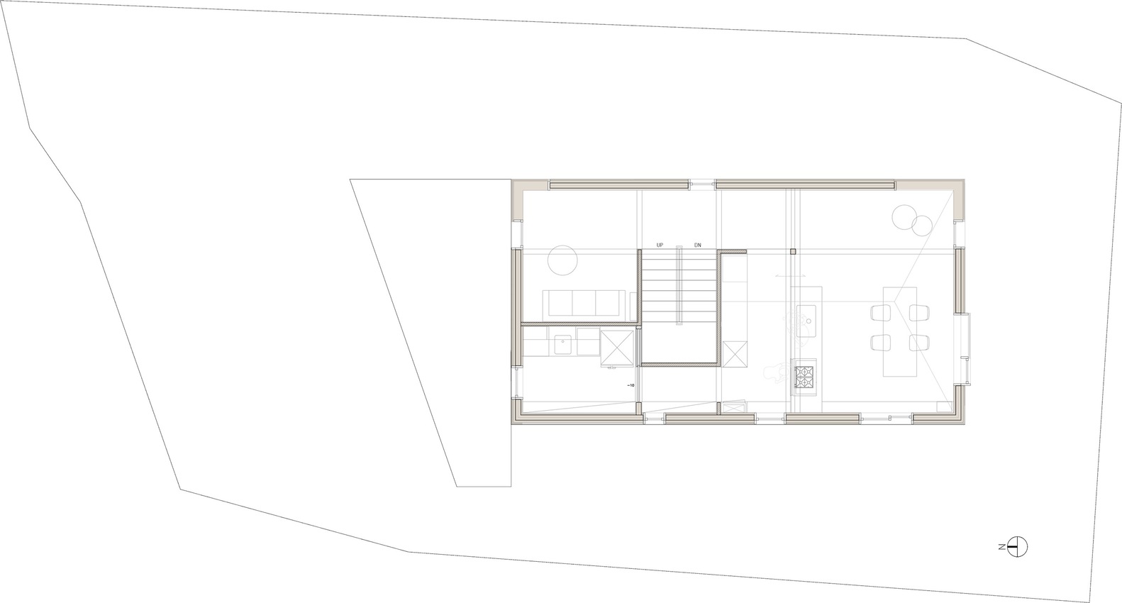
Działka znajduje się tuż przed lasem. Ziemia jest równa, ale otoczona wysokimi drzewami i zboczami, co tworzy onieśmielającą atmosferę. Przebywanie w okolicznościach, w których wskaźnik pokrycia budynku jest mniejszy niż 20%, sprawia, że ​​budynek wydaje się prostym obiektem. Jednak ogród otoczony lasem zapewnia poczucie przestrzeni. Niski wskaźnik pokrycia budynku zwiększył objętość domu do trzech pięter.

Fot. Yoon Junhwan | Arch. Soltozibin Architects

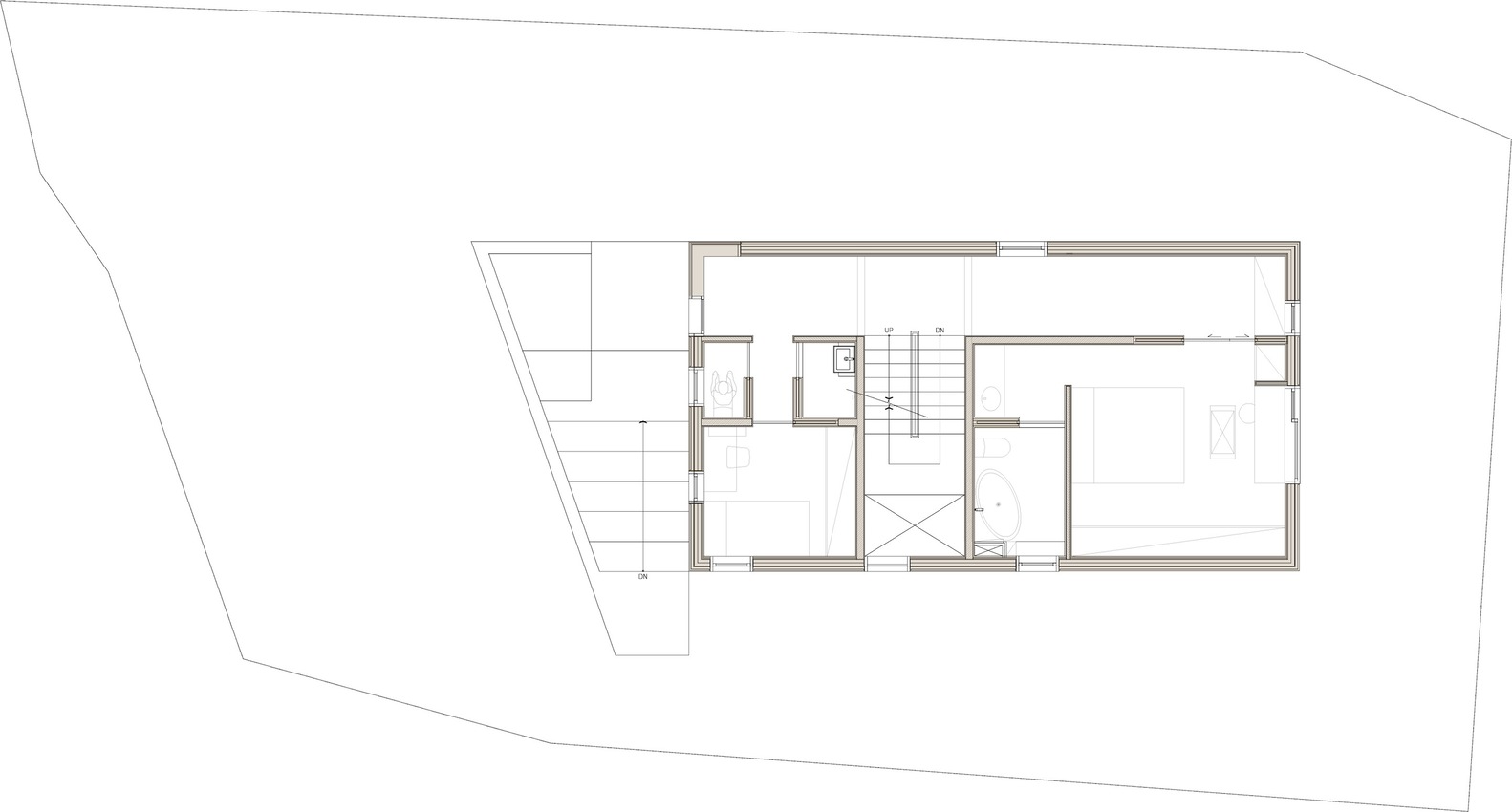
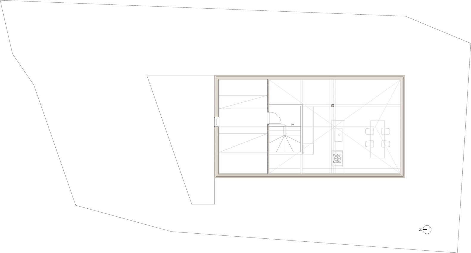
Wchodząc przez drzwi wejściowe, które znajdują się pół piętra pod ziemią, po prawej stronie znajduje się pokój gościnny z małym poddaszem. Kolejne pół piętra niżej znajduje się biblioteka o wysokości 1,5 piętra. Naprzeciwko podniesionej płyty zainstalowano wysokie okno zapewniające światło dzienne. Sypialnia znajduje się na pierwszym piętrze, środkowe piętro, a jadalnia i salon na drugim piętrze, gdzie sufit jest wyższy.