Fot. Onnis Luque | Arch. PRODUCTORA
  • Architekt

    PRODUCTORA
  • Fotograf

    Onnis Luque
  • Lokalizacja

    Denver, Stany Zjednoczone

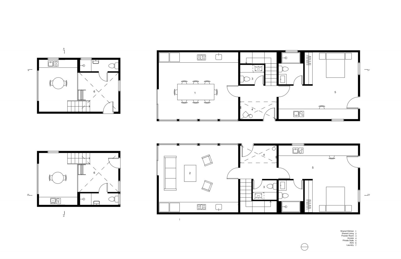
Nowoczesna stodoła jako taniei funkcjonalne mieszkanie

Ten eksperymentalny projekt mieszkaniowy powstał zaledwie dwie mile od centrum Denver, na działce o niskiej gęstości zabudowy, integrując się z podmiejską morfologią urbanistyczną. Celem było stworzenie tanich mieszkań dla singli i par, przy jednoczesnym zachowaniu spójności z lokalnym krajobrazem.

Fot. Onnis Luque | Arch. PRODUCTORA

Na podzielonej równo działce o szerokości 50 m zrealizowano zgodny z przepisami układ: główne domy i dodatkowe jednostki mieszkalne (ADU). Frontowe budynki mieszczą po trzy niezależne kawalerki, każda z własną łazienką i aneksem kuchennym, a także dużą wspólną strefą dzienną. W sumie powstało osiem jednostek mieszkalnych: sześć mikromieszkań i dwie dwupoziomowe pracownie typu studio w formie nowoczesnej stodoły dla artystów.

Fot. Onnis Luque | Arch. PRODUCTORA

Mimo bardzo niskiego budżetu (ok. 815 PLN/m²), użyto ekonomicznych materiałów budowlanych, takich jak blacha na rąbek stojący i elewacja z pionowych desek i listew. Kolorystyka w odcieniach niebieskiego nadaje domom rozpoznawalną, prostą sylwetkę, inspirowaną archetypem domu-stodoły. Wnętrza są przemyślane i przestronne. Podwójna wysokość w strefach wejściowych, duże przeszklenia w kuchniach i salonach oraz wysokie sufity z antresolami sypialnianymi w górnych mieszkaniach tworzą poczucie luksusu przy niskim koszcie. Dwupoziomowe jednostki z rolowanymi drzwiami garażowymi pełnią funkcję warsztatów i przestrzeni twórczej, idealnych dla artystów i freelancerów.

Fot. Onnis Luque | Arch. PRODUCTORA

Projekt ten to modelowy przykład nowoczesnej stodoły w skali mikro, która łączy dostępność mieszkaniową, funkcjonalność, prostotę formy i świadome projektowanie w przestrzeni miejskiej.