Fot. Adam Rouse | Arch. Michael Hennessey Architecture

Czarna elewacjai jasne wnętrza

Amerykańskie studio Michael Hennessey Architecture zrewitalizowało starzejący się dom podmiejski w pobliżu San Francisco, dodając czarną elewację i jasne wykończenia, aby stworzyć dom rodzinny, który łączy przeszłość, teraźniejszość i przyszłość.

Fot. Adam Rouse | Arch. Michael Hennessey Architecture

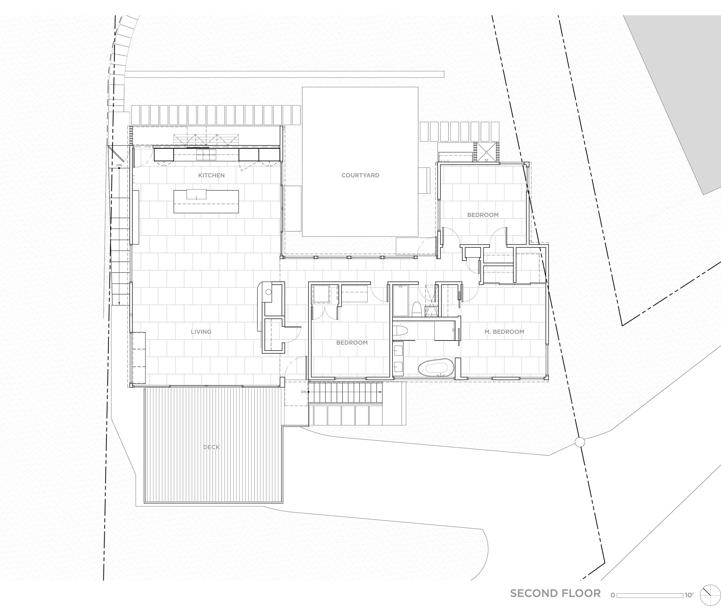
Zaprojektowany dla pary z dwójką małych dzieci, projekt oszczędny obejmował renowację domu w stylu podmiejskim, który „pilnie potrzebował modernizacji”. Celem było stworzenie mieszkania, które wspierałoby bieżące potrzeby rodziny, jednocześnie biorąc pod uwagę to, co może być potrzebne w przyszłości. Zbudowany na zboczu wzgórza dom ma plan w kształcie litery U, z dwuspadowymi bryłami zorganizowanymi wokół centralnego dziedzińca.

Fot. Adam Rouse | Arch. Michael Hennessey Architecture

Zespół zdecydował się zachować pewne elementy, dodając jednocześnie współczesne interwencje. Beżowa elewacja budynku została zastąpiona czarną, pionową okładziną z cedru, która dodaje powagi, jak twierdzi studio. Dach pokryty jest blachą z rąbkiem stojącym.

Fot. Adam Rouse | Arch. Michael Hennessey Architecture

Wnętrze domu o powierzchni 174 metrów kwadratowych charakteryzuje się wyraźnym podziałem na strefy publiczną i prywatną. Na poziomie głównym jedna strona mieści kuchnię z otwartą przestrzenią, jadalnię i salon, podczas gdy druga obejmuje trzy sypialnie. Na poziomie parteru znajduje się pokój rodzinny i garaż. Wykończenia wnętrz obejmują szafki z jesionu, wielkoformatowe płytki podłogowe z porcelany i płytki ceramiczne wokół kominka. Wysokie sufity i duże przeszklenia zapewniają wrażenie przestronności.

Fot. Adam Rouse | Arch. Michael Hennessey Architecture

Przestrzenie zewnętrzne obejmują przestronny taras skierowany na południe, który otrzymuje jasne światło słoneczne. Łagodniejsze światło wpada przez dziedziniec na północy.