Fot. David Barbour | Arch. fardaa

Restauracja w zrujnowanejbazaltowej stodole

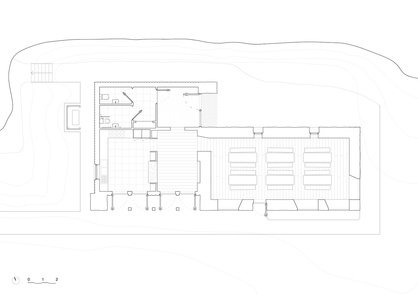
Croft 3 to przekształcona bazaltowa stodoła na wyspie Mull, która została zamieniona w nowoczesną restaurację przez londyńską pracownię fardaa. Projekt łączy odpowiedzialną architekturę, szacunek dla lokalnej tradycji i zrównoważony design. Przekształcenie zrujnowanego budynku stanowi przykład połączenia nowoczesnych rozwiązań z tradycyjnym szkockim stylem.

Fot. David Barbour | Arch. fardaa

Croft 3 znajduje się w nadmorskim regionie wyspy Mull, słynącym z rolnictwa na małą skalę – Crofting. Restauracja zaopatruje się w lokalne produkty, w tym haggis i ryby, a także mięso z wyspy. Jeanette Cutlack, właścicielka, rozwinęła tu swoją działalność gastronomiczną, po zakupie zrujnowanego Croftu w 2019 roku.

Fot. David Barbour | Arch. fardaa

Projekt wkomponowuje zrujnowaną stodołę jako jadalnię, a nową drewnianą przestrzeń jako kuchnię i foyer. Przesunięte bryły nawiązują do sąsiednich wzgórz Ulva. Kamień i drewno stanowią kontrastujące elementy, które nawiązują do lokalnej tradycji, tworząc charakterystyczny profil budynku.

Fot. David Barbour | Arch. fardaa

Wnętrza charakteryzują się surowymi materiałami: białym jesionem na podłodze oraz łososiowymi odcieniami tynku na ścianach. Drewniany sufit z odsłoniętymi krokwiami i sklejką dodaje przestrzeni ciepła. Restauracja została wyposażona w odnowione francuskie krzesła kawiarniane oraz długie stoły z drewna daglezji. Projekt fardaa łączy nowoczesność z tradycją, oferując spektakularne widoki i wyjątkową atmosferę szkockiej wyspy.