Arch. Architectural Designs
  • Architekt

    Architectural Designs

Czarna elewacjai komfortowy układ pomieszczeń

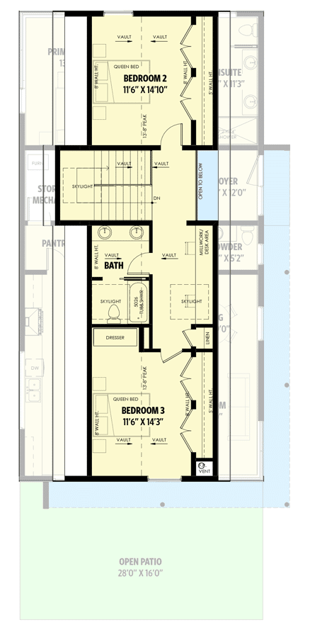
Ten projekt domu autorstwa Architectural Designs to nowoczesna interpretacja klasycznej zabudowy wiejskiej. Bryła nawiązuje do estetyki, jaką prezentuje nowoczesna stodoła – prosta forma, czarna elewacja z gontu, duże przeszklenia oraz wyraźne połączenie wnętrza z otoczeniem. Przestronne otwarte patio z miejscem do wypoczynku na świeżym powietrzu stanowi naturalne przedłużenie strefy dziennej. Wnętrze zaplanowano z myślą o wygodzie użytkowania – główna sypialnia znajduje się tuż przy wejściu, a naprzeciwko niej umieszczono pralnię, toaletę oraz klatkę schodową prowadzącą na piętro.

Arch. Architectural Designs

Na górze zaprojektowano dwie sypialnie, które współdzielą funkcjonalną łazienkę z podwójną toaletką, a dodatkowa przestrzeń typu loft z wbudowanym biurkiem i świetlikiem dachowym stanowi idealne miejsce do pracy zdalnej lub nauki. Ten dom to doskonałe połączenie nowoczesnego designu z funkcjonalnością – dzięki dużym oknom, naturalnemu doświetleniu i przemyślanemu układowi pomieszczeń sprawdzi się zarówno dla rodzin z dziećmi, jak i osób szukających minimalistycznej, ale przytulnej przestrzeni.