Fot. Stijnstijl Fotografie | Arch. Zecc Architecten

Stal kortenowska i zrównoważonaprzebudowa garażu

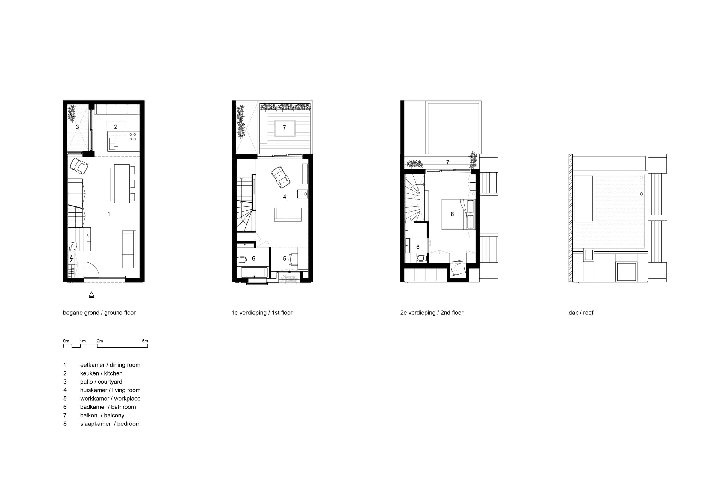
Steel Craft House to projekt studia Zecc Architecten, który przekształcił dawny garaż w zabudowie szeregowej w Utrechcie w wyjątkowy dom artysty. Budynek wyróżnia elewacja ze stali kortenowskiej, harmonizująca z ceglaną zabudową i nadająca mu charakter nowoczesnej stodoły.

Fot. Stijnstijl Fotografie | Arch. Zecc Architecten

Architekci zachowali parterową bryłę i ceglane ściany, dodając drewnianą konstrukcję szkieletową o dwóch nowych kondygnacjach. Stal kortenowska, odporna na warunki atmosferyczne, nie wymaga konserwacji, a jej rdzawy odcień podkreśla industrialny charakter projektu.

Fot. Stijnstijl Fotografie | Arch. Zecc Architecten

Wnętrza zaprojektowano tak, by wpuszczać jak najwięcej naturalnego światła – dzięki dużym przeszkleniom, loggiom, tarasom i świetlikom. Kluczowym elementem jest dębowa zabudowa meblowa, łącząca funkcję schodów, regałów i miejsc do siedzenia.

Fot. Stijnstijl Fotografie | Arch. Zecc Architecten

Steel Craft House pokazuje, że adaptacja istniejących budynków i kreatywne użycie materiałów mogą stworzyć projekt funkcjonalny, estetyczny i ekologiczny.