Fot. Sandra Pereznieto | Arch. Cadaval & Solà-Morales

Miejsce zhistorią

Architekci zamienili dawny magazyn papieru toaletowego w Barcelonie w nowoczesną przestrzeń, w której można wygodnie łączyć mieszkanie z pracą.

Fot. Sandra Pereznieto | Arch. Cadaval & Solà-Morales

Budynek znajduje się w tętniącej życiem dzielnicy El Poblenou i powstał pod koniec XIX wieku. Początkowo działał tu teatr. Później w miejscu tym zaczął funkcjonować magazyn papieru toaletowego. Architekci z firmy Cadaval & Solà-Morales wykorzystali w swoim projekcie wielkość i skalę budynku. W ten sposób chcieli przywrócić i optymalnie wykorzystać cechy przestrzenne pierwotnej, teatralnej konstrukcji.

Fot. Sandra Pereznieto | Arch. Cadaval & Solà-Morales

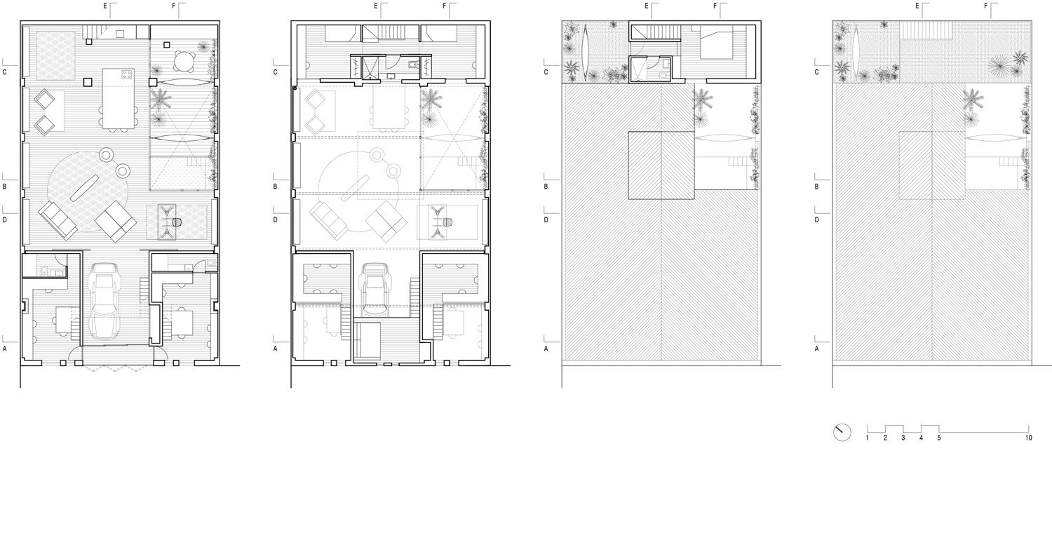
Wejście do domu podkreśla klasyczny samochód, wykorzystany tu jako dzieło sztuki. Dom ma powierzchnię 330 metrów kwadratowych i mieści ogromną przestrzeń centralną zaprojektowaną w stylu loftowym. Na wspólnej przestrzeni znajdują się salon, jadalnia, kuchnia i gabinet. Całość – pomimo sporych rozmiarów – jest przytulna, dzięki wprowadzeniu tu różnych funkcji, przedmiotów, tekstur i materiałów, takich jak drewno, metal, cegła i kamień. Architekci usunęli część dachu magazynu. Dzięki temu stworzyli patio, które służy jako przedłużenie zewnętrzne dla głównej części dziennej domu. To miejsce idealne na organizacje obiadów i kolacji w otoczeniu posadzonej tu roślinności. Basen daje możliwość przyjemnej ochłody po ciężkim dniu pracy lub ćwiczeniach. Dzięki stworzeniu tej przestrzeni, reszta domu jest naturalnie doświetlona i wentylowana.

Nad wejściem do domu znajdują się dwa gabinety, które doświetlają dwa duże okna od strony ulicy. Oba studia zajmują miejsce na poziomie antresoli, nad kuchnią i łazienką. Miejsca do spania urządzono po drugiej stronie budynku, przy czym na parterze znajdują się dwie sypialnie, a kolejna – z przylegającym do niej tarasem – jest na wyższym piętrze.

Fot. Sandra Pereznieto | Arch. Cadaval & Solà-Morales

„Renowacja stara się uszanować pierwotny warunek istniejącego tu magazynu” – wyjaśniają architekci. „Jego konstrukcji nie zmodyfikowano, a jedynie wzmocniono. Ściany nie zburzono, ale tylko odnowiono. Kilka nowych elementów architektonicznych, które dodano do projektu, nie wpływa znacząco na pierwotny charakter budynku. Nasz koncept polega na budowaniu bez wpływu na to, co już istnieje. To zrozumienie, że z czasem teatr z pewnością zyska nowe funkcje i nowe życie”.