Fot. Adam Gibson | Arch. Cumulus Studio

Architektura przemysłowa, dziedzictwoi smak Tasmanii

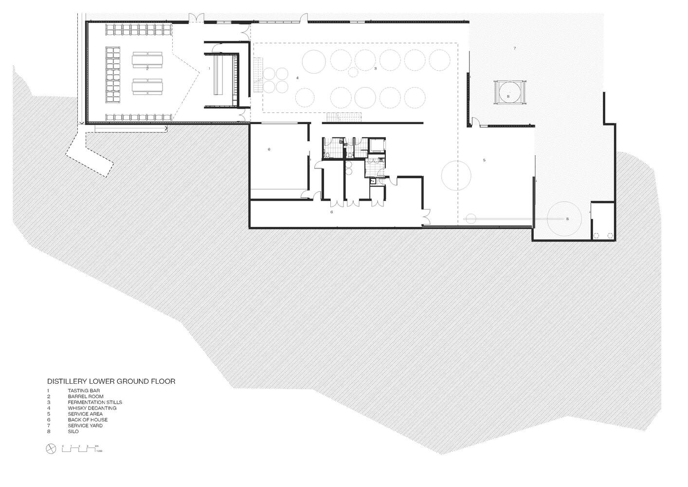
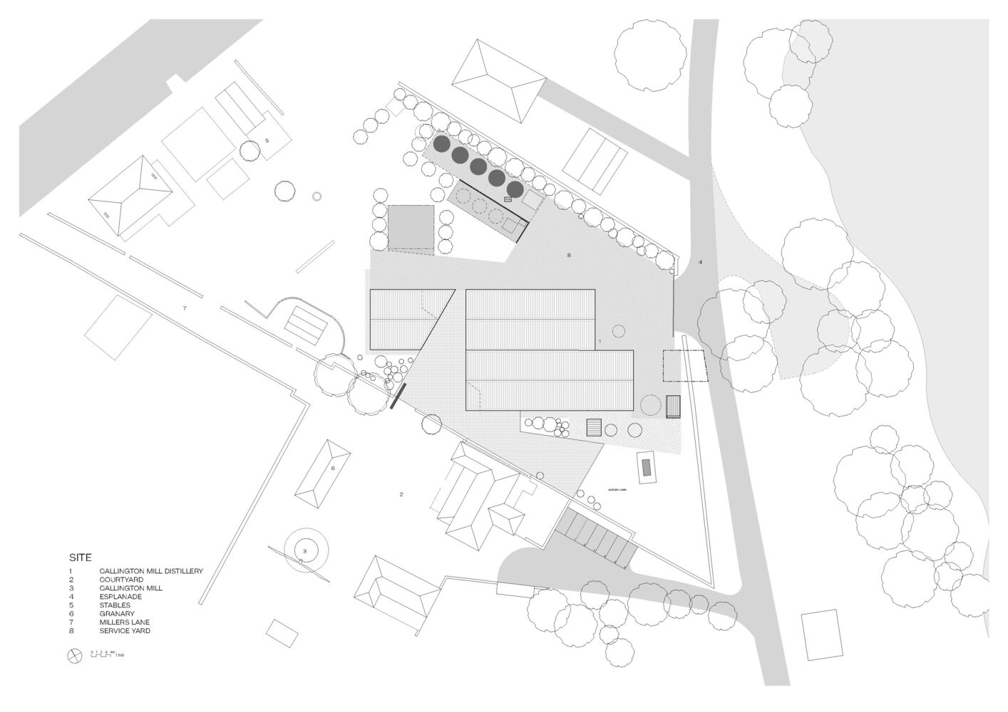
Callington Mill Distillery to wyjątkowe połączenie nowoczesnej stodoły, przemysłowej funkcjonalności i lokalnego dziedzictwa historycznego. Położona w cieniu kultowego wiatraka w Oatlands, jednej z najstarszych osad w Australii, destylarnia równoważy produkcję whisky, turystykę, a także współczesny design i tradycyjne materiały. Z uwagi na lokalne przepisy konserwatorskie, architekci sięgnęli po murowane elewacje z cegły, których miękka, kredowa patyna harmonizuje z pobliskim piaskowcem. Proste formy z dwuspadowymi dachami, przypominające nowoczesne stodoły, wpisują się w kontekst urbanistyczny miasta i jego historyczną zabudowę.

Fot. Adam Gibson | Arch. Cumulus Studio

Wnętrza budynku subtelnie oddają bogaty charakter tasmańskiej whisky – użyto drewna dębowego, mosiężnych okuć, złocistego marmuru i nastrojowego oświetlenia. Tak zaprojektowana przestrzeń tworzy wyjątkowe doświadczenie turystyczne, zanurzające odwiedzających w świat destylacji i historii regionu.

Fot. Adam Gibson | Arch. Cumulus Studio

Destylarnia to nie tylko miejsce produkcji – to nowoczesna przestrzeń architektoniczna, która staje się atrakcją turystyczną i wizytówką rzemiosła w południowej Tasmanii. Projekt perfekcyjnie łączy estetykę nowoczesnej stodoły z wymogami produkcji przemysłowej, oferując zwiedzającym coś więcej niż tylko smak – pełne zanurzenie w dziedzictwie i architekturze.