Arch. Studio Gaon

Prosty domw górach

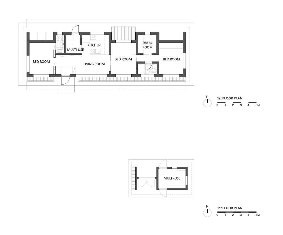
Projekt tego minimalistycznego domu w górach powstał z myślą o prostym, funkcjonalnym życiu blisko natury. Architekci odpowiedzieli na potrzeby klientów, którzy marzyli o przestrzeni do spania, jedzenia i picia herbaty – bez zbędnych dodatków, za to z pełnym uwzględnieniem krajobrazu. Budynek ma formę wydłużonego prostokąta o powierzchni około 100 m². Główna sypialnia i pokój gościnny zostały zaplanowane po przeciwnych stronach domu, podczas gdy centralną część zajmują salon, kuchnia oraz łazienka. Długie, południowe korytarze wprowadzają do wnętrza naturalne światło, a wzmocnione przeszklenia chronią przed silnym, górskim wiatrem.

Arch. Studio Gaon

Dom oferuje różnorodne widoki na otaczające go szczyty, zmieniające się w zależności od pozycji – siedząc w pokoju do picia herbaty przez niskie okno, można podziwiać krajobraz z zupełnie innej perspektywy niż stojąc w kuchni czy salonie. Dzięki przemyślanej orientacji względem kierunków świata i poziomów widoczności, mieszkańcy mogą nieustannie doświadczać bliskości natury. To podejście dobrze oddaje ideę, jaką niesie ze sobą nowoczesna stodoła – skromna forma, funkcjonalność, otwartość na krajobraz i pełna integracja z otoczeniem.

Arch. Studio Gaon

Uzupełnieniem projektu jest podwórze z naturalnym strumykiem oraz domek z narzędziami, ukryty za niską bramą widoczną z głównego budynku. Elementy te tworzą płynne przejście między domem a drogą, zapewniając jednocześnie prywatność i przestrzeń do pracy w terenie. Całość stanowi spójną realizację koncepcji domu dostosowanego do życia w wysokich górach – prosta architektura wpisana w kontekst miejsca, odpowiadająca potrzebom ludzi szukających spokoju, funkcjonalności i bliskości przyrody.