Fot. Felix Michaud | Arch. StudioAC

Minimalistyczna rezydencjaz widokiem na jezioro

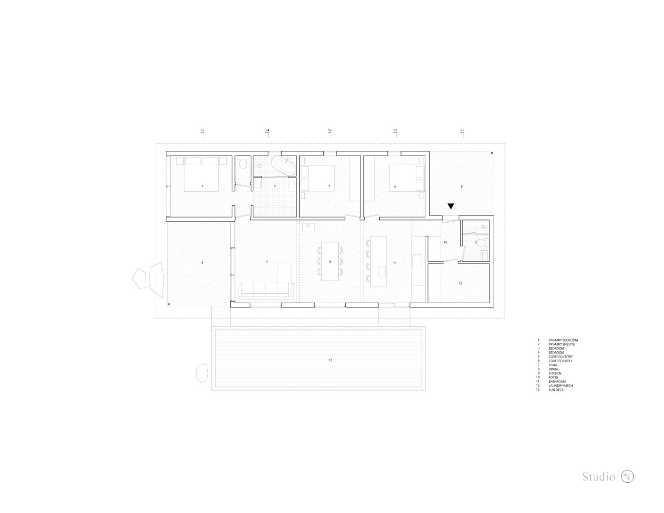
Devils Glen House, położony na malowniczym półwyspie Bruce, na północ od Toronto, to przykład nowoczesnej stodoły idealnie wkomponowanej w naturalny krajobraz. Projekt rozpoczął się od dwóch kluczowych założeń: po pierwsze, orientacji domu, by maksymalnie wykorzystać widok na jezioro, a po drugie, stworzenia dachu, który kształtuje światło, intymność i oferuje wyjątkowe punkty widokowe. Dzięki tym rozwiązaniom dom stanowi doskonały przykład architektury harmonizującej z naturą.

Fot. Felix Michaud | Arch. StudioAC

Devils Glen House podzielono na dwa liniowe bary: jeden z częścią sypialną, a drugi z przestronną otwartą strefą dzienną. Skromny plan budynku opiera się na prostej siatce, co pozwala na niezakłócone życie w środku. Dzięki subtelnemu przesunięciu dwóch "prętów" powstał zadaszony taras z widokiem na jezioro oraz ganek wejściowy, który zapewnia prywatność głównej sypialni i łazience. Po przybyciu na miejsce, widok na wodę jest ukryty, aby stopniowo odkrywać go dopiero po wejściu do domu, gdzie szklane ściany otwierają przestrzeń na otaczający las i jezioro.

Fot. Felix Michaud | Arch. StudioAC

Projekt dachu nawiązuje do lokalnej architektury, przy jednoczesnym uwzględnieniu rozległych opadów śniegu w regionie. Strukturalnie, dach odpowiada na te warunki, korzystając z ramowych kratownic, które zwiększają stabilność boczną budynku. Wybór materiałów jest równie przemyślany – ocynkowany metal nadaje konstrukcji wytrzymałość, a jednocześnie harmonizuje z barwami otaczającego krajobrazu. Taki materiał nie tylko zwiększa trwałość, ale również odzwierciedla zmieniające się kolory nieba i krajobrazu przez cały dzień.

Fot. Felix Michaud | Arch. StudioAC

We wnętrzu Devils Glen House dominuje minimalistyczny design, z użyciem białej płyty gipsowo-kartonowej oraz sklejki na dachu, które stanowią neutralne tło dla sztuki, widoków i naturalnego światła słonecznego. Prosta, ale elegancka aranżacja pozwala w pełni cieszyć się przestrzenią, oferując równocześnie subtelną elegancję. Przestronność, intymność oraz naturalne światło tworzą przestrzeń doskonałą do odpoczynku i kontemplacji.