Fot. 081 architekci

Oinspiracji

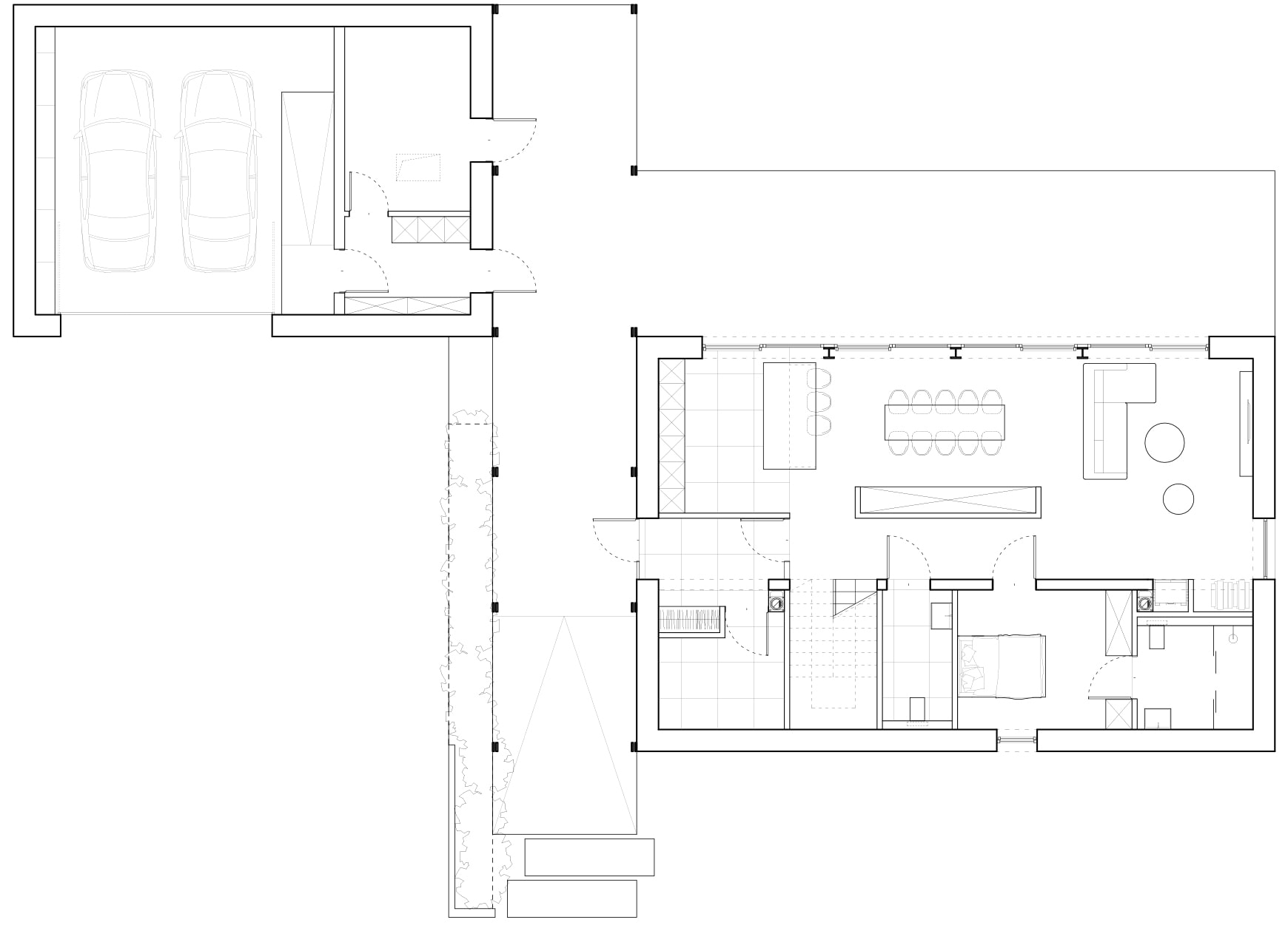
Projekt nowoczesnego domu jednorodzinnego DKP_15, w krajobrazie kujawsko-pomorskim, zaprojektowano jako współczesny dom charakteryzujący się nowoczesną formą której proporcje i detal czerpią z najlepszych historycznych wzorców. Poszanowanie tradycji, prostota oraz alternatywne źródła energii stały się bazą na której powstał spójny nowoczesny projekt. Zaproponowano rozbicie programu użytkowego na dwie bryły – część mieszkalną oraz obsługującą, obie z nich ustawione swoimi kalenicami równolegle do drogi co wpisuje się w schemat lokalnej urbanistyki. Część obsługującą cofnięto w głąb działki, tworząc funkcjonalne przedpole – rozwiązanie to w klarowny sposób strefuje działkę na część techniczną oraz rekreacyjną. Obie bryły połączono wspólnym, osiowym traktem, z którego to dostępne są wejścia do domu oraz do pomieszczeń technicznych w budynku obsługującym. Przeniesienie wejścia na ścianę szczytową, tak aby otwierało się na techniczne przedpole ułatwia komunikacje dom-garaż i idzie w zgodzie z łatwo zauważalną tendencją przenoszenia głównych wejść ze ściany frontowej w głąb działki.

Fot. 081 architekci

Drewno w formie zachodzących na siebie desek zaproponowano jako materiał wykończeniowy zarówno ścian jak i dachu. Na ścianie szczytowej do poziomu okapu deski ułożono poziomo, natomiast powyżej układ zamieniono na pionowy. Pokrycie dachu składa się z pionowo ułożonych desek, które tym samym wzorem przechodzą na ścianę. Dzięki temu zabiegowi ściana frontowa nabrała nowoczesnego wyrazu i od strony drogi stałą się jeszcze bardziej reprezentacyjna.

Fot. 081 architekci

Wewnętrzny układ funkcjonalny został zaprojektowano jako dwutraktowy, a rozkład pomieszczeń poddany strefowaniu. Parter części mieszkalnej to typowa strefa dzienna wraz z pomieszczeniami technicznymi oraz pokój gościnny. Zlokalizowane od północy kotłowania, klatka schodowa, łazienki i pokój stanowią bufor termiczny dla pomieszczeń znajdujących się od strony południowej. Kuchnia, jadalnia oraz salon zaprojektowano jako jeden trakt otwarty na południowy taras i ogród poprzez panoramiczne przeszklenie z drzwiami przesuwnymi. W budynku obsługującym zaproponowano garaż na dwa zwykłe stanowiska, a od strony traktu dwa pomieszczenia techniczne.

Arch. 081 architekci

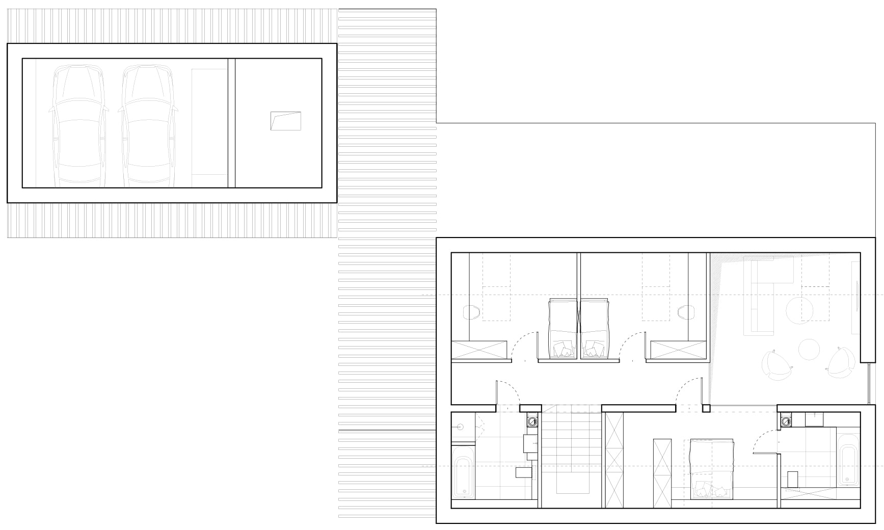
Na piętrze części mieszkalnej od północnej strony umiejscowiono sypialnię główną rodziców wraz z garderobą i łazienką. Południową stronę zagospodarowano dwoma pokojami z dużymi wertykalnymi oknami otwierającymi się na ogród oraz antresolą, która podkreśla rangę salonu znajdującego się piętro niżej.