Arch. Prodesi/Domesi

Wiejska chataz nowoczesnymi akcentami

Podstawowe materiały budowlane wykorzystane do budowy tego domu górskiego są zbliżone do tych, które od wieków wykorzystywano w tradycyjnych wiejskich chatach z dwuspadowymi dachami. Takie budynki można spotkać w rejonie Hejnice w Czechach, szczególnie na górskich drogach. Cechą charakterystyczną tej okolicy jest także tradycja budowy drewnianych konstrukcji częściowo opartych na kamiennej plincie. Ta kombinacja, choć nieczęsta, była popularna w regionie Jizerské Hory, gdzie górskie warunki sprzyjają takim rozwiązaniom.

Arch. Prodesi/Domesi

Górna część konstrukcji opiera się na kamiennej podstawie, co przywodzi na myśl efekt przesunięcia budynku przez lawinę, jakby dom został dosłownie „wciśnięty” w teren. Działka, na której znajduje się dom, zapewnia panoramiczne widoki na rozciągającą się poniżej dolinę, a sama lokalizacja na skalistej ziemi podkreśla związek budynku z naturą. Formacja skalna w południowo-zachodniej części działki pozwala podziwiać nie tylko widoki na region, ale również wprowadza naturalny akcent do całego projektu.

Arch. Prodesi/Domesi

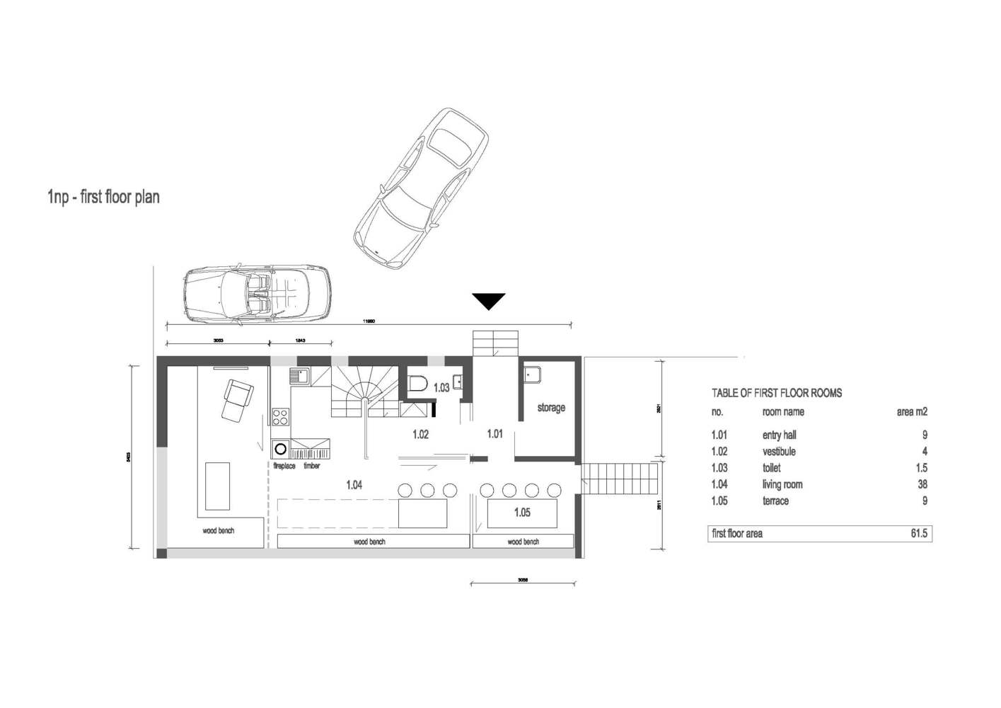
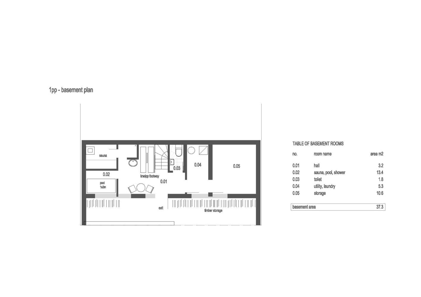
Wejście do domu prowadzi przez zadaszoną część wejściową, która chroni przed niekorzystnymi warunkami atmosferycznymi. Tuż obok znajduje się nieogrzewane miejsce do składowania drewna, a dalej rozciąga się przestronny salon, który można urządzić w zależności od potrzeb. Taras osłonięty od wiatru stanowi doskonałe miejsce na wypoczynek na świeżym powietrzu. W budynku znajdują się także schody, które prowadzą do piwnicy oraz na strych, gdzie znajdują się trzy sypialnie i łazienka.

Arch. Prodesi/Domesi

Fasada domu została zaprojektowana z modrzewiowych desek, które biegną pionowo i będą z czasem zmieniały swój kolor, co dodatkowo podkreśla naturalny charakter budynku. Ramy okien oraz metalowy dach w ciemnoszarym kolorze doskonale komponują się z lokalnym kamieniem użytym do wykończenia podstawy domu. Takie wykończenie sprawia, że budynek wtapia się w otoczenie, stając się integralną częścią górskiego krajobrazu.

Arch. Prodesi/Domesi

Wnętrze domu wyróżnia się wykorzystaniem drewna, które jest obecne w różnych formach i wykończeniach. Ściany przesuwne z drewna świerkowego, podłogi dębowe w salonie oraz długa ławka umiejscowiona pod dużym, panoramicznym oknem tworzą spójną, naturalną przestrzeń. Kominek w centralnej części domu zapewnia ciepło nie tylko w salonie, ale również na poddaszu, tworząc przytulną atmosferę w całym domu.