Fot. VAB studio | Arch. Klangor Studio

Dom z widokiem napola Kampinosu

Budynek, który zaprojektowaliśmy, powstanie pod Warszawą, tuż przy granicy z Kampinosem, w malowniczym otoczeniu pól i lasu. Od strony frontowej działka sąsiaduje z pasem drzew, stanowiącym część kampinoskiej przyrody, a od pozostałych stron rozciągają się otwarte przestrzenie pól. Już na etapie wstępnej koncepcji zależało nam na tym, by dom idealnie wpisał się w sielski krajobraz oraz wykorzystał walory widokowe działki.

Fot. VAB studio | Arch. Klangor Studio

Prostota formy i tradycyjny charakter
Budynek został zaplanowany jako jednorodzinny dom dla rodziny 2+2, o charakterystycznej, wydłużonej bryły z dachem dwuspadowym. Inspiracją dla jego kształtu była tzw. „nowoczesna stodoła” – prosta, ale zarazem nawiązująca do tradycji i otoczenia. Nie chcieliśmy przeładowywać formy zbędnymi udziwnieniami, dlatego bryła pozostała czytelna i spójna. Zdecydowaliśmy się na szczotkowany tynk w dolnej partii elewacji oraz drewniane deski na ścianach szczytowych poddasza. Takie wykończenie przywołuje skojarzenia z klasycznymi wiejskimi zabudowaniami, a zarazem współgra z naturalną kolorystyką okolicy. Całość wieńczy prosta, dwuspadowa połać dachu pokryta blachą, która podkreśla ponadczasowy charakter domu.

Fot. VAB studio | Arch. Klangor Studio

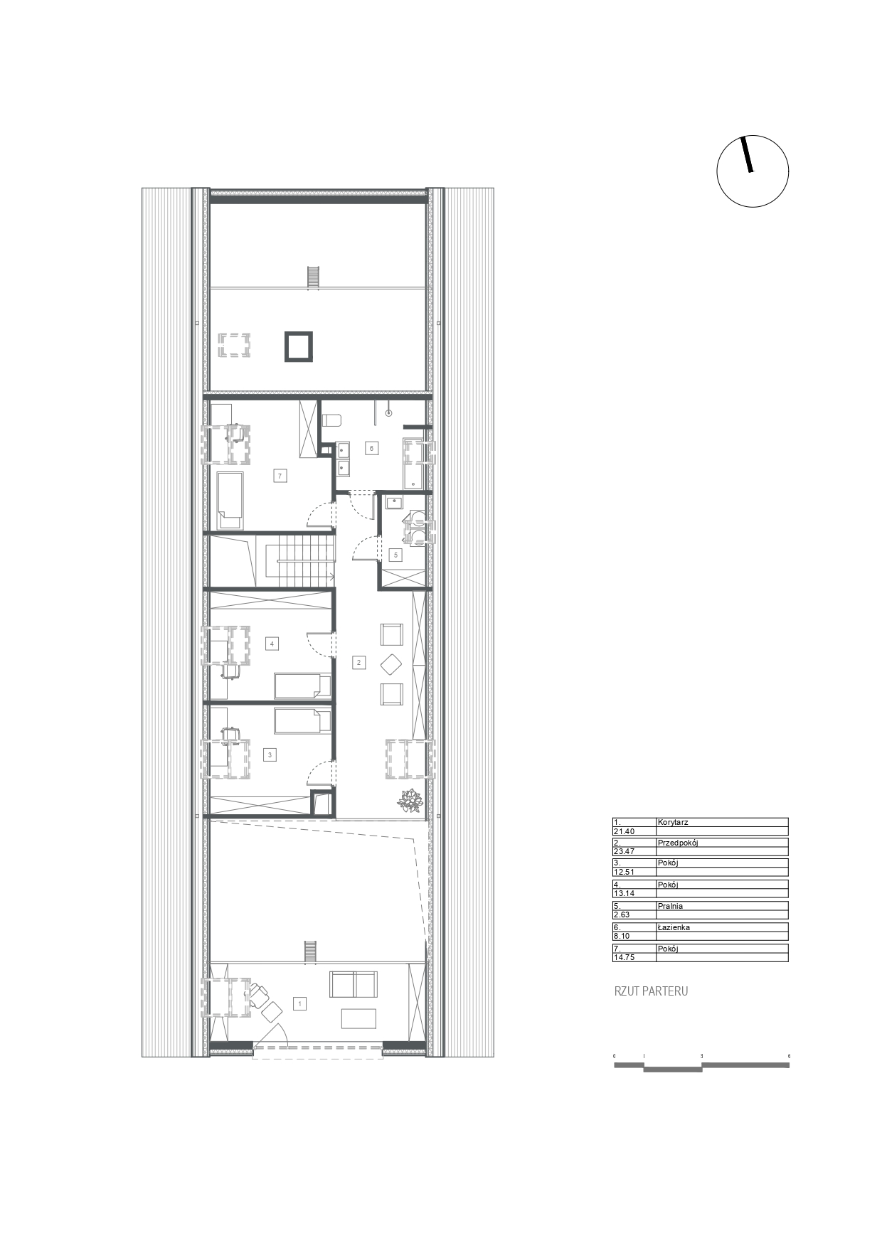
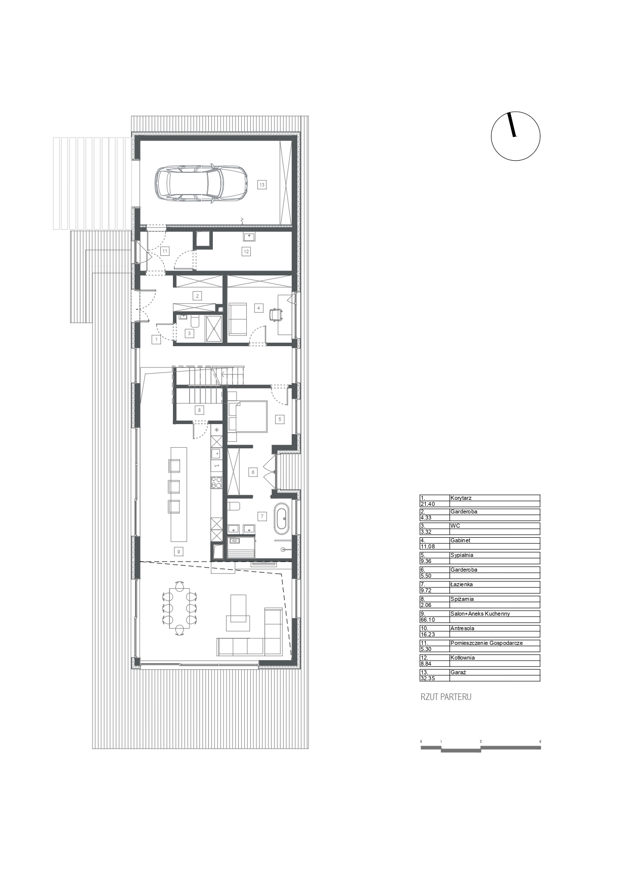
Funkcjonalność i strefy użytkowe
Dom ma dwie kondygnacje. Na parterze zaprojektowaliśmy otwartą część dzienną, w której salon, jadalnia i kuchnia tworzą jedną, spójną przestrzeń. Dzięki dużym przeszkleniom domownicy mogą cieszyć się widokiem na pola i łąki nie tylko w strefie wypoczynkowej, ale też podczas przygotowywania posiłków. Zależało nam, by kuchnia miała własne duże okno, które w pełni wykorzysta panoramiczne walory krajobrazu.
W drugiej części parteru znajduje się sypialnia „master” z prywatną łazienką i sauną, a także gabinet – oba te pomieszczenia skierowaliśmy w stronę lasu, zapewniając ciszę i większą intymność. Tuż przy wejściu umieściliśmy garaż, WC oraz hol z klatką schodową prowadzącą na piętro. Na wyższym poziomie mieszczą się sypialnie dla dzieci oraz biblioteczka ulokowana na antresoli, z której przez horyzontalne okno można oglądać rozpościerające się pola. Część stropu nad salonem została „otwarta”, co pozwoliło na wyeksponowanie więźby dachowej i wprowadzenie dodatkowej wysokości w strefie dziennej. Biblioteczka wysunięta poza obrys parteru tworzy natomiast zadaszenie dla tarasu, dzięki czemu można komfortowo korzystać z przestrzeni na świeżym powietrzu, niezależnie od pogody.

Fot. Klangor Studio

Współistnienie z otoczeniem
Projekt nowoczesnej stodoły zakłada ścisłą relację z naturalnym krajobrazem – budynek staje się przedłużeniem otaczających go pól i pobliskiego lasu. Naturalne materiały, takie jak szczotkowany tynk i drewniane deski, harmonijnie oddają barwy okolicy, tworząc spójną całość z sielskim otoczeniem. Duże przeszklenia nie tylko zapewniają obfitość naturalnego światła, ale umożliwiają również stały kontakt z rozpościerającymi się przestrzeniami, podkreślając tradycyjny charakter budynku w nowoczesnej interpretacji.

Fot. VAB studio | Arch. Klangor Studio

Wyzwania projektowe
Największym wyzwaniem okazała się wąska działka, co wymusiło na nas wydłużenie bryły i rozplanowanie pomieszczeń w taki sposób, by w pełni wykorzystać przestrzeń i zapewnić domownikom komfort. Udało się to osiągnąć dzięki klarownemu podziałowi na strefy: dzienną w głębi działki, prywatną (sypialnia i gabinet) od strony lasu oraz nocną (dla dzieci) na piętrze. W efekcie powstał dom, który nie tylko odpowiada na praktyczne potrzeby przyszłych mieszkańców, ale także szanuje i podkreśla walory otaczającej przyrody.

Powierzchnia domu: 382 m2
Data projektu: 2024/2025
Data budowy: 2025/2026
Architekci: Mateusz Florczak, Aneta Czekańska, Elbaraa Elafi, Alejandra Murillo, Przemysław Spyra
Konstrukcja: 3KD Dominik Korycki
Instalacje sanitarne: Projekt Białystok Marcin Harasimowicz www.instalacjesanitarne.com
Instalacje elektryczne: ZAPProjekt Paweł Garstka S.K.A. www.zapprojekt.com.pl
Wizualizacje: Maciej Rudecki VAB studio www.vab-studio.com