Arch. Héctor Navarro

Tradycja spotykanowoczesną architekturę

W malowniczych wiejskich krajobrazach Kantabrii powstał projekt Dom Llana – nowoczesna stodoła mocno osadzona w tradycji lokalnej architektury. Budynek wzniesiono między dwoma kamiennymi szczytami, a jego dwuspadowy dach utrzymano w rdzawym kolorze charakterystycznym dla regionu. Sercem domu jest Solana, zadaszony taras skierowany na południową stronę, który pozwala mieszkańcom cieszyć się aktywnością na świeżym powietrzu, zarówno sportową, jak i rekreacyjną, w harmonii z otaczającym krajobrazem.

Arch. Héctor Navarro

Dom Llana to nowoczesna stodoła o podłużnym układzie, z murowanymi szczytami od północy i południa oraz ścianami z drewna i szkła od wschodu i zachodu. Zachodnia część budynku tworzy strefę wypoczynkową, częściowo zadaszoną i oszkloną, idealną do relaksu. Wnętrze łączy salon, kuchnię i jadalnię z przegubową drewnianą bryłą, w której mieści się pomieszczenie gospodarcze. Przestrzeń wspólna Solana dzięki przeszklonej fasadzie i drewnianym słupom łączy wnętrze z naturą, a kominek i lustra w kuchni wzmacniają efekt kontaktu z otoczeniem.

Arch. Héctor Navarro

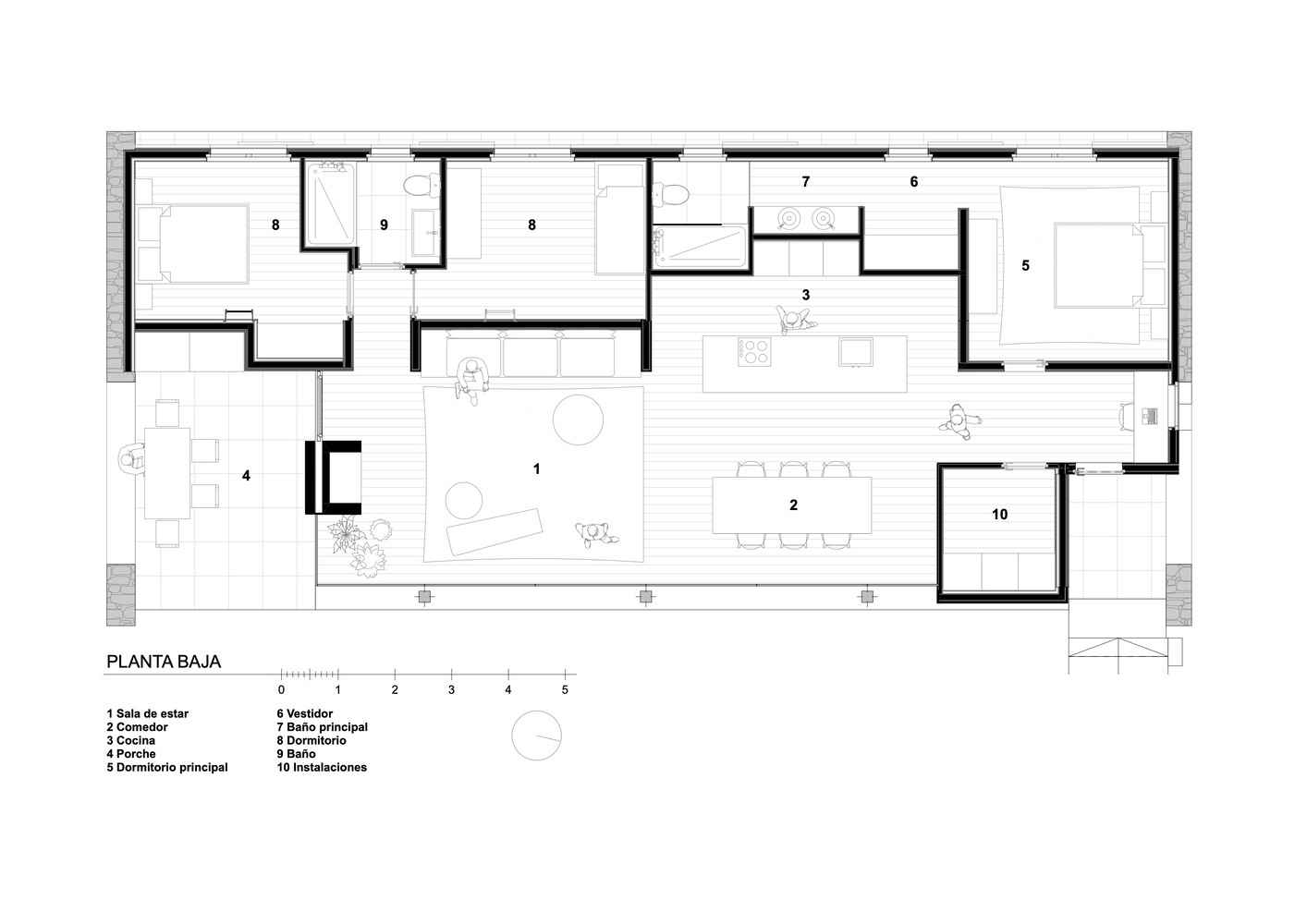
Dom Llana oferuje trzy sypialnie, dwie łazienki i brak tradycyjnych korytarzy, co pozwala na płynny dostęp do wszystkich pomieszczeń z części wspólnej. Konstrukcja nowoczesnej stodoły o powierzchni 143 m² opiera się na lekkich drewnianych ramach z izolacją, a dach wykorzystuje panele samonośne oraz dachówkę wentylowaną. Dzięki zwartej bryle, wysokiemu stopniowi izolacji i instalacji aerotermalnej, Dom Llana łączy tradycyjne materiały z nowoczesną technologią, oferując komfort, energooszczędność i harmonię z otoczeniem.