Arch. INT1ARCHITECTURE
  • Architekt

    INT1ARCHITECTURE

Elastyczność inowoczesny design

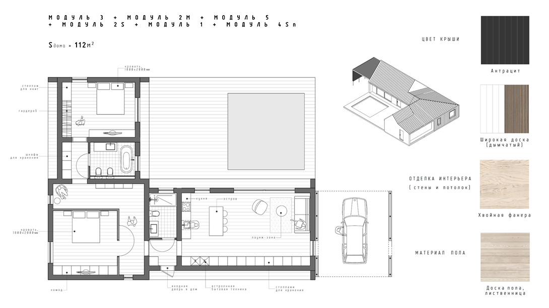
PLUSMODUL to innowacyjne domy modułowe, których montaż jest równie prosty jak składanie mebli. Wystarczy wybrać układ, elewację i wykończenie wnętrza, a gotowy dom można szybko postawić na działce.

System PLUSMODUL dostosowuje się do różnych potrzeb mieszkańców oraz wielkości i układu działki. Oferuje gotowe moduły jedno- i dwukondygnacyjne, które można łączyć w różne konfiguracje – liniowe, w kształcie litery L i C, a także tworzyć domy z wewnętrznym dziedzińcem dzięki modułom obrotowym.

Arch. INT1ARCHITECTURE

Rozbudowa i Personalizacja

Nowoczesna stodoła z modułów PLUSMODUL może być rozbudowywana w przyszłości, co pozwala na dodawanie kolejnych segmentów do istniejącego budynku. Jedna z elewacji pełni funkcję bariery wizualnej i akustycznej, chroniąc prywatność mieszkańców, podczas gdy przeciwległa strona otwiera dom na ogród i otoczenie.

Funkcjonalne Wnętrza

Wewnętrzne ściany pełnią rolę praktycznych powierzchni do zabudowy – mogą pomieścić szafy, regały czy zabudowę kuchenną. Klienci mają również możliwość wyboru materiałów wykończeniowych, kolorystyki dachu oraz elewacji, co pozwala na pełną personalizację projektu.

PLUSMODUL to rozwiązanie dla osób ceniących elastyczność, nowoczesną architekturę i komfort użytkowania.