Arch. Apio Arquitectos

W harmoniiz naturą

Ten jednorodzinny dom weekendowy stoi na południowym wybrzeżu jeziora Todos Los Santos w południowym Chile, w otoczeniu lasów i kilku wulkanów. Dostać się można do niego jedynie łodzią. Teren jest dość niezwykły i ekstremalny. Budynek stoi bowiem na wysokim, skalistym zboczu, które pokryte jest grubą, półtorametrową warstwą próchniczej gleby. Budowa w takim miejscu wymagała od architektów sporej wyobraźni i zastosowania specjalnej strategii dotyczącej nie tylko wyboru materiałów, ale też samego systemu konstrukcji. Chodziło o to, by projekt umożliwiał transport wodny materiałów, a także manualną instalację wszystkich elementów. Na miejscu nie można było bowiem wykorzystać żadnego sprzętu ciężkiego.

Arch. Apio Arquitectos

Przy tych wszystkich założeniach wstępnych, architekci i właściciele nie chcieli zbytnio ingerować w otoczenie, szanując otaczającą budynek przyrodę. Zdecydowali się więc na system podpór i stalowych belek, co pozwoliło im unieść budynek nad ziemią i zminimalizować jego punkty kontaktowe z podłożem.

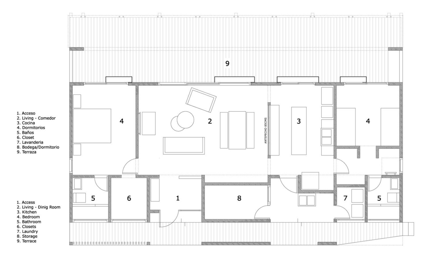
W ten sposób na metalowej konstrukcji zamocowany został dom z impregnowanego drewna sosnowego z dużymi tarasami, z których można podziwiać piękne widoki na jezioro. Pomieszczenia zorganizowano wokół przestrzeni wspólnej, na którą składa się otwarty salon, kuchnia i jadalnia. Na dwóch końcach domu powstały jeszcze dodatkowe przestrzenie dzienne. Aby zminimalizować koszty, wszystkie meble wykonano z nadwyżki materiałów budowlanych (metalowe elementy oraz drewno). Ściany od wewnątrz obito naturalnym drewnem, które tworzy ciepły klimat, typowy dla południowego Chile.

Arch. Apio Arquitectos

Elewacja miała być wykonana z tego samego materiału co pokrycie dachu i musiał to być materiał wodoodporny. Jednocześnie miał on też harmonizować z otoczeniem i przypominać stary, tradycyjny gont. Architekci zdecydowali się więc na chilijską blachę Cintac –  materiał lekki, który ułatwiał transport, a jednocześnie spełniał wszystkie wymogi projektu. Był też prosty w montażu i nie będzie wymagał regularnej konserwacji w przyszłości.

W całym domu zainstalowano energooszczędne oświetlenie LED, nie zapominając też o systemie audio w całym budynku. Krótko mówiąc, wszelkie wygody i nowinki technologiczne ukryte w lesie nad jeziorem…