Fot. AMJ studio

Nowoczesność inatura

Dom Przekręcony to obiekt dla osób, które chcą żyć nowocześnie, wygodniei blisko natury, ale jednocześnie z dużym szacunkiem do estetyki i detalu. To dom, który żyje razem z mieszkańcami – reagując na światło, pory roku i rytm codziennego życia.

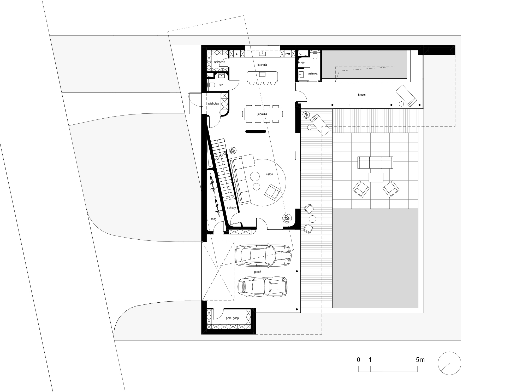
Główna część domu mieści się na parterze, gdzie strefa dzienna tworzy szeroko otwartą przestrzeń, płynnie przechodzącą w ogród i tarasy poprzez ogromne przeszklenia. Salon, jadalnia i kuchnia współtworzą serce domu – jasne, pełne światła i natury. Z tej części rozciąga się bezpośredni widok na otaczający las, sadzawkę oraz basen wewnętrzny, z którym wnętrze łączy się zarówno wizualnie, jak i funkcjonalnie.

Fot. AMJ studio

Jednym z unikalnych rozwiązań projektu jest garaż jako galeria sztuki – zintegrowany z wnętrzem domu w taki sposób, że ulubiony samochód domowników staje się elementem wystroju salonu. Auto widać nie tylko z części dziennej, ale również z zewnątrz, od strony ogrodu – jakby wystawione było w szklanej ramie, na tle nowoczesnej architektury.

Ze strefy dziennej przechodzimy płynnie do części SPA – z rekreacyjnym basenem, doświetlonym przez duży świetlik w zielonym dachu, który wpuszcza miękkie, rozproszone światło i tworzy wyjątkową atmosferę relaksu.

Fot. AMJ studio

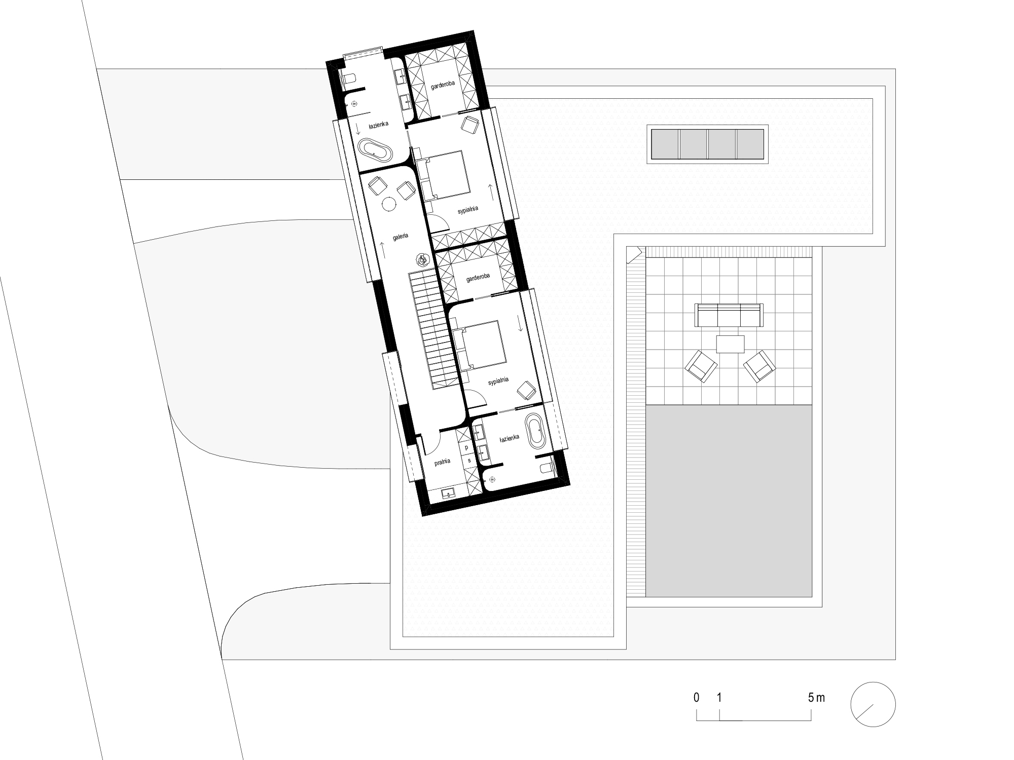
W centralnym punkcie domu znajdują się wyeksponowane schody, które nie tylko łączą kondygnacje nadziemne, ale również pełnią funkcję rzeźbiarskiego elementu wnętrza – z widokiem na zieleń prowadzą nas na piętro.

Na piętrze zlokalizowano dwie przestronne sypialnie, każda z własną prywatną łazienką oraz dużą, wygodną garderobą. Pomieszczenia są starannie doświetlone – dzięki dużym przeszkleniom i przemyślanej orientacji względem stron świata – z widokiem na las i ogród, co zapewnia prywatność i spokój.

Do sypialni na piętrze prowadzi wysoka komunikacja – to także miejsce na domową kolekcję sztuki. Z galerii dostępna jest również duża pralnia, dyskretnie zintegrowana z układem piętra.

Fot. AMJ studio

W podziemnej części nowoczesnej stodoły zlokalizowano zaplecze techniczne – umiejscowienie wszystkich systemów domu, w tym gruntowej pompy ciepła, rekuperacji oraz infrastruktury związanej z działaniem basenu. Dodatkowo znajdują się tu także pomieszczenia gospodarcze i magazynowe.