Arch. Napier Clarke Architects

Metamorfoza domu z lat 70.z przeszklonym łącznikiem

Dom Samarkand to efektowna renowacja domu z lat 70. w Buckinghamshire, przeprowadzona przez Napier Clarke Architects. Projekt zrealizowano na zadrzewionej działce w rejonie Little Kingshill, w obszarze o wyjątkowym pięknie naturalnym (AONB – Area of Outstanding Natural Beauty). Zamiast wyburzenia architekci postawili na zrównoważoną modernizację istniejącej bryły. Kluczowym elementem było przekształcenie dawnego garażu w kuchnię wyłożoną opalanym drewnem oraz dodanie przeszklonego łącznika wejściowego między dwoma formami budynku. To rozwiązanie pozwoliło stworzyć nowoczesną kompozycję architektoniczną z klarownym podziałem funkcji, a jednocześnie zachować oryginalną ceglaną strukturę. Forma domu i użyte materiały bezpośrednio nawiązują do estetyki, jaką reprezentuje nowoczesna stodoła.

Arch. Napier Clarke Architects

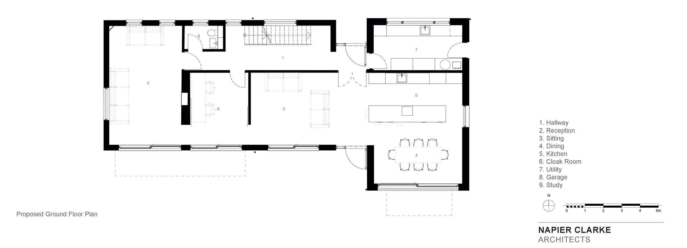
Główna interwencja projektowa objęła usunięcie fragmentów dachu i ścian między oryginalnym budynkiem z londyńskiej cegły a dobudówką z dawnym garażem. Zmiany umożliwiły utworzenie dwóch odrębnych form połączonych przeszklonym korytarzem wejściowym, który prowadzi do holu z dynamiczną klatką schodową. Cała konstrukcja została owinięta w nową elewację z opalanego drewna, co wzmocniło współczesny charakter domu i poprawiło jego integrację z naturalnym otoczeniem. Z zewnątrz bryła zyskała surowy, minimalistyczny wygląd, ale wnętrza zaprojektowano z myślą o codziennej funkcjonalności. Architekci z Napier Clarke zadbali o pełne przekształcenie układu pomieszczeń, tak by lepiej odpowiadał potrzebom współczesnej rodziny.

Arch. Napier Clarke Architects

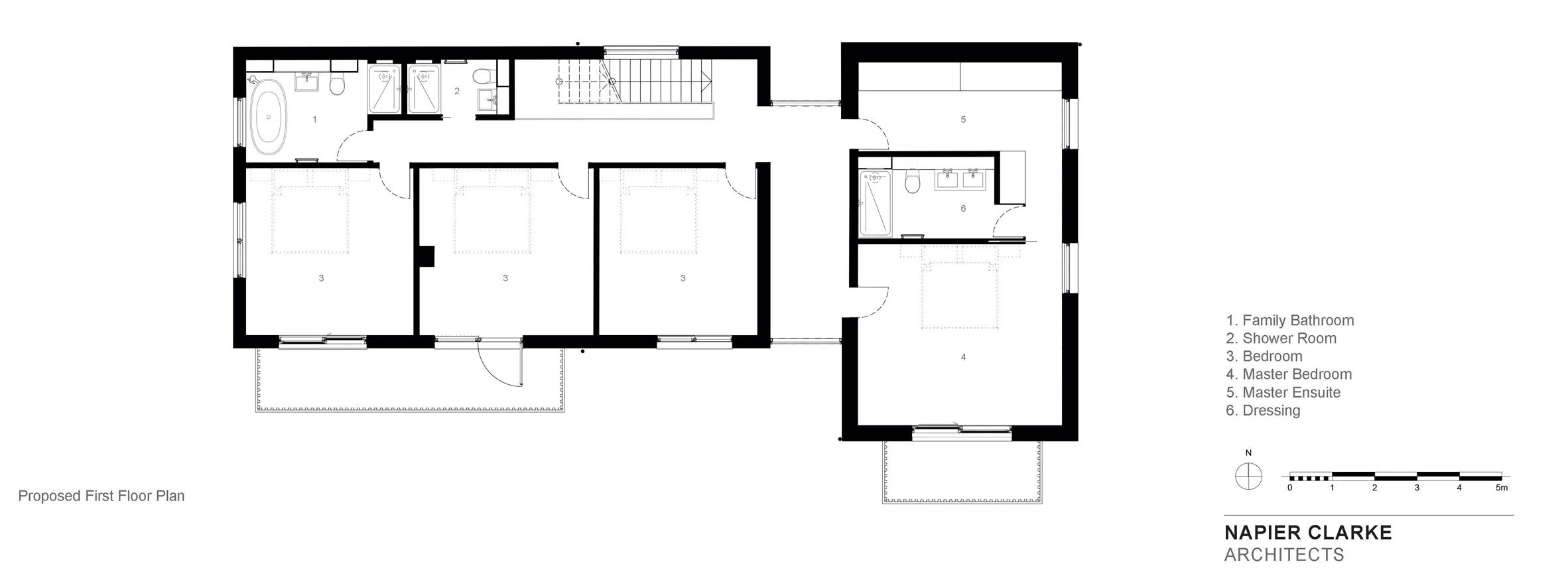
Wewnątrz Domu Samarkand zastosowano stonowaną paletę kolorystyczną – białe ściany i sufity kontrastują z czarną stolarką, zabudową i detalami metalowymi. Przestrzeń dzienna łączy kuchnię, salon, gabinet oraz formalny pokój dzienny, wszystkie zorientowane na ogród i taras z basenem. Na piętrze zaprojektowano trzy symetryczne sypialnie z wspólną łazienką oraz osobną, główną sypialnię z prywatną łazienką i garderobą. Projekt Domu Samarkand to przykład, jak przemyślana modernizacja może wnieść nowe życie do pozornie przeciętnej struktury, przekształcając ją w elegancki, energooszczędny dom inspirowany formą, jaką prezentuje nowoczesna stodoła.