For. Matej Hakár | Arch. Monmar ateliér

Dom z pracownią iprzestrzenią rodzinną

Projekt Monmar autorstwa Moniki i Marka Ivanko to nowoczesna stodoła, która idealnie łączy życie rodziny z przestrzenią do pracy. Dom zrealizowany na końcu ślepej uliczki, w otoczeniu pól i łąk, czerpie inspirację z tradycyjnej architektury wiejskiej, a jednocześnie wprowadza współczesne elementy funkcjonalności i designu.

For. Matej Hakár | Arch. Monmar ateliér

Projektanci postawili na prostą, dwuspadową bryłę z dachem, która szanuje lokalny charakter krajobrazu, a jednocześnie wprowadza nowoczesne rozwiązania. Dom pełni rolę pracowni oraz showroomu, co pozwala autorom na bezpośrednią prezentację swojej pracy w praktycznym, codziennym otoczeniu. Otwarta przestrzeń dzienna, z dużymi oknami wychodzącymi na zadaszony taras, sprawia, że dom łączy funkcję mieszkalną z przestrzenią roboczą, a jednocześnie zapewnia połączenie z naturą.

For. Matej Hakár | Arch. Monmar ateliér

Zewnętrzna część budynku została zaprojektowana z drewna modrzewiowego bez obróbki powierzchniowej, co pozwala na naturalne starzenie się drewna, dzięki czemu dom z biegiem lat doskonale zespala się z otoczeniem. Białe tynki i szare blachy faliste dopełniają minimalistyczną formę, tworząc harmonijną kompozycję z naturą. Dzięki temu projekt łączy prostotę formy z funkcjonalnością, tworząc przestrzeń sprzyjającą codziennemu życiu i pracy.

For. Matej Hakár | Arch. Monmar ateliér

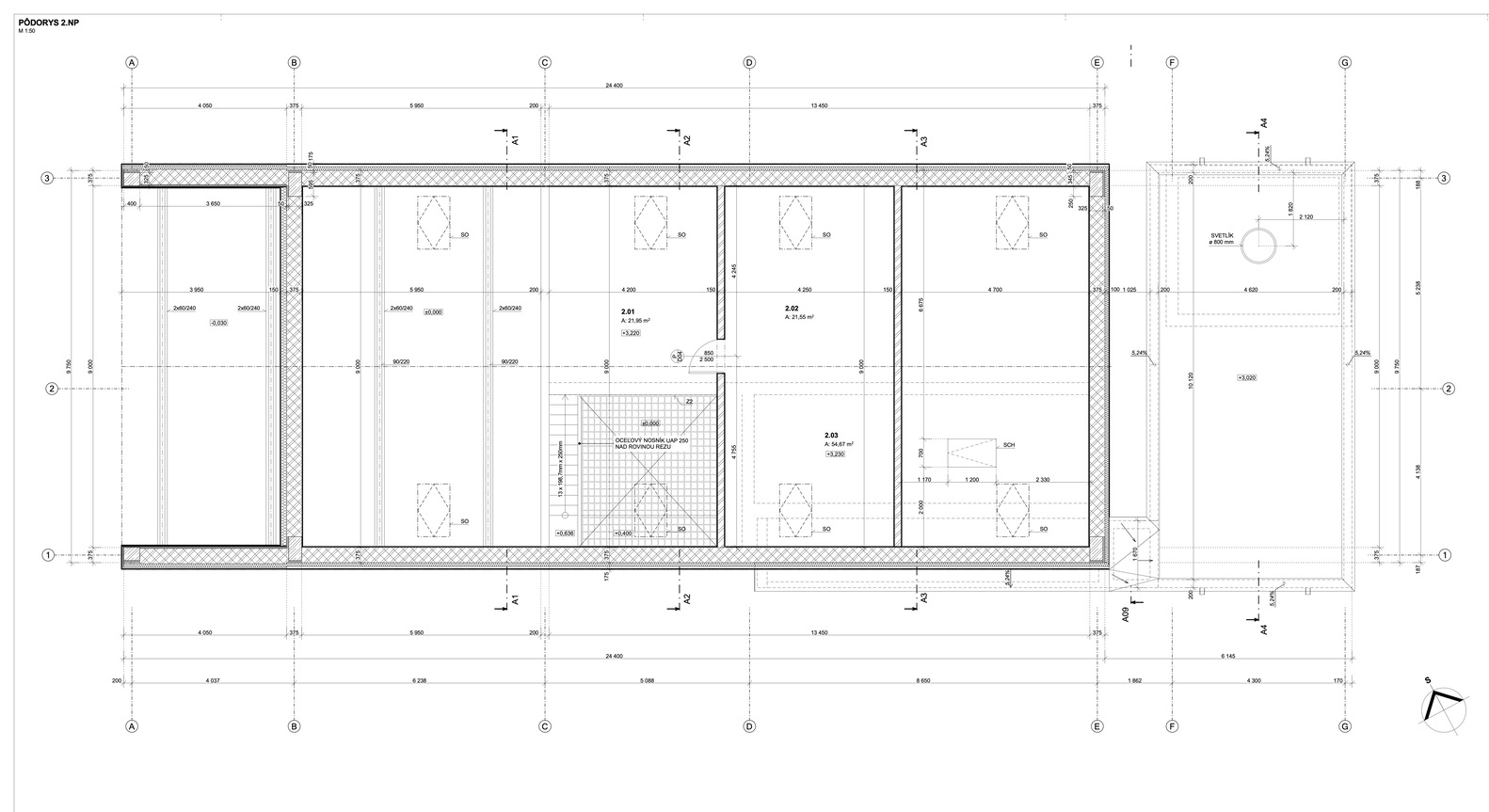
Wnętrze domu łączy drewno, białe tynki oraz czarne akcenty, które tworzą elegancką, ale ciepłą atmosferę. Na parterze znajduje się przestronna pracownia, toaleta, oraz łazienka dla dzieci. Sypialnia rodziców, z osobną łazienką i garderobą, ulokowana jest w północno-wschodniej części domu. Strefa dzienna obejmuje salon, jadalnię i kuchnię, które otwierają się na przestronny taras, tworząc płynne połączenie między wnętrzem a zewnętrzem. Poddasze domu zostało zaprojektowane jako otwarta przestrzeń, gdzie znajduje się pokój dziecięcy z otwartym stropem oraz siatką spacerową, co powiększa przestrzeń i wprowadza dodatkową funkcjonalność. Na górze znajduje się także galeria oraz wydzielona część sypialna dla dzieci, co tworzy przestronną i zorganizowaną strefę dla najmłodszych.