Fot. Cristóbal Valdés | Arch. Estudio Gutiérrez Irribarren

Dom inspirowanykrajobrazem i tradycją

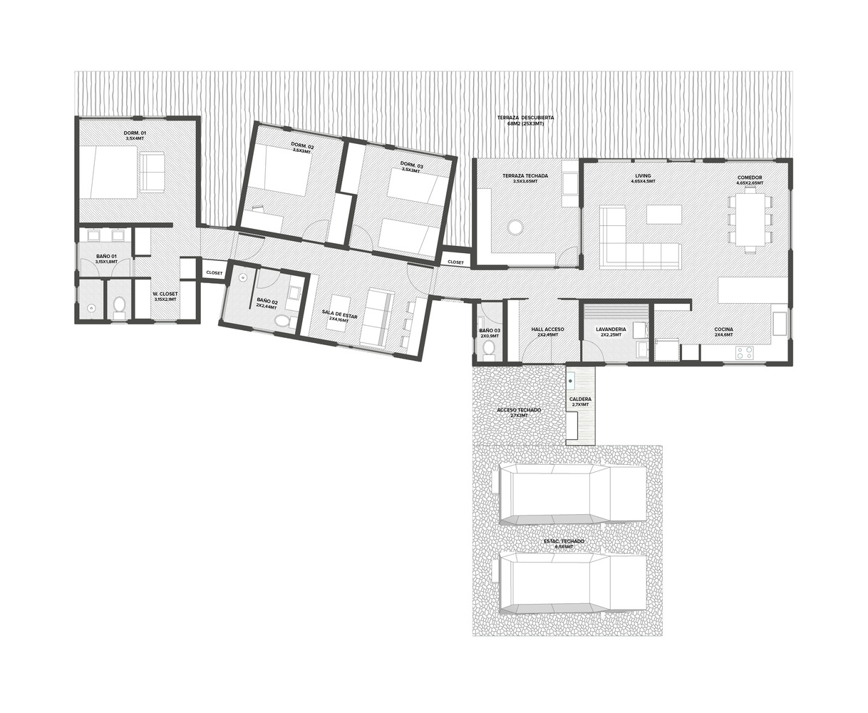
Dom Trzech Szczytów to współczesna interpretacja architektury wiejskiej, usytuowana w południowym Chile, pośród pól o silnym charakterze rolniczym. W krajobrazie zdominowanym przez tradycyjne stodoły i dwuspadowe szopy, projekt wyróżnia się nowoczesną estetyką, jednocześnie harmonijnie wpisując się w wiejski kontekst. Główne założenie architektoniczne opiera się na połączeniu tradycji z nowoczesnym stylem życia, bez utraty spójności z otaczającym krajobrazem.

Fot. Cristóbal Valdés | Arch. Estudio Gutiérrez Irribarren

Trzy wyraziste, szczytowe bryły – niczym nowoczesne stodoły – wyłaniają się między drzewami, tworząc przyjazną i kameralną zabudowę. Dzięki zastosowaniu dynamicznych, niestandardowych przeszkleń, dom w pełni otwiera się na widoki lasu i słońca. Każda z brył nawiązuje do górskich pejzaży charakterystycznych dla Chile, oddając hołd naturalnemu kontekstowi. Mimo nowoczesnej formy, zastosowane proporcje i materiały budowlane przywodzą na myśl lokalne, tradycyjne zabudowania wiejskie.

Fot. Cristóbal Valdés | Arch. Estudio Gutiérrez Irribarren

Konstrukcja oparta jest na drewnie, które spoczywa na solidnych fundamentach z betonu, wzmocnionych stalą ze względu na aktywność sejsmiczną regionu. Wnętrza i elewacje wykończone są naturalnym drewnem, co nadaje budynkowi ciepła i spójności z otoczeniem. Polerowany beton tworzy trwałą i funkcjonalną podłogę, pasującą do minimalistycznego wystroju. Dom Trzech Szczytów to doskonały przykład, jak nowoczesna stodoła może łączyć estetykę, funkcjonalność i lokalny kontekst kulturowy w jednym spójnym projekcie architektonicznym.